Let Available Date
Available: Now
Standout Features
- One bedroom flat
- Period Conversion
- Patio garden
- Close to transport links
- Close to Church Street
Property Description
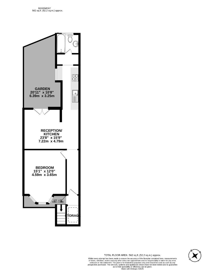
This spacious 562 sq ft (52 sq m) one bedroom lower ground floor garden flat sits within an elegant Victorian terrace on the ever popular Londesborough Road in the heart of N16, and benefits from its own private entrance.
Beautifully presented throughout, the property features a generous open plan reception with a newly fitted kitchen spanning over 23 ft (7.2 m). The living space enjoys wooden flooring, good ceiling height, built in shelving and double doors opening directly onto a private patio garden.
The kitchen is smartly finished with wooden worktops, metro tiled splashbacks and ample storage, and the layout flows naturally towards the bathroom which is fitted with a full sized bath and overhead shower.
Positioned at the front of the property, the bay fronted double bedroom is an excellent size with space to work from home and room for wardrobes and additional furniture.
Londesborough Road is a tree lined residential street well placed for the many bars, restaurants and coffee houses of Stoke Newington Church Street, Newington Green and nearby Dalston. Butterfield Green and the wide open spaces of Clissold Park are also within easy reach.
Transport links include Canonbury (Overground), Dalston Kingsland and Dalston Junction (Overground), as well as a variety of bus routes providing easy access into The City and West End.
Beautifully presented throughout, the property features a generous open plan reception with a newly fitted kitchen spanning over 23 ft (7.2 m). The living space enjoys wooden flooring, good ceiling height, built in shelving and double doors opening directly onto a private patio garden.
The kitchen is smartly finished with wooden worktops, metro tiled splashbacks and ample storage, and the layout flows naturally towards the bathroom which is fitted with a full sized bath and overhead shower.
Positioned at the front of the property, the bay fronted double bedroom is an excellent size with space to work from home and room for wardrobes and additional furniture.
Londesborough Road is a tree lined residential street well placed for the many bars, restaurants and coffee houses of Stoke Newington Church Street, Newington Green and nearby Dalston. Butterfield Green and the wide open spaces of Clissold Park are also within easy reach.
Transport links include Canonbury (Overground), Dalston Kingsland and Dalston Junction (Overground), as well as a variety of bus routes providing easy access into The City and West End.
Additional Information
| Council Tax Band: | B |
|---|
Londesborough Road, London, N16
Want to explore Londesborough Road, London, N16 further? Explore our local area guide
Struggling to find a property? Get in touch and we'll help you find your ideal property.