Let Available Date
Available: Now
Standout Features
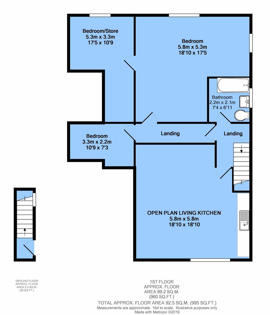
- Superb amount of space is on offer here on this 2 bedroom & boxroom
- 1st floor flat that is located over a hairdressers/beauty salon
- Has had recent modern decorations including carpets
- Large open plan Living Kitchen Room. (Cooker included)
- Bathroom suite with shower over a bath
- Very large master bedroom with an additional room off
- 2nd bedroom is off the landing - but note it does not have a window.
- Gas central heating & uPVC double glazed
- On street parking. No external area or maintenance
- Working applicants preferred or guarantor essential. Sorry no pets or smokers
Property Description
VIDEO WALK THROUGH TOUR AVAILABLE ONLINE
NOW AVAILABLE! This Spacious 1st Floor Flat!
Superb amount of space is on offer here on this 2 bedroom 1st floor flat that is located over a hairdressers/beauty salon in Grassmoor.
A private entrance door and hallway has stairs rising to the 1st floor accommodation.
There is a large open plan living kitchen. (Cooker included), a bathroom suite with shower over a bath, a very large master bedroom with an additional full sized room off. This room could be used as a bedroom - but access is all through the larger room.
The 2nd additional room is off the landing - but note it does not have a window.
The property boasts excellent refurbishments - including brand new modern carpets throughout, new kitchen area flooring and has been fully decorated, making it ready or an immediate let!
Gas central heating & uPVC double glazed. On street parking. No external area or maintenance.
Working applicants preferred or guarantor essential. Sorry no pets or smokers
The property HAS TO BE SEEN to be appreciated!
Call Hunters Now to View!
Calls Answered 24/7
NOW AVAILABLE! This Spacious 1st Floor Flat!
Superb amount of space is on offer here on this 2 bedroom 1st floor flat that is located over a hairdressers/beauty salon in Grassmoor.
A private entrance door and hallway has stairs rising to the 1st floor accommodation.
There is a large open plan living kitchen. (Cooker included), a bathroom suite with shower over a bath, a very large master bedroom with an additional full sized room off. This room could be used as a bedroom - but access is all through the larger room.
The 2nd additional room is off the landing - but note it does not have a window.
The property boasts excellent refurbishments - including brand new modern carpets throughout, new kitchen area flooring and has been fully decorated, making it ready or an immediate let!
Gas central heating & uPVC double glazed. On street parking. No external area or maintenance.
Working applicants preferred or guarantor essential. Sorry no pets or smokers
The property HAS TO BE SEEN to be appreciated!
Call Hunters Now to View!
Calls Answered 24/7
Additional Information
| Council Tax Band: | A |
|---|
Utilities
Electricity:
Mains Supply
Sewerage:
Mains Supply
Heating:
Gas Central
North Wingfield Road, Grassmoor, Chesterfield, S42 5ER
Want to explore North Wingfield Road, Grassmoor, Chesterfield, S42 5ER further? Explore our local area guide
Struggling to find a property? Get in touch and we'll help you find your ideal property.