The Avenue, London

£5,495 PCM | Available

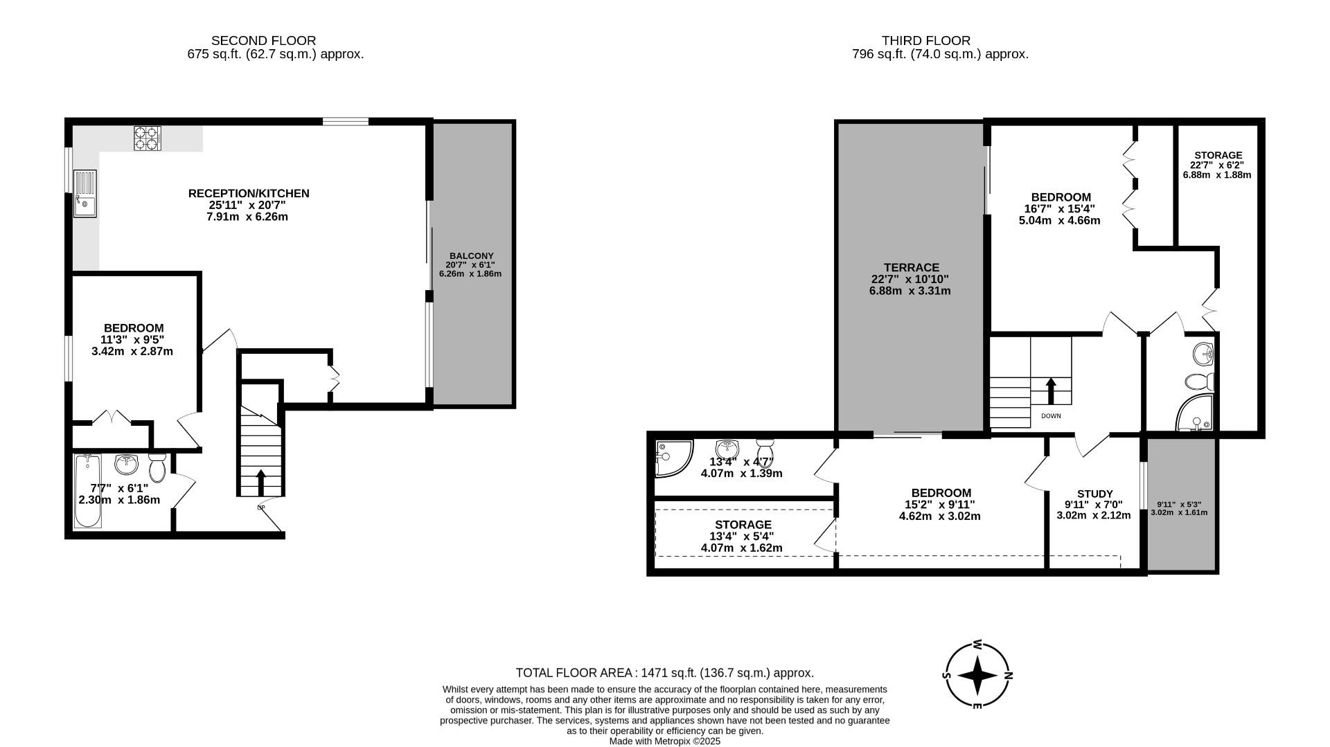
3 bedroom Flat To Let
Total Size: 1471 SQ FT
or call 020 7431 4777
Let Available Date
Available: Now
Property Description

The Avenue, London

Want to explore The Avenue, London further? Explore our local area guide

Struggling to find a property? Get in touch and we'll help you find your ideal property.