Standout Features
- Beautifully refurbished true bungalow
- Contemporary high-gloss kitchen with wine fridge
- Two well-presented bedrooms to rear
- Spacious lounge with bay window and gas fire
- Landscaped rear garden with lawn and decking
- Gated driveway providing off-street parking
- Sought-after Pudsey residential location
- Ready-to-move-into condition throughout
- Nearby shops, transport and scenic walking routes
Property Description
A beautifully REFURBISHED true bungalow in a PRIME Pudsey location, ideal for first-time buyers or downsizers. This stylish home features a CONTEMPORARY high-gloss kitchen, a bright bay-fronted living room, TWO well-presented bedrooms and a modern shower room. Outside boasts a sunny, LANDSCAPED rear garden with lawn, patio and decking, plus a front garden and gated driveway PARKING. Close to local amenities, transport links and scenic walks — ready to move straight into.
Additional Information
| Tenure: | Freehold |
|---|---|
| Council Tax Band: | C |
Rooms
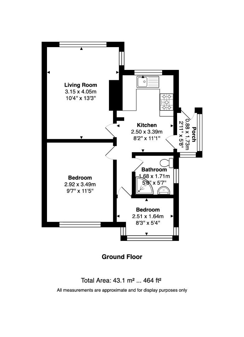
PORCH
0.88 x 1.73m (2'10" x 5'8")
KITCHEN
2.50 x 3.39m (8'2" x 11'1")
LIVING ROOM
3.15 x 4.05m (10'4" x 13'3")
BATHROOM
1.68 x 1.71m (5'6" x 5'7")
BEDROOM ONE
2.92 x 3.49m (9'6" x 11'5")
BEDROOM TWO
2.51 x 1.64m (8'2" x 5'4")
GARDENS & DRIVE
Mortgage calculator
Calculate Your Stamp Duty
Results
Stamp Duty To Pay:
Effective Rate:
| Tax Band | % | Taxable Sum | Tax |
|---|
Smalewell Road, Pudsey, LS28
Want to explore Smalewell Road, Pudsey, LS28 further? Explore our local area guide
Struggling to find a property? Get in touch and we'll help you find your ideal property.