Standout Features
- Two bed, Two bath Period conversion
- 15 Minute Walk to Primrose Hill
- Conveniently Located
- Swiss Cottage 0.2 miles away (Jubilee Line, access to Central London in 5 minutes)
- Close by to Hampstead and Belsize Park Transport Links
- Sold Chain Free
Property Description
*** £500 LEGAL FEES CONTRIBUTION, UPON SUCCESSFUL PURCHASE THROUGH HUNTERS WILL BE GIVEN TO THE BUYER. ***
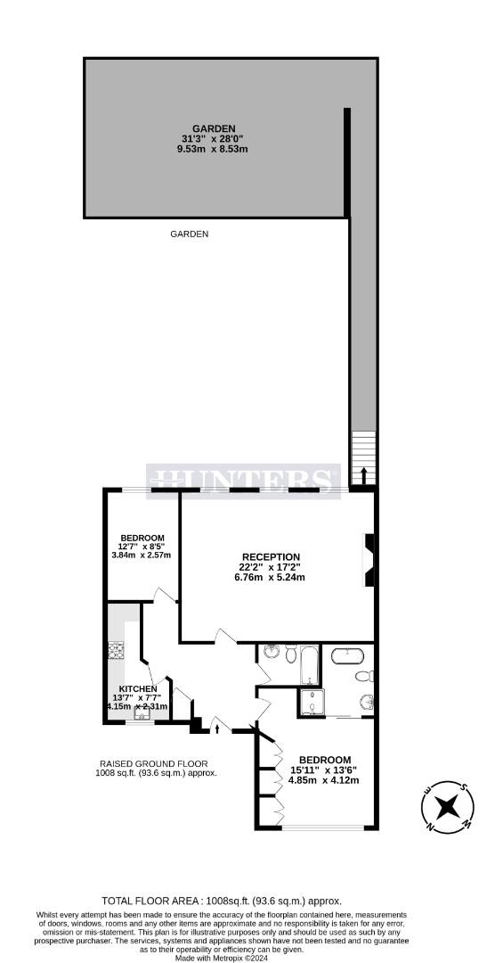
This charming two-bedroom raised ground floor apartment, set within an elegant period conversion on the sought-after Buckland Crescent in Belsize Park.
Spanning approximately 1,000 sq ft, the property boasts impressive Victorian ceiling heights and original period features throughout. The accommodation includes a spacious and beautifully presented reception room, two generous bedrooms, a family bathroom, and an additional shower room. To the rear, a private south-facing garden offers a tranquil outdoor retreat.
Combining timeless character with generous living space, the property is offered chain-free and comes with a long lease.
Ideally positioned for the wide array of shops, cafés and restaurants in Hampstead, with further amenities in nearby Belsize Park, St John’s Wood and Primrose Hill. Excellent transport links are just moments away, with Swiss Cottage Station (Jubilee Line) located only 0.2 miles from the property.
This charming two-bedroom raised ground floor apartment, set within an elegant period conversion on the sought-after Buckland Crescent in Belsize Park.
Spanning approximately 1,000 sq ft, the property boasts impressive Victorian ceiling heights and original period features throughout. The accommodation includes a spacious and beautifully presented reception room, two generous bedrooms, a family bathroom, and an additional shower room. To the rear, a private south-facing garden offers a tranquil outdoor retreat.
Combining timeless character with generous living space, the property is offered chain-free and comes with a long lease.
Ideally positioned for the wide array of shops, cafés and restaurants in Hampstead, with further amenities in nearby Belsize Park, St John’s Wood and Primrose Hill. Excellent transport links are just moments away, with Swiss Cottage Station (Jubilee Line) located only 0.2 miles from the property.
Additional Information
| Tenure: | Leasehold |
|---|---|
| Lease Years Remaining: | 85 |
| Ground Rent: | £250 per year |
| Council Tax Band: | G |
Mortgage calculator
Calculate Your Stamp Duty
Results
Stamp Duty To Pay:
Effective Rate:
| Tax Band | % | Taxable Sum | Tax |
|---|
Buckland Crescent, Swiss Cottage, NW3
Want to explore Buckland Crescent, Swiss Cottage, NW3 further? Explore our local area guide
Struggling to find a property? Get in touch and we'll help you find your ideal property.