Standout Features
- Second Floor Apartment
- Two Bedrooms
- No Onward Chain
- Lift Access
- Central Location
- EPC Grade: C
Property Description
Experience coastal living at its finest with this beautiful two-bedroom apartment, situated on the second floor of a characterful chapel conversion completed in 2006. Offering a unique blend of historic charm and contemporary comfort, this property is a true gem in the heart of the seaside town of Filey.
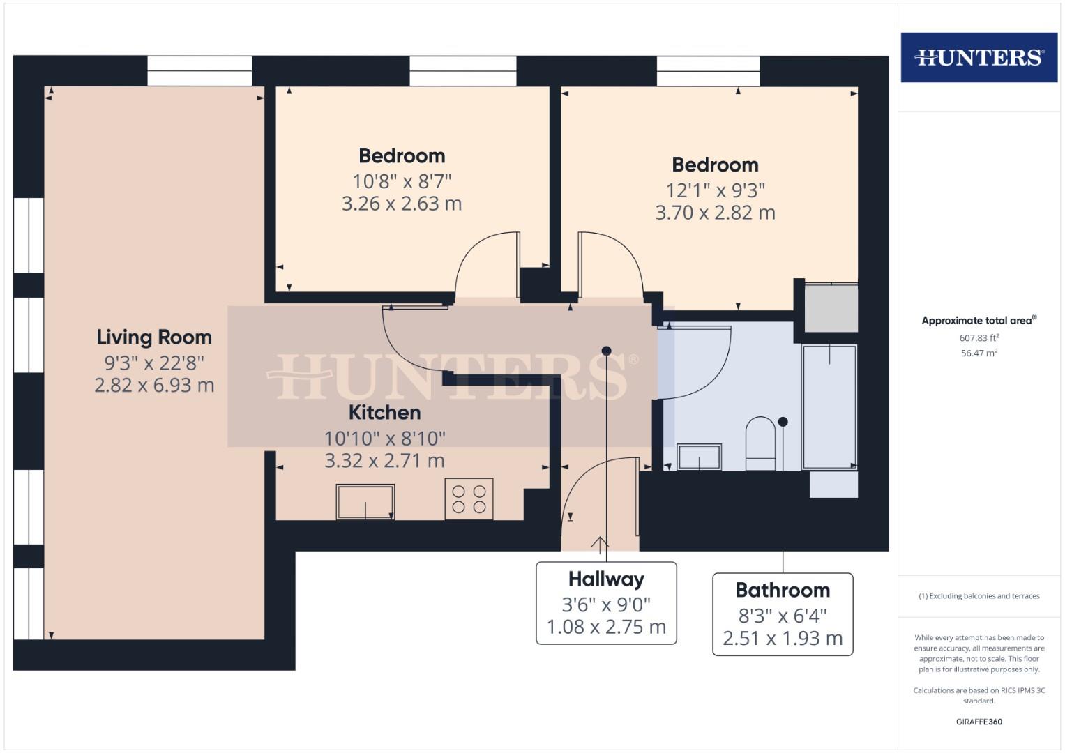
The apartment welcomes you with an open-plan lounge, kitchen, and dining area, where a floor-to-ceiling window takes centre stage, bathing the space in natural light and creating a warm, inviting atmosphere. The kitchen is thoughtfully designed, featuring an electric oven and hob, dishwasher, and fridge, making it both stylish and practical for everyday living.
Both bedrooms are generously proportioned doubles, offering plenty of space to relax and unwind with the benefit of those floor-to-ceiling windows, while the sleek, contemporary bathroom adds a touch of luxury to the property. The building also benefits from the convenience of a lift, ensuring easy access to the apartment.
Located in the bustling centre of Filey, this property puts you just steps away from local shops, delightful restaurants, and the town’s award-winning sandy beach. Whether you’re seeking an investment opportunity, your first home, or a peaceful bolt hole by the sea, this apartment offers a lifestyle that’s hard to match.
With 981 years remaining on the lease and an annual service charge of approximately £1,300, this is an opportunity not to be missed. Contact us today to arrange your viewing and take the first step toward owning this unique coastal retreat.
The apartment welcomes you with an open-plan lounge, kitchen, and dining area, where a floor-to-ceiling window takes centre stage, bathing the space in natural light and creating a warm, inviting atmosphere. The kitchen is thoughtfully designed, featuring an electric oven and hob, dishwasher, and fridge, making it both stylish and practical for everyday living.
Both bedrooms are generously proportioned doubles, offering plenty of space to relax and unwind with the benefit of those floor-to-ceiling windows, while the sleek, contemporary bathroom adds a touch of luxury to the property. The building also benefits from the convenience of a lift, ensuring easy access to the apartment.
Located in the bustling centre of Filey, this property puts you just steps away from local shops, delightful restaurants, and the town’s award-winning sandy beach. Whether you’re seeking an investment opportunity, your first home, or a peaceful bolt hole by the sea, this apartment offers a lifestyle that’s hard to match.
With 981 years remaining on the lease and an annual service charge of approximately £1,300, this is an opportunity not to be missed. Contact us today to arrange your viewing and take the first step toward owning this unique coastal retreat.
Additional Information
| Tenure: | Leasehold |
|---|---|
| Lease Years Remaining: | 981 |
| Service Charge: | £1,300 per year |
| Council Tax Band: | E |
Rooms
HMRC
Should you wish to proceed with an offer on this property we are obliged by HMRC to conduct mandatory Anti Money Laundering Checks. We outsource these checks to our compliance partners at Coadjute and they charge a fee for this service.Utilities
Broadband:
Fibre to Cabinet
Electricity:
Mains Supply
Sewerage:
Mains Supply
Mortgage calculator
Calculate Your Stamp Duty
Results
Stamp Duty To Pay:
Effective Rate:
| Tax Band | % | Taxable Sum | Tax |
|---|
Fishermans Chapel, Union Street, Filey
Want to explore Fishermans Chapel, Union Street, Filey further? Explore our local area guide
Struggling to find a property? Get in touch and we'll help you find your ideal property.