Standout Features
- Stunning 2 Bedroom, 3rd Floor - 859 sq ft with allocated parking
- Rental projection: £1,500pcm approx
- Entry to apartment controlled via secure door entry system
- Hyperoptic with all homes allowing residents to be connected in minutes
- Open-plan living with modern fixtures & fittings integrated throughout
- Stylish en-suite shower room to principal bedroom
- Guest bedroom serviced by family bath-suite
- Sunny, South facing balcony + Allocated parking space (no14)
- Lease: 994yrs, Service charge: £2,506 incl ground rent
- Council Tax Band: B - EPC Rating: B (82)
Property Description
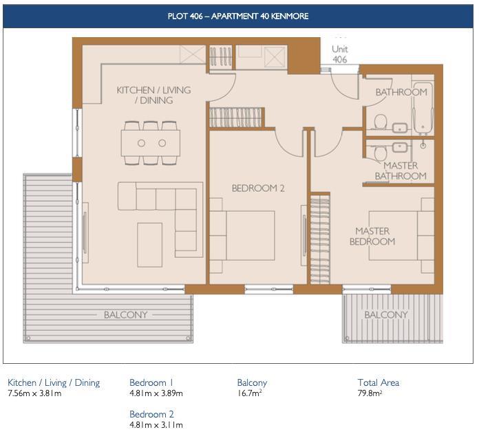
A show-stopper 3rd Floor, 2 Bedroom Apartment, offering over 850 sq ft of stylish accommodation. Finished with a glorious south facing balcony, a modern fitted Kitchen, stylish family bath-suite & principal bedroom boasting en-suite shower room too! Located within walking distance to Ashford Train Station.
Riverside Park apartments is a stunning recent development found within close proximity to Ashford International Railway Station & the High Street of the town.
Situated within the Kenmore Place block, is a stylish 2 bedroom, 3rd floor apartment that offers high specification throughout along with lift access to the stunning ROOF TERRACE, as well as your own private South facing balcony, all within walking distance to Ashford Town Centre and train station. The apartment consist of 2 spacious double bedrooms, modern, open plan living/dining room and fitted kitchen, as well as a tiled family bathroom & en-suite to master bedroom, plus handy storage/utility cupboard too.
Developed by GRE Assets and designed by award-winning architect Guy Hollaway, Riverside Park has delivered 246 stunning apartments as well as 26 luxury townhouses and a new public realm. Offering contemporary open-plan living, the homes overlook the Great River Stour nearby Victoria Park.
TENURE: Leasehold - 994 year lease. Service charge: £2,506, Inclusive of ground rent payments & estate fees.
LOCATION: Situated within Ashford town centre, which offers a vast range of leisure facilities with shops, cafes and restaurants. Ashford International train station is within walking distance and provides regular high-speed services to London in 38 minutes. The property is also well-served with other good transport links with bus services and the M20 motorway providing fast access to the Channel Tunnel.
Riverside Park apartments is a stunning recent development found within close proximity to Ashford International Railway Station & the High Street of the town.
Situated within the Kenmore Place block, is a stylish 2 bedroom, 3rd floor apartment that offers high specification throughout along with lift access to the stunning ROOF TERRACE, as well as your own private South facing balcony, all within walking distance to Ashford Town Centre and train station. The apartment consist of 2 spacious double bedrooms, modern, open plan living/dining room and fitted kitchen, as well as a tiled family bathroom & en-suite to master bedroom, plus handy storage/utility cupboard too.
Developed by GRE Assets and designed by award-winning architect Guy Hollaway, Riverside Park has delivered 246 stunning apartments as well as 26 luxury townhouses and a new public realm. Offering contemporary open-plan living, the homes overlook the Great River Stour nearby Victoria Park.
TENURE: Leasehold - 994 year lease. Service charge: £2,506, Inclusive of ground rent payments & estate fees.
LOCATION: Situated within Ashford town centre, which offers a vast range of leisure facilities with shops, cafes and restaurants. Ashford International train station is within walking distance and provides regular high-speed services to London in 38 minutes. The property is also well-served with other good transport links with bus services and the M20 motorway providing fast access to the Channel Tunnel.
Additional Information
| Tenure: | Leasehold |
|---|---|
| Lease Years Remaining: | 994 |
| Service Charge: | £2,506 per year |
| Council Tax Band: | B |
Rooms
Reception
3.78 x 7.51 (12'4" x 24'7")
Bedroom 1
1.36 x 4.82 (4'5" x 15'9")
Bedroom 2
3.08 x 4.82 (10'1" x 15'9")
Bathroom
1.6 x 2.09 (5'2" x 6'10")
En-suite
1.36 x 2.1 (4'5" x 6'10")
Utilities
Broadband:
Fibre to Cabinet
Electricity:
Mains Supply
Sewerage:
Mains Supply
Mortgage calculator
Calculate Your Stamp Duty
Results
Stamp Duty To Pay:
Effective Rate:
| Tax Band | % | Taxable Sum | Tax |
|---|
Kenmore Place, Riverside Park, Ashford
Want to explore Kenmore Place, Riverside Park, Ashford further? Explore our local area guide
Struggling to find a property? Get in touch and we'll help you find your ideal property.