Standout Features
- TWO BEDROOM
- MAISONETTE
- NO FORWARD CHAIN
- GARAGE
- LOUNGE/DINER
- CLOSE TO A2
- EPC RATING-C
Property Description
Guide Price: £190,000-£210,000
Available to view now is this two bedroom maisonette on The Hollies, Gravesend!
This is an ideal first-time buy/investment purchase and one of the standout features of this property is the absence of a forward chain.
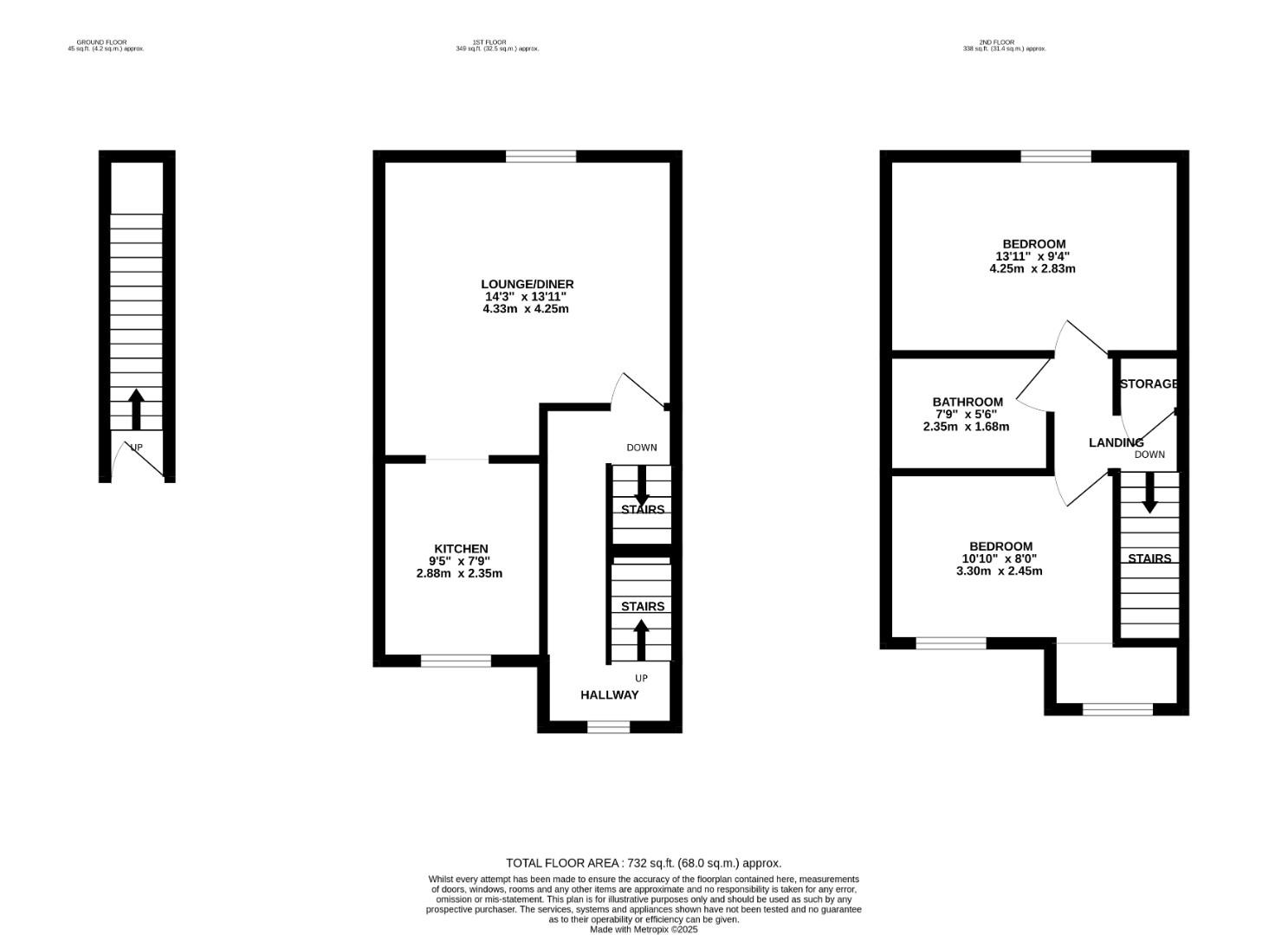
The entrance hall has stairs that lead up to the Lounge/Diner and the kitchen area on the first floor.
To the second floor you will find the two bedrooms and the bathroom.
Situated in Gravesend, The Hollies benefits from local amenities, including shops, schools, and transport links, making it easy to access the wider region. Whether you are commuting to London or enjoying the nearby local parks and recreational facilities, this location offers the best of both worlds.
In summary, this maisonette at The Hollies presents a wonderful opportunity with its spacious layout and convenient location and is sure to appeal to a variety of buyers. Do not miss the chance to make this property your own.
Available to view now is this two bedroom maisonette on The Hollies, Gravesend!
This is an ideal first-time buy/investment purchase and one of the standout features of this property is the absence of a forward chain.
The entrance hall has stairs that lead up to the Lounge/Diner and the kitchen area on the first floor.
To the second floor you will find the two bedrooms and the bathroom.
Situated in Gravesend, The Hollies benefits from local amenities, including shops, schools, and transport links, making it easy to access the wider region. Whether you are commuting to London or enjoying the nearby local parks and recreational facilities, this location offers the best of both worlds.
In summary, this maisonette at The Hollies presents a wonderful opportunity with its spacious layout and convenient location and is sure to appeal to a variety of buyers. Do not miss the chance to make this property your own.
Lounge/Diner (4.33 4.25)
Kitchen (2.88 x 2.35)
Bedroom (4.25 x 2.83)
Bedroom (3.30 x 2.45)
Bathroom (2.35 x 1.68)
Additional Information
| Tenure: | Leasehold |
|---|---|
| Lease Years Remaining: | 982 |
| Ground Rent: | £540 per year |
| Council Tax Band: | B |
Rooms
Lounge/Diner
4.33 4.25 (14'2" 13'11")
Kitchen
2.88 x 2.35 (9'5" x 7'8")
Bedroom
4.25 x 2.83 (13'11" x 9'3")
Bedroom
3.30 x 2.45 (10'9" x 8'0")
Bathroom
2.35 x 1.68 (7'8" x 5'6")
Mortgage calculator
Calculate Your Stamp Duty
Results
Stamp Duty To Pay:
Effective Rate:
| Tax Band | % | Taxable Sum | Tax |
|---|
The Hollies, Gravesend
Want to explore The Hollies, Gravesend further? Explore our local area guide
Struggling to find a property? Get in touch and we'll help you find your ideal property.