Standout Features
- End Stone terraced
- No onward chain
- Two generous bedrooms
- Spacious open-plan living
- Double and single bedrooms
- Generous wrap-around garden
- Excellent public transport links
- Allocated and guest parking
- Insulated garden room
- Perfect first home
Property Description
This well-presented two-bedroom end stone terraced house, offered with no onward chain, features a spacious open-plan living area, modern kitchen, generous wrap-around garden with a timber garden room, allocated parking, and is ideally located near public transport, amenities, and green spaces—making it perfect for first-time buyers or investors.
Additional Information
| Tenure: | Freehold |
|---|---|
| Council Tax Band: | B |
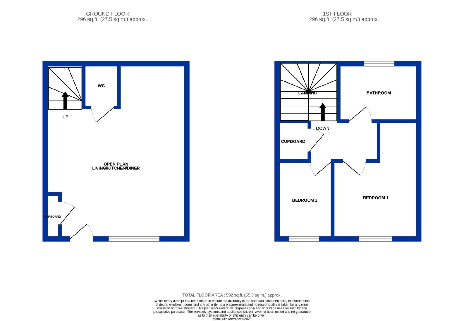
Rooms
OPEN PLAN LIVING/KITCHEN/DINER
5.83m x 4.72m (19'1" x 15'5")
DOWNSTAIRS WC
1.45m x 1.17m (4'9" x 3'10")
BEDROOM ONE
3.75m x 2.53m (12'3" x 8'3")
BEDROOM TWO
2.60m x 1.85m (8'6" x 6'0")
BATHROOM
2.59m x 1.88m (8'5" x 6'2")
Mortgage calculator
Calculate Your Stamp Duty
Results
Stamp Duty To Pay:
Effective Rate:
| Tax Band | % | Taxable Sum | Tax |
|---|
Bobbin Row, Leeds
Want to explore Bobbin Row, Leeds further? Explore our local area guide
Struggling to find a property? Get in touch and we'll help you find your ideal property.