Standout Features
- Delightful, Rarely available - 2 Bedroom Detached Freehold Home
- Brought to the market with no onward-chain complications
- Positioned within a quiet cul-de-sac with only 5 other homes
- Off street parking - Allocated parking spaces (2)
- Charming walled garden with side access, mainly laid to lawn
- Kitchen to front elevation with space for free standing appliances
- Large, bright family reception room to rear with patio doors leading into garden
- Ground floor W/C, Family bath-suite and en-sutie to master bedroom
- 2 Spacious double bedrooms, Master boasting shower room
- EPC Rating: C (75) - Council Tax Band: B
Property Description
A free-hold, 2-bedroom detached home sold with no onward chain, located within the extremely popular Repton Park development.
Nestled within development you will find this well proportioned coach house home just a stones throw from Waitrose Supermarket, open green fields & Junction 9 of the M20, ideal for commuters! Park your cars on the 2 allocated parking spaces and wander into your new turn-key, enjoy the luxury of your own detached place!
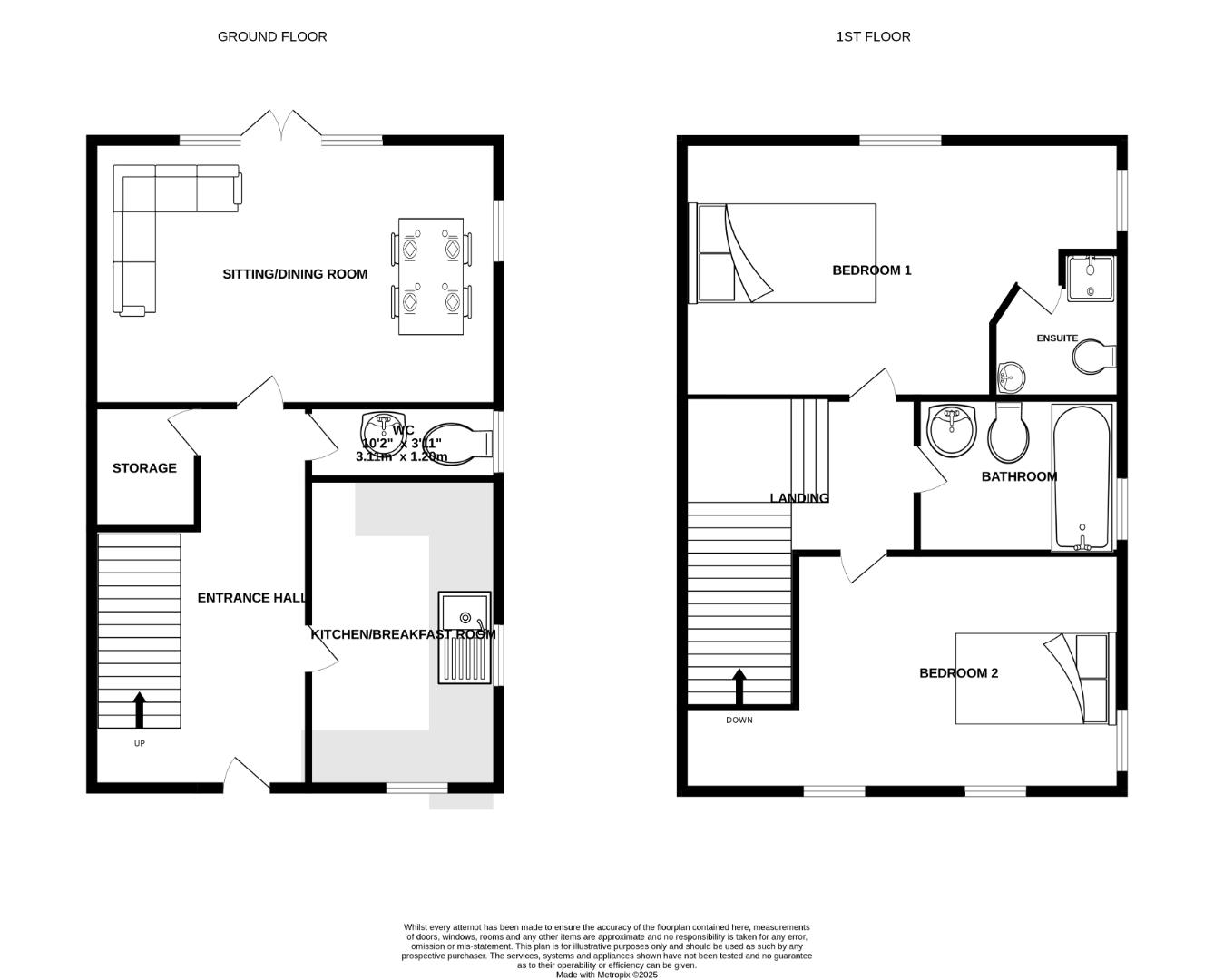
Internally, there is a handy entrance hall, the ideal place to kick off your shoes and hang up your coat in the large storage cupboard beneath the stairs. The hall leads into the properties modest kitchen area, which offers space for free standing appliances, as well as perfectly placed window, flooding this space with light. To the rear, is a large open plan lounge/dining room boasting patio doors that lead into the rear garden. Finishing the ground floor well is the all important ground floor W/C.
The stairs rise to the landing where you will find 2, large double bedrooms & family bathroom. The principal bedroom is again, well lit with dual aspect windows and ample in floor space, which also boasts an en-suite shower room too. The real bonus here, is that you have two double bedrooms, as the 2nd guest bedroom is equally as spacious and offers a handy alcove, ideal for free standing furniture. Both bedrooms are serviced by the family bath-suite, ensuring there are no que's for the loo in the morning, with 3 toilet's to choose from.
Externally, not only is the home located in a quiet cul-de-sac with only 5 other homes, but has parking for 2 cars, as well as a private garden, mainly laid to lawn; which is enclosed within a brick wall boundary, enhancing that private & peaceful feeling. There is side access from within the garden, ensuring that the green found within the neighbouring road is only a short wander away.
Nestled within development you will find this well proportioned coach house home just a stones throw from Waitrose Supermarket, open green fields & Junction 9 of the M20, ideal for commuters! Park your cars on the 2 allocated parking spaces and wander into your new turn-key, enjoy the luxury of your own detached place!
Internally, there is a handy entrance hall, the ideal place to kick off your shoes and hang up your coat in the large storage cupboard beneath the stairs. The hall leads into the properties modest kitchen area, which offers space for free standing appliances, as well as perfectly placed window, flooding this space with light. To the rear, is a large open plan lounge/dining room boasting patio doors that lead into the rear garden. Finishing the ground floor well is the all important ground floor W/C.
The stairs rise to the landing where you will find 2, large double bedrooms & family bathroom. The principal bedroom is again, well lit with dual aspect windows and ample in floor space, which also boasts an en-suite shower room too. The real bonus here, is that you have two double bedrooms, as the 2nd guest bedroom is equally as spacious and offers a handy alcove, ideal for free standing furniture. Both bedrooms are serviced by the family bath-suite, ensuring there are no que's for the loo in the morning, with 3 toilet's to choose from.
Externally, not only is the home located in a quiet cul-de-sac with only 5 other homes, but has parking for 2 cars, as well as a private garden, mainly laid to lawn; which is enclosed within a brick wall boundary, enhancing that private & peaceful feeling. There is side access from within the garden, ensuring that the green found within the neighbouring road is only a short wander away.
Additional Information
| Tenure: | Freehold |
|---|---|
| Council Tax Band: | C |
Utilities
Electricity:
Mains Supply
Sewerage:
Mains Supply
Heating:
Gas Central
Mortgage calculator
Calculate Your Stamp Duty
Results
Stamp Duty To Pay:
Effective Rate:
| Tax Band | % | Taxable Sum | Tax |
|---|
Frederick Benson Mews, Repton Park
Want to explore Frederick Benson Mews, Repton Park further? Explore our local area guide
Struggling to find a property? Get in touch and we'll help you find your ideal property.