Standout Features
- ENVIABLE LOCATION TO HIGH STREET
- RECENTLY REFURBISHED
- TWO DOUBLE BEDROOMS
- SPACIOUS SITTING ROOM WITH CONSERVATORY
- MODERN KITCHEN & BATHROOM
- DOWNSTAIRS CLOAKROOM
- DOUBLE GLAZED & GAS CENTRAL HEATING
- ENCLOSED REAR GARDEN & ALLOCATED PARKING
Property Description
Deceptively spacious and recently renovated terrace home with two double bedrooms, pretty private garden and allocated parking, situated in an enviable position to offer level and accessible access to the picturesque High Street of Tenterden.
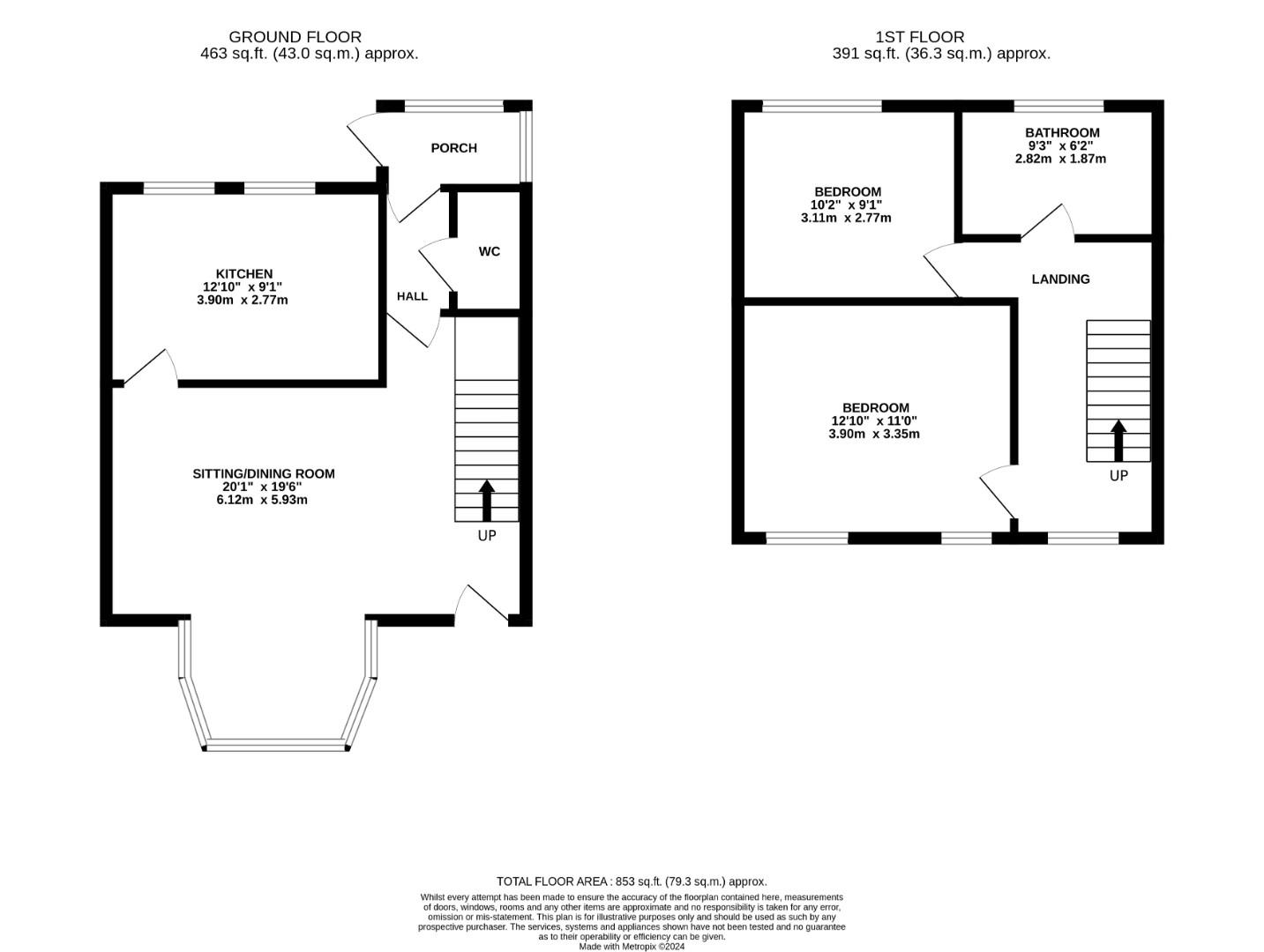
The well-presented accommodation offers a useful entrance porch with tiled flooring which leads into an inner hall with access to the cloakroom with WC and wall mounted hand basin with tiled splashback. The hall also features an attractive engineered oak flooring that continues into the bright sitting room with stairs to first floor, conservatory looking over the pretty rear garden, doorway offering access out, and further doorway leading to the modern kitchen fitted with a range of modern gloss base and wall units with complementing Iroko hardwood worksurfaces, integrated dishwasher, fridge freezer, double oven and hob with extractor above. The Worcester Bosch wall mounted boiler is also housed in the kitchen cupboard.
On the first floor the property offers the master bedroom with two windows overlooking the garden and a second double bedroom to the front. There is also a generous family bathroom with tiled floor and suite comprising of a panelled bath, walk-in corner shower cubicle, hand basin with vanity beneath, WC with concealed cistern and heated towel radiator.
Externally the pretty rear garden is laid to lawn with a generous patio ideal for entertaining and established beds are filled with an array of plants. A gate offers access out to the allocated parking space.
The well-presented accommodation offers a useful entrance porch with tiled flooring which leads into an inner hall with access to the cloakroom with WC and wall mounted hand basin with tiled splashback. The hall also features an attractive engineered oak flooring that continues into the bright sitting room with stairs to first floor, conservatory looking over the pretty rear garden, doorway offering access out, and further doorway leading to the modern kitchen fitted with a range of modern gloss base and wall units with complementing Iroko hardwood worksurfaces, integrated dishwasher, fridge freezer, double oven and hob with extractor above. The Worcester Bosch wall mounted boiler is also housed in the kitchen cupboard.
On the first floor the property offers the master bedroom with two windows overlooking the garden and a second double bedroom to the front. There is also a generous family bathroom with tiled floor and suite comprising of a panelled bath, walk-in corner shower cubicle, hand basin with vanity beneath, WC with concealed cistern and heated towel radiator.
Externally the pretty rear garden is laid to lawn with a generous patio ideal for entertaining and established beds are filled with an array of plants. A gate offers access out to the allocated parking space.
Additional Information
| Tenure: | Freehold |
|---|---|
| Council Tax Band: | D |
Mortgage calculator
Calculate Your Stamp Duty
Results
Stamp Duty To Pay:
Effective Rate:
| Tax Band | % | Taxable Sum | Tax |
|---|
West Cross Mews, West Cross Gardens Tenterden
Want to explore West Cross Mews, West Cross Gardens Tenterden further? Explore our local area guide
Struggling to find a property? Get in touch and we'll help you find your ideal property.