Standout Features
- Top floor two-bedroom apartment
- Bright open-plan living / dining
- Potential annual rental income of £10,200 based on current contract
- Dual aspect sunshine with leafy outlooks
- Two generously sized double bedrooms
- Contemporary bathroom with over-bath shower
- Close to Bramley Shopping Centre, shops, cafés and amenities
- Modern kitchen with high-gloss units and integrated oven
- Communal parking & garden available
- EPC score: 'C' & Council tax band: 'B'
Property Description
This neutrally decorated top floor TWO-bedroom apartment offers bright OPEN-PLAN living with dual aspect sunshine and leafy VIEWS toward Bramley Park. Both bedrooms are generous DOUBLES with Velux windows, while the MODERN kitchen and bathroom provide comfortable, READY-TO-MOVE-INTO living. With communal garden and PARKING, and excellent access to Bramley Park, local shops, Bramley Shopping Centre, and Bramley train station, this WELL-CONNECTED home is ideal for first time buyers, couples, or investors seeking convenience and green surroundings.
Additional Information
| Tenure: | Leasehold |
|---|---|
| Lease Years Remaining: | 82 |
| Council Tax Band: | B |
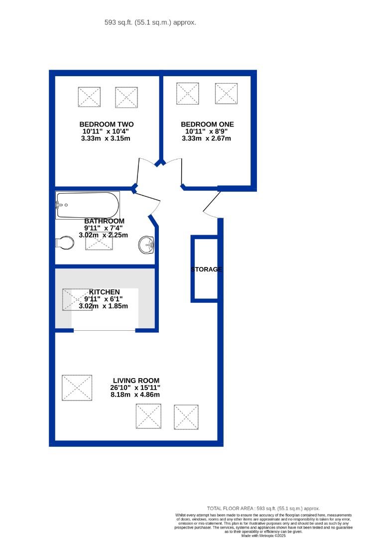
Rooms
KITCHEN
3.02m x 1.85m (9'10" x 6'0")
LIVING ROOM
8.18m x 4.86m (26'10" x 15'11")
BEDROOM ONE
3.33m x 2.67m (10'11" x 8'9")
BEDROOM TWO
3.33m x 3.15m (10'11" x 10'4")
BATHROOM
3.02m x 2.25m (9'10" x 7'4")
Mortgage calculator
Calculate Your Stamp Duty
Results
Stamp Duty To Pay:
Effective Rate:
| Tax Band | % | Taxable Sum | Tax |
|---|
Westmoor Street, Leeds
Want to explore Westmoor Street, Leeds further? Explore our local area guide
Struggling to find a property? Get in touch and we'll help you find your ideal property.