Britannia Road, Bridlington

OIRO £200,000 | Available

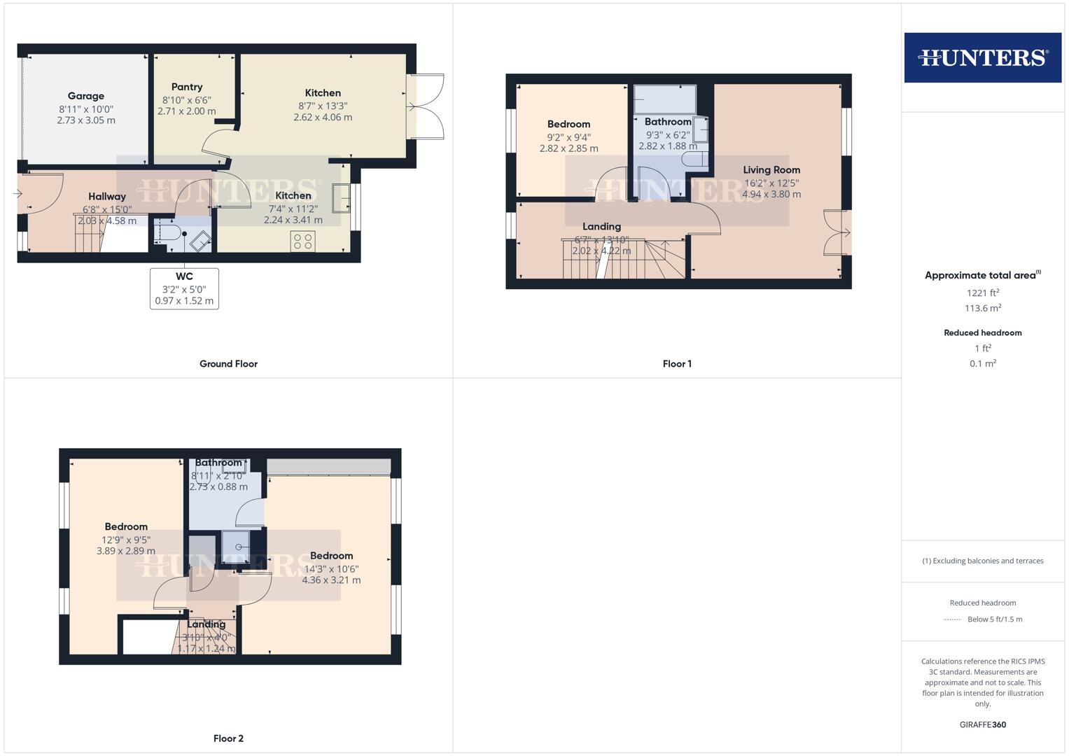
3 bedroom House For Sale
Total Size: 1221 SQ FT
or call 01262 674252
Standout Features

Property Description
Nestled on the charming Britannia Road in Bridlington, this delightful house offers a perfect blend of comfort and practicality. Spanning an impressive 1,221 square feet, the property features three well-proportioned bedrooms, making it an ideal home for families or those seeking extra space.

Upon entering, you are welcomed into a spacious reception room that exudes warmth and character. The lounge boasts a lovely Juliet balcony, providing a picturesque view of the garden, perfect for enjoying a morning coffee or an evening read. The heart of the home is undoubtedly the kitchen, which is designed with family living in mind. It offers ample space for a dining table, making it a wonderful spot for family meals and gatherings. The kitchen also includes convenient patio doors that lead directly to the garden, allowing for seamless indoor-outdoor living. Additionally, a pantry/storage room provides extra space for all your culinary needs.

The main bedroom is a true retreat, featuring fitted sliding wardrobes that offer both style and functionality. The property is complemented by two well-appointed bathrooms, ensuring convenience for all residents.

Outside, the property boasts parking for two vehicles, along with a single garage, providing ample space for your vehicles and additional storage. The garden is a lovely feature, offering a private outdoor space to relax and unwind.

This house on Britannia Road is not just a property; it is a home that promises comfort, convenience, and a wonderful lifestyle in the heart of Bridlington. Don’t miss the opportunity to make it your own.

.HMRC

Should you wish to proceed with an offer on this property we are obliged by HMRC to conduct mandatory Anti Money Laundering Checks. We outsource these checks to our compliance partners at Coadjute and they charge a fee for this service


Additional Information
Tenure: Freehold
Council Tax Band: C

Rooms
.HMRC
Should you wish to proceed with an offer on this property we are obliged by HMRC to conduct mandatory Anti Money Laundering Checks. We outsource these checks to our compliance partners at Coadjute and they charge a fee for this service

Utilities
Electricity:
Mains Supply
Sewerage:
Mains Supply
Heating:
Gas Central

Mortgage calculator

Calculate Your Stamp Duty
£
Results
Stamp Duty To Pay:
Effective Rate:
Tax Band % Taxable Sum Tax

Britannia Road, Bridlington

Want to explore Britannia Road, Bridlington further? Explore our local area guide

Struggling to find a property? Get in touch and we'll help you find your ideal property.