Standout Features
- A Beautifully presented, Modern 3 bedroom semi-detached home
- Envious position within the estate, with far-reaching fields views
- Presented in 'show-home' like conditions throughout
- Landscaped rear garden which now offers further out-door dining space
- Carport & Driveway providing parking for 2/3 vehicles
- Large open-plan lounge/diner to rear with media wall & patio doors
- Modern kitchen to front of home boasting unspoilt green views
- 3 Well proportioned bedrooms, with principal boasting en-suite shower room
- Guest bedroom boasting in-built storage + Modern family bathroom
- EPC Rating: B (84) - Council Tax Band: D - Estate fee: £280.00pa approx
Property Description
Trying to find a property that you can move straight into? A home that you can simply lock up and leave, and go wandering on one of those green-leafy walks that are found on your door-step. How about a home, located within a popular modern development. Well here is a real gem of a 3 bedroom semi detached home in Bridgefield, that has open field views to the front elevation! Brought to the market in as close to show home standard as you can get, with new carpets & having been freshly decorated, it's ready to move into now. This home offers both easy access to the Ashford town centre & the Highspeed rail links to London.
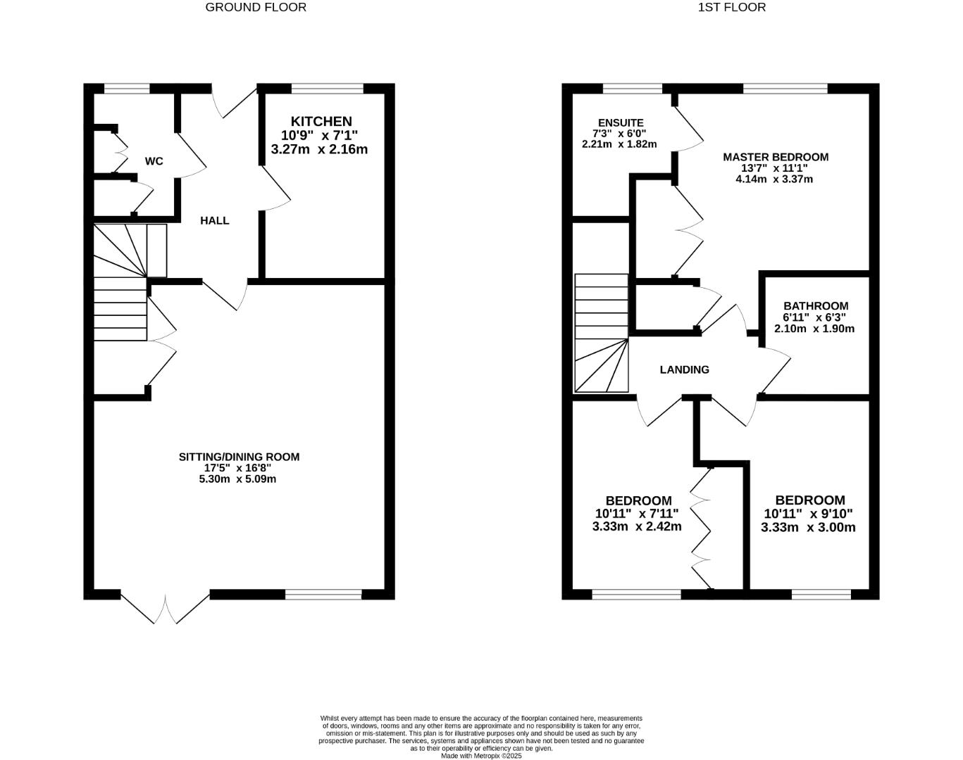
Behind the homes well kept exterior, is a flexible & functional property, offering comfortable living arrangements for a growing family looking to plant their roots. Wander in through your front door, and discover an entrance hall, which leads to a large and bright separate reception room located at the rear of the home, boasting a charming media wall, distinctive place to dine, and relax whilst offering ample floor space. A handy storage cupboard beneath the stairs - as well as patio doors that lead into the rear garden compliment this home well. At the front of the home is where you'll find the kitchen that offers a generous helping of wall and base units with appliances within as well as a charming picture window to the front to flood this space with natural light overlooking the fields to the front elevation. Further to the ground floor there is a handy ground floor downstairs toilet, which has also had added built in storage, a staple addition of the family home.
Behind the homes well kept exterior, is a flexible & functional property, offering comfortable living arrangements for a growing family looking to plant their roots. Wander in through your front door, and discover an entrance hall, which leads to a large and bright separate reception room located at the rear of the home, boasting a charming media wall, distinctive place to dine, and relax whilst offering ample floor space. A handy storage cupboard beneath the stairs - as well as patio doors that lead into the rear garden compliment this home well. At the front of the home is where you'll find the kitchen that offers a generous helping of wall and base units with appliances within as well as a charming picture window to the front to flood this space with natural light overlooking the fields to the front elevation. Further to the ground floor there is a handy ground floor downstairs toilet, which has also had added built in storage, a staple addition of the family home.
Additional Information
| Tenure: | Freehold |
|---|---|
| Council Tax Band: | D |
Utilities
Broadband:
fixedwireless
Electricity:
Mains Supply
Sewerage:
Mains Supply
Heating:
Gas Central
Mortgage calculator
Calculate Your Stamp Duty
Results
Stamp Duty To Pay:
Effective Rate:
| Tax Band | % | Taxable Sum | Tax |
|---|
Crop Lane, Bridgefield
Want to explore Crop Lane, Bridgefield further? Explore our local area guide
Struggling to find a property? Get in touch and we'll help you find your ideal property.