3 bedroom House For Sale

£260,000 | Available

3 bedroom House For Sale
or call 01943 660002
Standout Features

Property Description
Hunters Otley & Ilkley are now in receipt of an offer for the sum of £260,000 for 31 Hamilton Terrace, Otley, LS21 1AN

Anyone wishing to place an offer on the property should contact Hunters Otley & Ilkley, 56-58 Kirkgate, Otley, LS21 3HJ 01943 660002 before exchange of contracts.

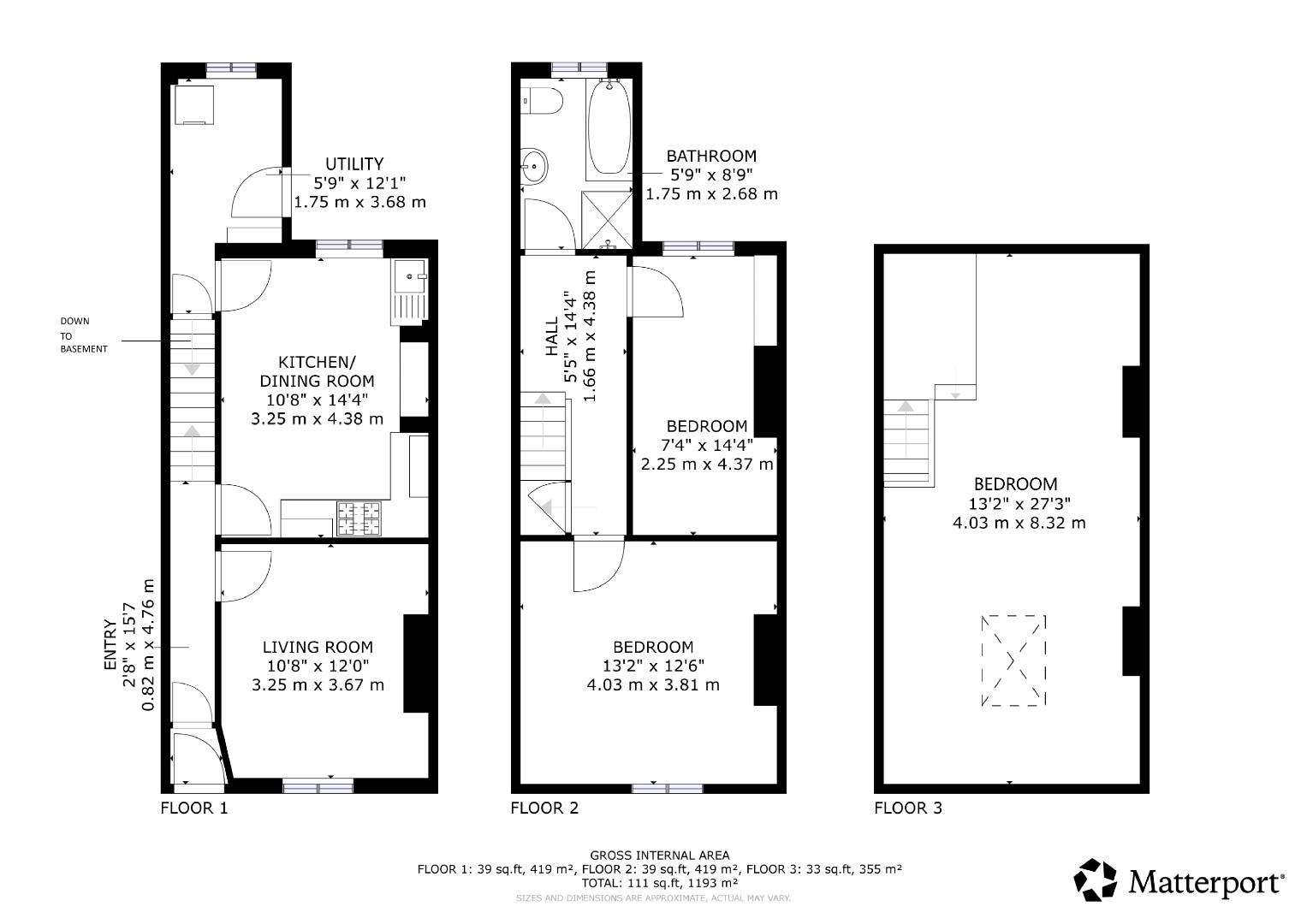
A fantastic opportunity has arisen to purchase this three bedroom Victorian stone terrace. Set over four floors (including the basement), this home, whilst in need of some modernisation, offers generous accommodation throughout. In brief, on the ground floor, there is an entrance hallway, a living room, a spacious kitchen/diner which leads through to a utility room and stairs to the basement. To the first floor, there are two double bedrooms and a house bathroom, and on the top floor, there is a further generous double bedroom. Outside, the property benefits from an enclosed garden to the rear with potential to create off street parking and a small garden to the front of the property. For anyone looking for an opportunity to create a wonderful family home in a very desirable location this is one not to be missed. CHAIN FREE.

Otley is a thriving, historical market town in the Wharfe Valley offering a wide range of amenities, shops, supermarkets and traditional pubs, and also benefits from well-regarded schools for all ages including Prince Henrys Grammar School. The town centre bus station has regular bus services to Leeds, Bradford and Harrogate, and in addition, there is a railway station at nearby Menston offering mainline links. And for those travelling further afield, Leeds/Bradford International Airport is in nearby Yeadon. Close by there are delightful countryside walks, parks and bike rides.

DIRECTIONS

From our Hunters Otley & Ilkley offices on Kirkgate, turn left onto Bondgate. Take the second left onto Crossgate and continue to the lights at the end of the road. Cross straight over at the lights onto Wesley Street, then right onto Courthouse Street. At a crossroads turn left onto Hamilton Terrace. The property can be found on the right hand side and can be identified by our Hunters For Sale Board.

AGENTS NOTES

Tenure: Freehold

Council Tax Band C, Leeds City Council

ANTI MONEY LAUNDERING CHECKS AND OFFER ACCEPTANCE

By law, we are required to conduct anti-money laundering checks on all potential buyers and sellers, and we take this responsibility very seriously. In line with HMRC guidelines, our trusted partner, Coadjute, will securely manage these checks on our behalf. Once an offer is accepted (subject to contract), Coadjute will send a secure link for you to complete the biometric checks electronically. A non-refundable fee of £45 + VAT per person will apply for these checks, and Coadjute will handle the payment for this service. These anti-money laundering checks must be completed before we can send the memorandum of sale to the solicitors to confirm the sale. Please contact the office if you have any questions in relation to this.

ADDITIONAL SERVICES

If you are thinking of selling or letting your home, please contact our office for more information. Hunters is the fastest growing independent estate agency in the country, with more than 200 branches nationwide. We can put you in touch with a local independent financial advisor, who can offer the latest mortgage products, tailored to your individual requirements.

DISCLAIMER

These particulars are intended to give a fair and reliable description of the property but no responsibility for any inaccuracy or error can be accepted and do not constitute an offer or contract. We have not tested any services or appliances (including central heating if fitted) referred to in these particulars and the purchasers are advised to satisfy themselves as to the working order and condition. If a property is unoccupied at any time there may be reconnection charges for any switched off/disconnected or drained services or appliances - All measurements are approximate. All services/appliances have not, and will not be tested


Additional Information
Tenure: Freehold
Council Tax Band: C

Rooms
DIRECTIONS
From our Hunters Otley & Ilkley offices on Kirkgate, turn left onto Bondgate. Take the second left onto Crossgate and continue to the lights at the end of the road. Cross straight over at the lights onto Wesley Street, then right onto Courthouse Street. At a crossroads turn left onto Hamilton Terrace. The property can be found on the right hand side and can be identified by our Hunters For Sale Board.
AGENTS NOTES
Tenure: Freehold

Council Tax Band C, Leeds City Council
ANTI MONEY LAUNDERING CHECKS AND OFFER ACCEPTANCE
By law, we are required to conduct anti-money laundering checks on all potential buyers and sellers, and we take this responsibility very seriously. In line with HMRC guidelines, our trusted partner, Coadjute, will securely manage these checks on our behalf. Once an offer is accepted (subject to contract), Coadjute will send a secure link for you to complete the biometric checks electronically. A non-refundable fee of £45 + VAT per person will apply for these checks, and Coadjute will handle the payment for this service. These anti-money laundering checks must be completed before we can send the memorandum of sale to the solicitors to confirm the sale. Please contact the office if you have any questions in relation to this.
ADDITIONAL SERVICES
If you are thinking of selling or letting your home, please contact our office for more information. Hunters is the fastest growing independent estate agency in the country, with more than 200 branches nationwide. We can put you in touch with a local independent financial advisor, who can offer the latest mortgage products, tailored to your individual requirements.
DISCLAIMER
These particulars are intended to give a fair and reliable description of the property but no responsibility for any inaccuracy or error can be accepted and do not constitute an offer or contract. We have not tested any services or appliances (including central heating if fitted) referred to in these particulars and the purchasers are advised to satisfy themselves as to the working order and condition. If a property is unoccupied at any time there may be reconnection charges for any switched off/disconnected or drained services or appliances - All measurements are approximate. All services/appliances have not, and will not be tested

Mortgage calculator

Calculate Your Stamp Duty
£
Results
Stamp Duty To Pay:
Effective Rate:
Tax Band % Taxable Sum Tax

Hamilton Terrace, Otley, LS21

Want to explore Hamilton Terrace, Otley, LS21 further? Explore our local area guide

Struggling to find a property? Get in touch and we'll help you find your ideal property.