Standout Features
- FREEHOLD
- OUTHOUSE
- A COUPLE OF MINUTES WALK FROM THE METROLINK
- 0.7 MILE TO WYTHENSHAWE HOSPITAL
- 1.0 MILE TO NEWALL GREEN PRIMARY SCHOOL
- EASY ACCESS To M56/M60 MOTORWAY
- GREAT TRANSPORT LINKS TO MANCHESTER CITY CENTRE
- PARKING AVAILABLE
- COUNCIL TAX BAND A
- EPC - C
Property Description
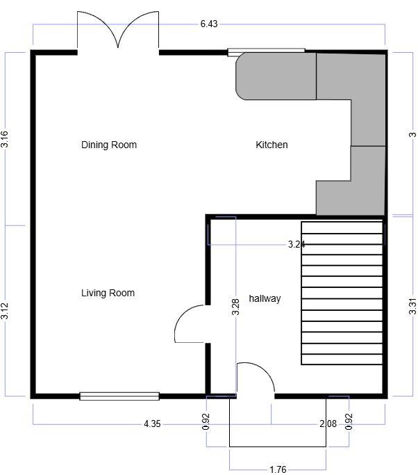
Situated in the tranquil cul-de-sac of Maltby Road, Manchester, this charming three-bedroom house offers a delightful blend of comfort and convenience. Spanning an impressive 861 square feet, the property features a welcoming reception room that serves as the heart of the home, perfect for both relaxation and entertaining.
The well-appointed kitchen and dining area lead seamlessly to a lovely and easy-to-maintain patio garden, providing an ideal outdoor space for enjoying sunny afternoons or hosting gatherings with family and friends. The garden is a true gem, offering a peaceful retreat from the hustle and bustle of daily life.
This residence boasts three bedrooms, ensuring ample room for a growing family or guests. The bathroom is thoughtfully designed, catering to all your needs. An added benefit of this property is the outhouse, which serves as a utility room, providing extra storage and functionality.
Conveniently located, the house is just a short stroll from the Metrolink, making commuting and exploring the wider Manchester area a breeze. Additionally, its proximity to Wythenshawe Hospital is a significant advantage for healthcare professionals or those seeking easy access to medical facilities.
Set back from the road, the property enjoys a peaceful atmosphere while still being close to local amenities. The open car park available nearby adds to the convenience of this lovely home. This property is an excellent opportunity for anyone looking to settle in a quiet yet accessible location in Manchester.
SALE ONLY ON GRANT OF PROBATE
The well-appointed kitchen and dining area lead seamlessly to a lovely and easy-to-maintain patio garden, providing an ideal outdoor space for enjoying sunny afternoons or hosting gatherings with family and friends. The garden is a true gem, offering a peaceful retreat from the hustle and bustle of daily life.
This residence boasts three bedrooms, ensuring ample room for a growing family or guests. The bathroom is thoughtfully designed, catering to all your needs. An added benefit of this property is the outhouse, which serves as a utility room, providing extra storage and functionality.
Conveniently located, the house is just a short stroll from the Metrolink, making commuting and exploring the wider Manchester area a breeze. Additionally, its proximity to Wythenshawe Hospital is a significant advantage for healthcare professionals or those seeking easy access to medical facilities.
Set back from the road, the property enjoys a peaceful atmosphere while still being close to local amenities. The open car park available nearby adds to the convenience of this lovely home. This property is an excellent opportunity for anyone looking to settle in a quiet yet accessible location in Manchester.
SALE ONLY ON GRANT OF PROBATE
Additional Information
| Tenure: | Freehold |
|---|---|
| Council Tax Band: | A |
Rooms
ADDITIONAL INFORMATION
By law, we are required to conduct anti-money laundering checks on all potential buyers and sellers, and we take his responsibility very seriously. In line with HMRC guidelines, our trusted partner, Coadjute, will securely manage these checks on our behalf. Once an offer is accepted (subject to contract), Coadjute will send a secure link for you to complete the biometric checks electronically. A non-refundable fee of £45 + VAT per person will apply for these checks, and Coadjute will handle the payment for this service. These anti-money laundering checks must be completed before we can send the memorandum of sale to the solicitors to confirm the sales.Mortgage calculator
Calculate Your Stamp Duty
Results
Stamp Duty To Pay:
Effective Rate:
| Tax Band | % | Taxable Sum | Tax |
|---|
Maltby Road, Manchester
Want to explore Maltby Road, Manchester further? Explore our local area guide
Struggling to find a property? Get in touch and we'll help you find your ideal property.