Standout Features

Property Description
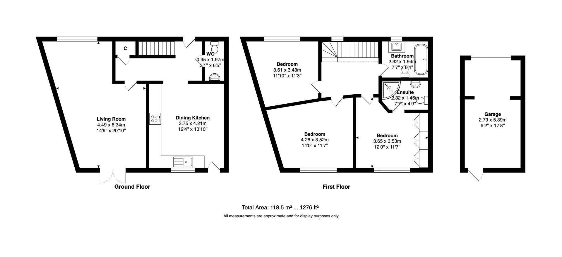
An exceptional three-bedroom home in the highly sought-after village of Churwell, beautifully presented throughout and offering a sense of space, light and quality rarely found in many modern homes. Highlights include a stunning dual-aspect living room with herringbone flooring and French doors to the garden, a stylish kitchen diner perfect for family life, and three generous double bedrooms including a superb principal suite with ensuite. Outside, a beautifully landscaped garden with Indian stone, astroturf and composite decking creates the perfect space for relaxing and entertaining, complemented by a driveway and garage.

An exceptional three-bedroom home in the highly sought-after village of Churwell, showcasing immaculate interiors, impressive natural brightness and a layout that stands apart from many modern homes.

From the moment you step inside, the home immediately impresses. Unlike many contemporary properties, the entrance hall is notably open and welcoming, creating a sense of space rarely found in modern builds and setting the tone for the quality and presentation throughout.

The main reception room is a bright and generously sized living space, enjoying a dual-aspect outlook created by a window to the front and French doors opening directly onto the rear garden. Finished with stylish herringbone LVT flooring, the room feels wonderfully light and offers plenty of space for family living, relaxing and entertaining. A charming whisky area adds character and creates a cosy spot to unwind.

The modern kitchen diner is fitted with sleek matte grey units and features an integrated oven, fridge/freezer and dishwasher, along with an extendable tap, tasteful splashback and contemporary under-unit lighting. There is ample space for a dining table, making it ideal for family meals and everyday living while serving as a practical and sociable hub of the home.

Upstairs, the home continues to impress. The landing itself is a standout feature, benefiting from a large window that fills the space with daylight and enhances the bright, airy feel of the upper floor. This generous landing is rarely found in many modern homes and creates a wonderful sense of openness as it connects the bedrooms.

All three bedrooms are comfortable doubles. The principal bedroom sits peacefully at the rear of the property overlooking the garden and benefits from fitted wardrobes with integrated TV sockets, attractive décor and a pleasant sunny outlook. It also enjoys its own en-suite featuring a corner shower, WC and pedestal sink. The second double bedroom also overlooks the rear garden, while the third double sits to the front of the home with neat and well-presented décor.

The house bathroom has been finished to an exceptional standard, creating a luxurious, spa-inspired space. Beautifully tiled throughout, it features a contemporary suite comprising a bath with rainfall shower over, stylish fittings, a heated towel rail and a frosted window allowing natural light while maintaining privacy. The overall finish gives the room a calm, boutique-hotel feel.

Externally, the property continues to impress with a garage and driveway providing off-street parking. The rear garden has been beautifully designed to create a stylish and low-maintenance outdoor living space, featuring elegant Indian stone paving, quality astroturf and a raised composite decking area. Fully fenced and secure, this private garden offers a wonderful setting for relaxing, outdoor dining and entertaining, making it the perfect place to enjoy long summer evenings with family and friends.

Churwell remains one of south Leeds’ most desirable residential locations, offering a balance of green surroundings and everyday convenience. Situated in the popular Churwell area of Morley, this home enjoys a highly convenient yet well-connected setting with a range of local amenities, green spaces and schools nearby. The property is just a short 0.3 mile walk from Cottingley Train Station, providing quick and direct rail links into Leeds city centre, making it an excellent choice for commuters. Morley town centre is also within easy reach, offering a wide selection of shops, cafés, restaurants and leisure facilities, while nearby road links provide straightforward access to the wider motorway network.

A beautifully presented home where light, space and quality of finish combine to create something truly special. Internal inspection is strongly recommended to fully appreciate the space, light and lifestyle on offer.

DINING KITCHEN (4.21m x 3.75m)

LIVING ROOM (6.34m x 4.49m)

WC (1.97m x 0.95m)

BEDROOM ONE (3.65m x 3.53m)

EN-SUITE (2.32m x 1.46m)

BEDROOM TWO (4.26m x 3.52m)

BEDROOM THREE (3.61m x 3.43m)

BATHROOM (2.32m x 1.94m)

GARAGE


Additional Information
Tenure: Freehold
Council Tax Band: C

Rooms
DINING KITCHEN

4.21m x 3.75m (13'9" x 12'3")
LIVING ROOM

6.34m x 4.49m (20'9" x 14'8")
WC

1.97m x 0.95m (6'5" x 3'1")
BEDROOM ONE

3.65m x 3.53m (11'11" x 11'6")
EN-SUITE

2.32m x 1.46m (7'7" x 4'9")
BEDROOM TWO

4.26m x 3.52m (13'11" x 11'6")
BEDROOM THREE

3.61m x 3.43m (11'10" x 11'3")
BATHROOM

2.32m x 1.94m (7'7" x 6'4")
GARAGE


Mortgage calculator

Calculate Your Stamp Duty
£
Results
Stamp Duty To Pay:
Effective Rate:
Tax Band % Taxable Sum Tax

Mozart Way, Churwell, Morley, Leeds

Want to explore Mozart Way, Churwell, Morley, Leeds further? Explore our local area guide

Struggling to find a property? Get in touch and we'll help you find your ideal property.