Standout Features
- Stylish End-Terrace Home â€" Beautifully presented throughout
- Bright Lounge â€" Bay window flooding the room with light
- Spacious Dining Room â€" Perfect for family or entertaining
- Modern Kitchen â€" Ample storage and workspace
- Three Generous Bedrooms â€" Including a standout principal
- Private Courtyard â€" Low-maintenance outdoor space
Property Description
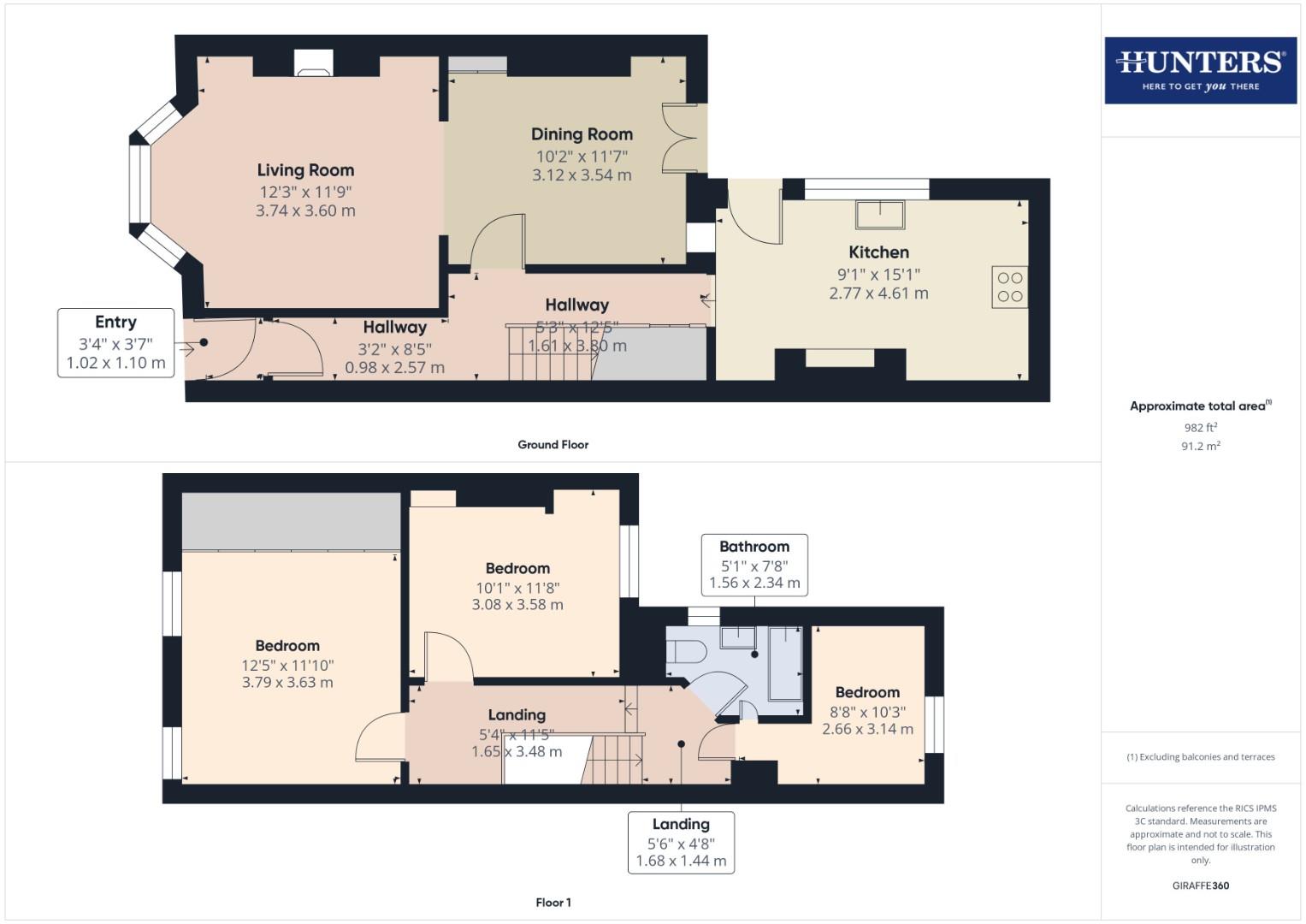
Welcome to this beautifully presented end-terrace home, thoughtfully finished to a high standard throughout, offering stylish and versatile living space.
The ground floor begins with a welcoming porch and hallway, leading to a spacious lounge with a bay window that fills the room with natural light. Beyond lies a well-proportioned dining room, perfect for family meals or entertaining, which flows through to a bright and modern kitchen with ample space for cooking and storage.
Upstairs, the property offers three generous bedrooms. The principal bedroom is a standout feature with its impressive proportions and fitted wardrobe. A second double bedroom and a third bedroom provide excellent flexibility for family living, guests, or a home office. The stylish family bathroom features underfloor heating and has been finished to a high standard with modern fittings.
To the rear, a private courtyard garden offers a low-maintenance outdoor space, ideal for enjoying a morning coffee, alfresco dining, or evening relaxation. Additionally, the property benefits from a shed/outhouse with electricity, perfect for a workshop, studio, or extra storage.
Located in the Falsgrave area, the house offers excellent access to a wide range of local amenities and attractions, including local shops and a supermarket, Falsgrave Park and play area, a 24-hour garage, Scarborough Hospital, as well as a choice of popular junior and secondary schools and two colleges, making this an excellent all-round family home.
Combining elegant décor with practical design, this home is perfect for buyers seeking a move-in ready property that balances character, space, and contemporary living.
The ground floor begins with a welcoming porch and hallway, leading to a spacious lounge with a bay window that fills the room with natural light. Beyond lies a well-proportioned dining room, perfect for family meals or entertaining, which flows through to a bright and modern kitchen with ample space for cooking and storage.
Upstairs, the property offers three generous bedrooms. The principal bedroom is a standout feature with its impressive proportions and fitted wardrobe. A second double bedroom and a third bedroom provide excellent flexibility for family living, guests, or a home office. The stylish family bathroom features underfloor heating and has been finished to a high standard with modern fittings.
To the rear, a private courtyard garden offers a low-maintenance outdoor space, ideal for enjoying a morning coffee, alfresco dining, or evening relaxation. Additionally, the property benefits from a shed/outhouse with electricity, perfect for a workshop, studio, or extra storage.
Located in the Falsgrave area, the house offers excellent access to a wide range of local amenities and attractions, including local shops and a supermarket, Falsgrave Park and play area, a 24-hour garage, Scarborough Hospital, as well as a choice of popular junior and secondary schools and two colleges, making this an excellent all-round family home.
Combining elegant décor with practical design, this home is perfect for buyers seeking a move-in ready property that balances character, space, and contemporary living.
Additional Information
| Tenure: | Freehold |
|---|---|
| Council Tax Band: | B |
Rooms
Material Information Scarborough
Tenure Type; FreeholdCouncil Tax Banding; B
HMRC
Should you wish to proceed with an offer on this property we are obliged by HMRC to conduct mandatory Anti Money Laundering Checks. We outsource these checks to our compliance partners at Coadjute and they charge a fee for this serviceUtilities
Electricity:
Mains Supply
Sewerage:
Mains Supply
Heating:
Gas Central
Mortgage calculator
Calculate Your Stamp Duty
Results
Stamp Duty To Pay:
Effective Rate:
| Tax Band | % | Taxable Sum | Tax |
|---|
Oak Road, Scarborough
Want to explore Oak Road, Scarborough further? Explore our local area guide
Struggling to find a property? Get in touch and we'll help you find your ideal property.