Standout Features
- A 3 / 4 Bedroom, Mid Terrace Family Home - Singleton
- Marketed with no-onward chain complications
- Garage & Driveway provide off road parking
- Generous family reception room on first floor with juliet balcony
- Kitchen/diner to rear boasting patio doors leading into garden
- Flexible accommodation arranged over 3 floors
- Downstairs cloakroom, Family bathroom & En-suite shower room
- Generous principal bedroom with built in wardrobes
- Low maintenance rear garden with patio area & lawn
- EPC Rating: (C (77) - Council Tax Band: D
Property Description
Nestled in the desirable area of Singleton, Ashford, this charming mid-terrace town house presents an excellent opportunity for families seeking a comfortable and versatile home. With no onward chain, this property is ready for you to move in and make it your own.
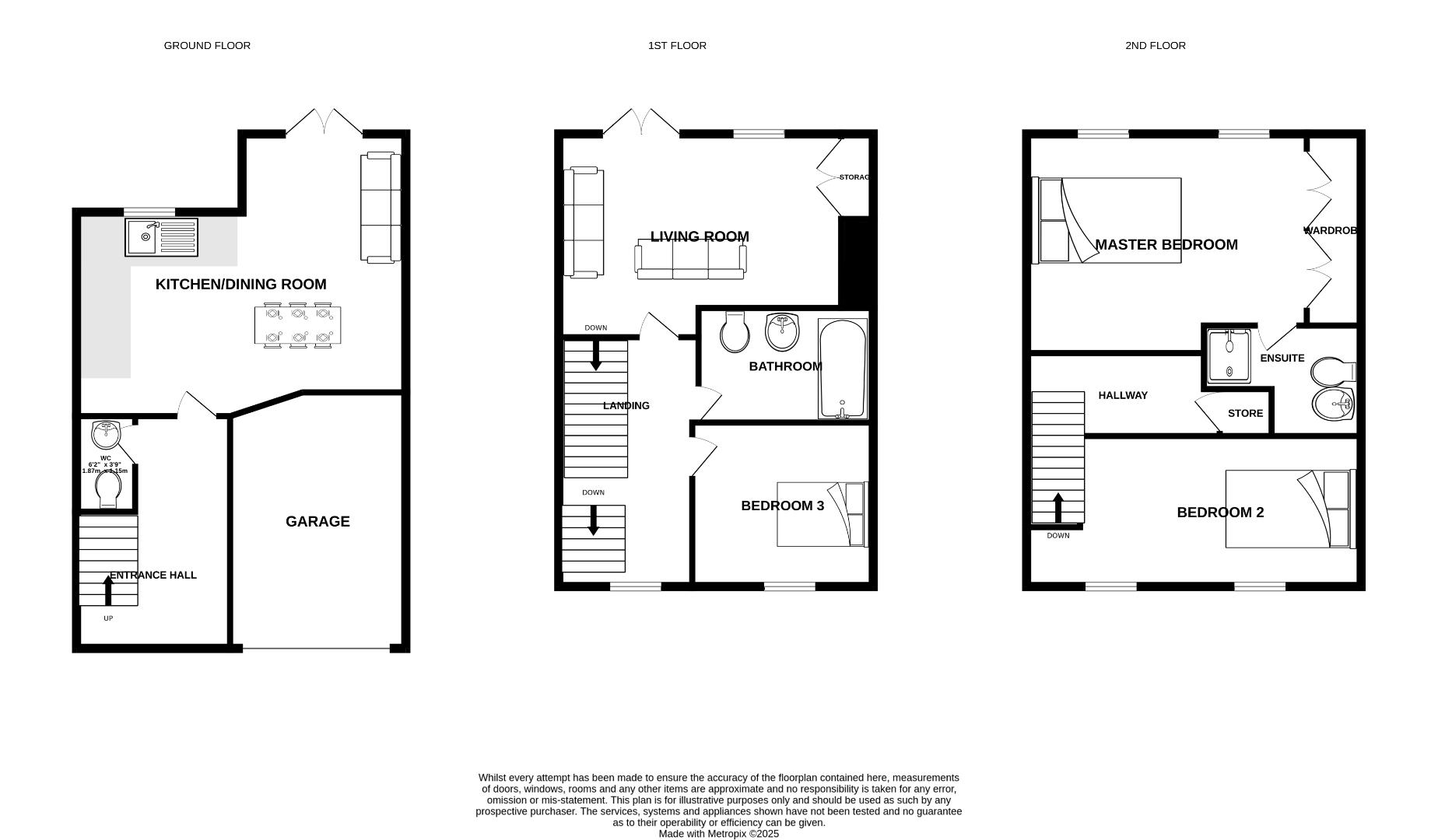
The house boasts three well-proportioned bedrooms, arranged thoughtfully over three floors. The ground floor features a spacious kitchen/diner at the rear, providing a perfect space for family meals and entertaining, with convenient access to the garden. Additionally, a downstairs W/C adds to the practicality of the layout.
On the first floor, you will find two generous double bedrooms, which offer flexible accommodation options. Some residents have creatively transformed the reception room into a fourth bedroom, catering to their specific needs. A well-appointed bathroom on this level serves these bedrooms, ensuring comfort and convenience.
The top floor is dedicated to two further bedrooms, including a principal suite that benefits from an en-suite shower room and fitted wardrobes, providing ample storage. The second bedroom on this floor is also a spacious double, perfect for family or guests.
Externally, the property features a mainly laid to lawn rear garden, ideal for outdoor activities and relaxation. The front of the house offers parking and an integral garage, providing additional storage solutions.
Singleton is a popular residential area, conveniently located near a local parade of shops, the well-regarded Singleton Barn, and excellent primary schools. This home is not just a property; it is a wonderful opportunity to embrace a vibrant community and a comfortable lifestyle. Don’t miss your chance to view this delightful family home.
The house boasts three well-proportioned bedrooms, arranged thoughtfully over three floors. The ground floor features a spacious kitchen/diner at the rear, providing a perfect space for family meals and entertaining, with convenient access to the garden. Additionally, a downstairs W/C adds to the practicality of the layout.
On the first floor, you will find two generous double bedrooms, which offer flexible accommodation options. Some residents have creatively transformed the reception room into a fourth bedroom, catering to their specific needs. A well-appointed bathroom on this level serves these bedrooms, ensuring comfort and convenience.
The top floor is dedicated to two further bedrooms, including a principal suite that benefits from an en-suite shower room and fitted wardrobes, providing ample storage. The second bedroom on this floor is also a spacious double, perfect for family or guests.
Externally, the property features a mainly laid to lawn rear garden, ideal for outdoor activities and relaxation. The front of the house offers parking and an integral garage, providing additional storage solutions.
Singleton is a popular residential area, conveniently located near a local parade of shops, the well-regarded Singleton Barn, and excellent primary schools. This home is not just a property; it is a wonderful opportunity to embrace a vibrant community and a comfortable lifestyle. Don’t miss your chance to view this delightful family home.
Additional Information
| Tenure: | Freehold |
|---|---|
| Council Tax Band: | D |
Utilities
Broadband:
fixedwireless
Electricity:
Mains Supply
Sewerage:
Mains Supply
Heating:
Gas Central
Mortgage calculator
Calculate Your Stamp Duty
Results
Stamp Duty To Pay:
Effective Rate:
| Tax Band | % | Taxable Sum | Tax |
|---|
Ribston Way, Ashford
Want to explore Ribston Way, Ashford further? Explore our local area guide
Struggling to find a property? Get in touch and we'll help you find your ideal property.