Standout Features
- South West Facing Garden
- Chain Free
- Church Road Amenities Footsteps Away
- St George Park Close By
- One Way Road
- Ideal Redfield Location
- Two Reception Rooms
- Recent Kitchen & Boiler
- Three Double Bedrooms & Upstairs Bathroom
- Recently Improved Throughout
Property Description
**CHAIN FREE & TURN KEY READY!** Look at the location - situated on a one way road going off of the ever improving Church Road with cool pubs. restaurants and local shops a few steps away as well as St George Park and easy Central Bristol access. Internally this home is ready for you to move in and complete with a sunny South West facing garden! Briefly comprising inside a lounge, dining room, under stairs storage, recently fitted kitchen to the ground floor. Upstairs offers three double bedrooms! and a bathroom. Damp proofing done! Electrics checked and up to date! Damp proofing & Roof Done! What more could you want in BS5 at this price?? Please make contact to have a look around.
Additional Information
| Tenure: | Freehold |
|---|---|
| Council Tax Band: | A |
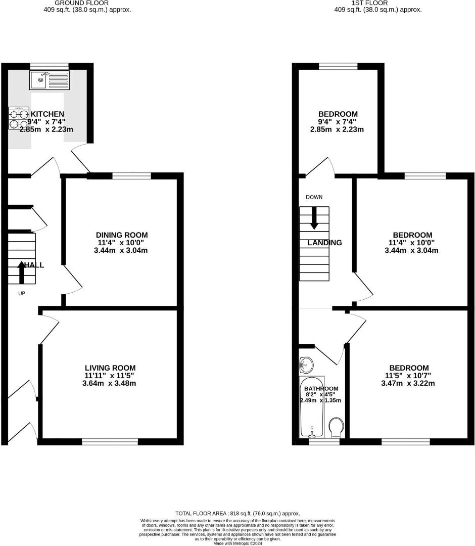
Rooms
FRONT DOOR
Traditional wood door with obscure glass opening intoENTRANCE HALL
Internal porch with full fitted doormat, wood and glass door opening into hallway with Victorian archway, stairs to first floor, radiator, under stairs storage cupboard and shelving, doors toLOUNGE
Double glazed window to front, cast iron fireplace, radiator, corner shelving3.64 x 3.48 (11'11" x 11'5")
DINING ROOM
Double glazed window to rear, radiator, built in original cupboard with display shelving3.44 x 3.04 (11'3" x 9'11")
KITCHEN
Newly fitted grey wall and base units with work surface over, sink and drainer, tiled splash backs, fitted oven and hob, space for washing machine and fridge freezer, wall mounted combination boiler (under warranty), double glazed window to rear, door to side leading to garden2.85 x 2.23 (9'4" x 7'3")
STAIRS
Leading to first floor landing with doors toBEDROOM ONE
Double glazed window to front, radiator3.44 x 3.22 (11'3" x 10'6")
BEDROOM TWO
Double glazed window to rear, radiator3.44 x 3.04 (11'3" x 9'11")
BEDROOM THREE
Ideal home office. Double bedroom. Double glazed window to rear, radiator2.85 x 2.23 (9'4" x 7'3")
BATHROOM
Fully tiled. Three piece white suite comprising wc, bath with shower over, large wash hand basin with vanity unit beneath, towel radiator2.49 x 1.35 (8'2" x 4'5")
GARDENS
To rear: South West facing garden with seating area leading to artificial lawn enclosed by white wallsTo front: Hedge enclosed area ideal for bin and bike storage
Mortgage calculator
Calculate Your Stamp Duty
Results
Stamp Duty To Pay:
Effective Rate:
| Tax Band | % | Taxable Sum | Tax |
|---|
Victoria Parade, Redfield, Bristol BS5 9DZ
Want to explore Victoria Parade, Redfield, Bristol BS5 9DZ further? Explore our local area guide
Struggling to find a property? Get in touch and we'll help you find your ideal property.