Watson Road, Newton Aycliffe

£70,000 | Available

3 bedroom House For Sale
or call 01388 311582
Standout Features

Property Description
PUBLIC NOTICE ADDRESS: 37 Watson Road, Newton Aycliffe, DL5 5JX

We are acting in the sale of the above property and have received an offer of £78,000.
Any interested parties must submit any higher offers in writing to the selling agent before an exchange of contracts takes place

EPC Rating: D

Three bedroomed end of terrace property situated on Watson Road, Newton Aycliffe. Offered to the market with no onward chain, the property is in need of some refurbishments making it a prime opportunity for investors and first time buyers alike. Located close to local amenities which include a range of retail shops, recreational facilities, healthcare services, 24 hour supermarkets, restaurants and cafés as well as both primary and secondary schools. There is also an extensive public transport system which not only provides access to the neighbouring towns and villages but to further afield places such as Darlington, Durham, Newcastle and York. Ideal for commuters, this property also has easy access to the A167 which leads to the A1 (M) both North and South.

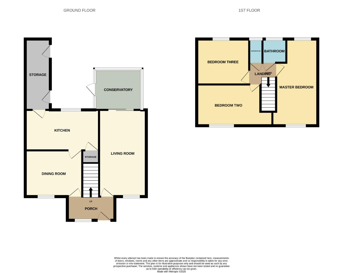
In brief, the property comprises; an entrance porch leading into the living room, dining room, kitchen, conservatory and storage room to the ground floor. The first floor consists of the master bedroom, two further bedrooms and family bathroom. Externally, there is a lawned garden to the front of the property with hedged border and on street parking available nearby. To the rear, there is a well-proportioned garden mainly laid to lawn with hedged border, greenhouse and patio area ideal for outdoor furniture.

Living Room (5.15m x 2.7m)

Spacious living room spanning the length of the property with ample space for furniture, feature fire surround, and sliding doors leading into the conservatory.

Dining Room (3.4m x 2.7m)

The dining room offers space for a table and chairs, along with further furniture and window to the front elevation.

Kitchen (4.5m x 2.4m)

The kitchen is fitted with a range of wall, base and drawer units, contrasting work surfaces, tiled splash backs, sink/drainer and integrated oven and hob. Space is available for free standing appliances along with plumbing for a washing machine.

Conservatory (2.8m x 2.4m)

The conservatory offers an additional reception space with access leading into the rear garden.

Master Bedroom (5.17m x 2.76m)

Generously sized master bedroom with ample space for a king-sized bed and further furniture and dual aspect windows to the front and rear.

Bedroom Two (2.55m x 2.4m)

Another well-proportioned double bedroom with plenty of space for furniture and window to the front elevation.

Bedroom Three (2.7m x 2.48m)

Large single bedroom with window to the rear elevation.

Bathroom (1.4m x 1.4m)

Family bathroom fitted with a panelled bath with overhead shower, wash hand basin and dual windows.

WC (1.4 x 0.8)

Separate WC.

External

Externally, there is a lawned garden to the front of the property with hedged border and on street parking available nearby. To the rear, there is a well-proportioned garden mainly laid to lawn with hedged border, greenhouse and patio area ideal for outdoor furniture.


Additional Information
Tenure: Freehold
Council Tax Band: A

Rooms
Living Room
Spacious living room spanning the length of the property with ample space for furniture, feature fire surround, and sliding doors leading into the conservatory.
5.15m x 2.7m (16'10" x 8'10" )
Dining Room
The dining room offers space for a table and chairs, along with further furniture and window to the front elevation.
3.4m x 2.7m (11'1" x 8'10" )
Kitchen
The kitchen is fitted with a range of wall, base and drawer units, contrasting work surfaces, tiled splash backs, sink/drainer and integrated oven and hob. Space is available for free standing appliances along with plumbing for a washing machine.
4.5m x 2.4m (14'9" x 7'10" )
Conservatory
The conservatory offers an additional reception space with access leading into the rear garden.
2.8m x 2.4m (9'2" x 7'10" )
Master Bedroom
Generously sized master bedroom with ample space for a king-sized bed and further furniture and dual aspect windows to the front and rear.
5.17m x 2.76m (16'11" x 9'0" )
Bedroom Two
Another well-proportioned double bedroom with plenty of space for furniture and window to the front elevation.
2.55m x 2.4m (8'4" x 7'10" )
Bedroom Three
Large single bedroom with window to the rear elevation.
2.7m x 2.48m (8'10" x 8'1" )
Bathroom
Family bathroom fitted with a panelled bath with overhead shower, wash hand basin and dual windows.
1.4m x 1.4m (4'7" x 4'7" )
WC
Separate WC.
1.4 x 0.8 (4'7" x 2'7")
External
Externally, there is a lawned garden to the front of the property with hedged border and on street parking available nearby. To the rear, there is a well-proportioned garden mainly laid to lawn with hedged border, greenhouse and patio area ideal for outdoor furniture.

Mortgage calculator

Calculate Your Stamp Duty
£
Results
Stamp Duty To Pay:
Effective Rate:
Tax Band % Taxable Sum Tax

Watson Road, Newton Aycliffe

Want to explore Watson Road, Newton Aycliffe further? Explore our local area guide

Struggling to find a property? Get in touch and we'll help you find your ideal property.