Bannetts Tree Crescent, Alveston, Bristol

OIRO £500,000 | Available

4 bedroom House For Sale
Total Size: 1228 SQ FT
or call 01454 411522
Property Description
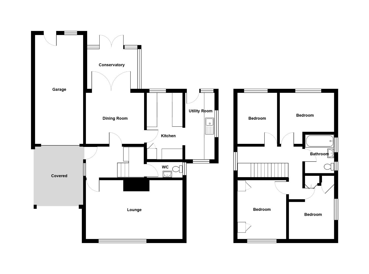
Occupying a generous corner plot, this traditional detached house offers the perfect blend of comfort and space for the growing family. With four generously sized bedrooms, this property is ideal for those seeking a home that provides accommodation for both relaxation and practicality.
Upon entering the hallway you are greeted by a cloakroom and two inviting reception rooms providing ample space for entertaining guests or enjoying quiet family evenings. The layout of the house promotes practicality with a warm and welcoming atmosphere, albeit some basic updating and redecoration maybe desired by the new owners. The location in Alveston is another significant benefit, offering a peaceful suburban lifestyle while still being within easy reach of Bristol's vibrant city centre. Residents can enjoy the tranquillity of the neighbourhood, along with access to local amenities, schools, and parks, making it an excellent choice for families. In summary, this detached house on Bannetts Tree Crescent is a wonderful opportunity for those looking for a spacious family home in a desirable location. With four bedrooms, two reception rooms plus conservatory and ample parking, it is sure to meet the needs of modern living. Do not miss the chance to make this lovely property your own. NO CHAIN!

Entrance

Via hardwood framed front door to:

Hallway

Obscure double glazed full length panel to side. Staircase to first floor with useful storage cupboard under. Radiator.

Cloakroom

Obscure UPVC double glazed window to side. WC and wash hand basin.

Lounge (5.77m x 3.47m)

UPVC double glazed window to front. Feature fireplace incorporating living flame gas fire. Radiator.

Dining Room (3.48m x 3.0m)

Hardwood framed double glazed French doors opening to conservatory at the rear. 2 radiators.

Conservatory (3.38m x 2.87m)

Substantial block structure with UPVC double glazed windows overlooking rear with French doors opening onto garden. Double glazed roof.

Kitchen/Utility Room (4.18m (max) x 3.94m (max))

UPVC double glazed windows to front, side and rear with double glazed door opening to garden. Range of floor and wall units with contrasting worksurfaces incorporating stainless steel single drainer sink unit, plumbing for automatic washing machine, plumbing for dishwasher, space for fridge/freezer, integrated double oven and 4 ring gas hob. Tiled floor.

Landing

UPVC double glazed window to side. Access to loft. Radiator.

Bathroom

Obscure UPVC double glazed window to side. White suite comprising WC, wash hand basin and panelled bath with tiled walls and shower. Heater towel rail.

Bedroom 1 (3.56m x 3.50m)

UPVC double glazed window to front. Radiator.

Bedroom 2 (3.40m x 3.05m)

UPVC double glazed window to rear. Radiator.

Bedroom 3 (3.05m x 2.27m)

UPVC double glazed window to rear. Radiator.

Bedroom 4 (2.90m x 2.12m)

UPVC double glazed window to side. Built in airing cupboard housing gas central heating combi boiler. Radiator.

Gardens

Front

Open plan lawn with shrub hedging and block paved driveway

Rear

Enclosed level lawn with paved patios, shrub borders and flower beds incorporating feature pond with veg patch and aluminium framed glasshouse. Small summer house.

Garage

Large attached garage with up and over door to rear. Power and light, personal door and window to rear.

Parking

Block paved driveway for 3-4 vehicles. Carport

Material Information - Thornbury

Tenure Type; Freehold
Council Tax Banding; E

Anti Money Laundering

‘’Estate agents operating in the UK are required to conduct Anti-Money Laundering (AML) checks in compliance with the regulations set forth by HM Revenue and Customs (HMRC) for all property transactions. It is mandatory for both buyers and sellers to successfully complete these checks before any property transaction can proceed. Our estate agency uses Coadjute’s Assured Compliance service to facilitate the AML checks. A fee will be charged for each individual AML check conducted’’


Additional Information
Tenure: Freehold
Council Tax Band: E

Rooms
Entrance
Via hardwood framed front door to:
Hallway
Obscure double glazed full length panel to side. Staircase to first floor with useful storage cupboard under. Radiator.
Cloakroom
Obscure UPVC double glazed window to side. WC and wash hand basin.
Lounge
UPVC double glazed window to front. Feature fireplace incorporating living flame gas fire. Radiator.
5.77m x 3.47m (18'11" x 11'4")
Dining Room
Hardwood framed double glazed French doors opening to conservatory at the rear. 2 radiators.
3.48m x 3.0m (11'5" x 9'10")
Conservatory
Substantial block structure with UPVC double glazed windows overlooking rear with French doors opening onto garden. Double glazed roof.
3.38m x 2.87m (11'1" x 9'4")
Kitchen/Utility Room
UPVC double glazed windows to front, side and rear with double glazed door opening to garden. Range of floor and wall units with contrasting worksurfaces incorporating stainless steel single drainer sink unit, plumbing for automatic washing machine, plumbing for dishwasher, space for fridge/freezer, integrated double oven and 4 ring gas hob. Tiled floor.
4.18m (max) x 3.94m (max) (13'8" (max) x 12'11" (m
Landing
UPVC double glazed window to side. Access to loft. Radiator.
Bathroom
Obscure UPVC double glazed window to side. White suite comprising WC, wash hand basin and panelled bath with tiled walls and shower. Heater towel rail.
Bedroom 1
UPVC double glazed window to front. Radiator.
3.56m x 3.50m (11'8" x 11'5")
Bedroom 2
UPVC double glazed window to rear. Radiator.
3.40m x 3.05m (11'1" x 10'0")
Bedroom 3
UPVC double glazed window to rear. Radiator.
3.05m x 2.27m (10'0" x 7'5")
Bedroom 4
UPVC double glazed window to side. Built in airing cupboard housing gas central heating combi boiler. Radiator.
2.90m x 2.12m (9'6" x 6'11")
Gardens

Front
Open plan lawn with shrub hedging and block paved driveway
Rear
Enclosed level lawn with paved patios, shrub borders and flower beds incorporating feature pond with veg patch and aluminium framed glasshouse. Small summer house.
Garage
Large attached garage with up and over door to rear. Power and light, personal door and window to rear.
Parking
Block paved driveway for 3-4 vehicles. Carport
Material Information - Thornbury
Tenure Type; Freehold
Council Tax Banding; E
Anti Money Laundering
‘’Estate agents operating in the UK are required to conduct Anti-Money Laundering (AML) checks in compliance with the regulations set forth by HM Revenue and Customs (HMRC) for all property transactions. It is mandatory for both buyers and sellers to successfully complete these checks before any property transaction can proceed. Our estate agency uses Coadjute’s Assured Compliance service to facilitate the AML checks. A fee will be charged for each individual AML check conducted’’

Utilities
Electricity:
Mains Supply
Sewerage:
Mains Supply
Heating:
Gas Central

Mortgage calculator

Calculate Your Stamp Duty
£
Results
Stamp Duty To Pay:
Effective Rate:
Tax Band % Taxable Sum Tax

Bannetts Tree Crescent, Alveston, Bristol

Want to explore Bannetts Tree Crescent, Alveston, Bristol further? Explore our local area guide

Struggling to find a property? Get in touch and we'll help you find your ideal property.