Standout Features
- Charming Four-Bedroom Detached Period Home Built in 1876
- Tastefully Extended to Blend Character Features with Modern Living
- Original Tessellated Tile Flooring in Entrance Hallway
- Spacious Open-Plan Kitchen/Dining/Family Room â€" Perfect for Family Life
- Bespoke Fitted Kitchen with Integrated Appliances
- Two Additional Reception Rooms, Ideal as Lounge, Snug or Playroom
- Four Double Bedrooms, Including a Principal with En-Suite Shower Room
- Located on a Well-Connected Main Road, With Easy Access to A38 and M5
Property Description
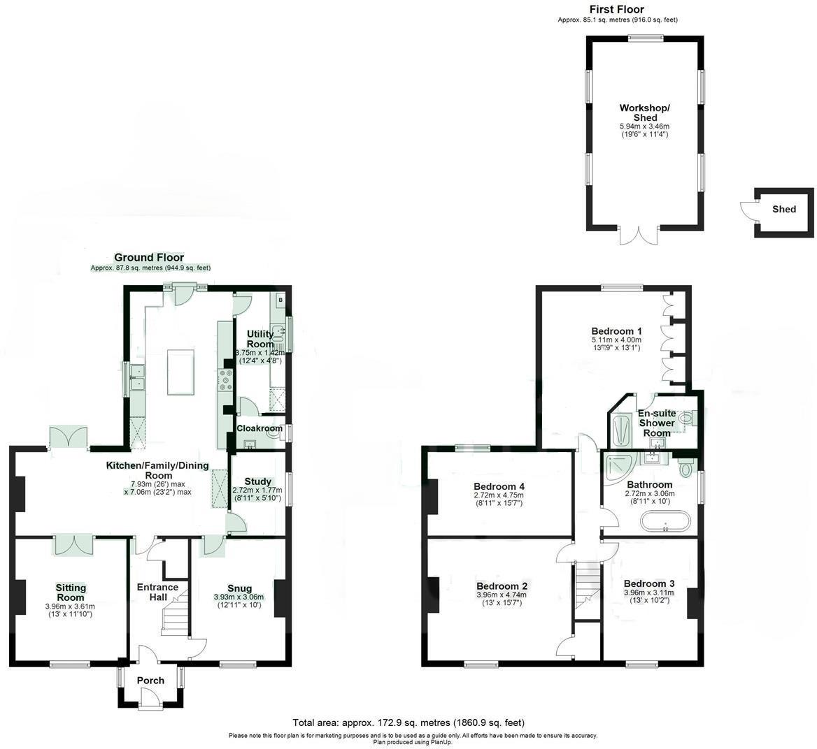
Nelson Cottage is a truly exceptional period home, full of charm and character, originally constructed in 1876. Thoughtfully extended and beautifully maintained, this property seamlessly combines timeless Victorian elegance with modern functionality, making it the perfect sanctuary for family life.
From the moment you step inside, the home’s heritage is immediately apparent, with the striking original tessellated tile flooring guiding you through the entrance hall and setting the tone for the quality and warmth which continues throughout. The heart of the home is the stunning open-plan kitchen/dining/family room—a bright and welcoming space designed for both relaxed family living and entertaining on a larger scale. The contemporary kitchen is well-appointed yet sympathetic to the age of the property, while the generous dining and living areas enjoy views over the garden.
Complimenting this central space are two further reception rooms, each offering versatility whether as a formal sitting room, snug, or playroom, both beautifully presented with period features and tasteful décor. A dedicated study provides an ideal space for home working, and a separate utility room adds practical convenience without compromising the flow of the main living areas.
Upstairs, the home continues to impress with four spacious double bedrooms, each full of light and character. The principal bedroom benefits from a stylish en-suite shower room, while the remaining bedrooms are well-served by a generous family bathroom.
Externally, Nelson Cottage enjoys a prominent yet private position with ample off-road parking to the front. Its location on a well-connected main road ensures easy access to nearby towns and major commuter routes, making day-to-day life remarkably convenient without sacrificing the tranquility of a well-proportioned, characterful home.
From the moment you step inside, the home’s heritage is immediately apparent, with the striking original tessellated tile flooring guiding you through the entrance hall and setting the tone for the quality and warmth which continues throughout. The heart of the home is the stunning open-plan kitchen/dining/family room—a bright and welcoming space designed for both relaxed family living and entertaining on a larger scale. The contemporary kitchen is well-appointed yet sympathetic to the age of the property, while the generous dining and living areas enjoy views over the garden.
Complimenting this central space are two further reception rooms, each offering versatility whether as a formal sitting room, snug, or playroom, both beautifully presented with period features and tasteful décor. A dedicated study provides an ideal space for home working, and a separate utility room adds practical convenience without compromising the flow of the main living areas.
Upstairs, the home continues to impress with four spacious double bedrooms, each full of light and character. The principal bedroom benefits from a stylish en-suite shower room, while the remaining bedrooms are well-served by a generous family bathroom.
Externally, Nelson Cottage enjoys a prominent yet private position with ample off-road parking to the front. Its location on a well-connected main road ensures easy access to nearby towns and major commuter routes, making day-to-day life remarkably convenient without sacrificing the tranquility of a well-proportioned, characterful home.
Additional Information
| Tenure: | Freehold |
|---|---|
| Council Tax Band: | E |
Rooms
Anti-Money Laundering (AML) Compliance
Estate agents operating in the UK are legally required to carry out Anti-Money Laundering (AML) checks in line with regulations set by HM Revenue and Customs (HMRC). At Hunters Dursley, we use Moverly to facilitate these checks as part of our commitment to compliance and transparency. It is mandatory for both buyers and sellers to complete AML verification before a property transaction can proceed. A fee will be charged for each individual AML check carried out.Mortgage calculator
Calculate Your Stamp Duty
Results
Stamp Duty To Pay:
Effective Rate:
| Tax Band | % | Taxable Sum | Tax |
|---|
Bristol Road, Cambridge, Gloucester, GL2 7BH
Want to explore Bristol Road, Cambridge, Gloucester, GL2 7BH further? Explore our local area guide
Struggling to find a property? Get in touch and we'll help you find your ideal property.