Colby Street, Southampton, SO16

Guide Price £375,000 | Available

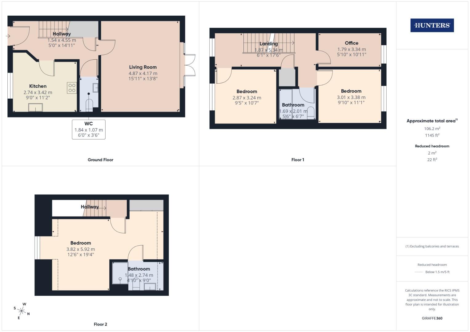
4 bedroom House For Sale
Total Size: 1145 SQ FT
or call 02380 987720
Standout Features

Property Description
*** NO CHAIN ***

Situated in a highly desired location off Maybush, this delightful townhouse presents an excellent opportunity for families and professionals alike. With four spacious bedrooms, this property offers ample room for comfortable living, entertainment and personalisation.

The townhouse is well-designed, providing a perfect blend of modern convenience and traditional charm. Each bedroom is generously sized, allowing for a variety of uses, whether for family members, guests, or even a home office. The layout of the house promotes a sense of openness, making it an inviting space for both relaxation and entertaining.

One of the standout features of this property is the absence of a chain, which means a smoother and quicker transition for potential buyers. This is particularly advantageous for those eager to settle into their new home without unnecessary delays.

Externally, this property offers a landscaped garden and driveway parking.

Easy access to local amenities, schools, and transport links, makes this a prime location for those who appreciate the vibrancy of city life while still enjoying the comforts of a residential neighbourhood.

With interest expected to be high, we highly recommend an internal viewing to fully appreciate this beautiful home.

AML

Agents are required by law to conduct anti-money laundering checks on all those buying a property.

We outsource the initial checks to partner suppliers Coadjute who will contact you once you have had an offer accepted on a property you wish to buy.

The cost of these checks is £54inc vat per person. This is a non-refundable fee.

These charges cover the cost of obtaining relevant data, any manual checks and monitoring which might be required.

This fee will need to be paid and the checks completed in advance of the office issuing a memorandum of sale on the property you would like to buy.


Additional Information
Tenure: Freehold
Council Tax Band: C

Rooms
AML
Agents are required by law to conduct anti-money laundering checks on all those buying a property.

We outsource the initial checks to partner suppliers Coadjute who will contact you once you have had an offer accepted on a property you wish to buy.

The cost of these checks is £54inc vat per person. This is a non-refundable fee.

These charges cover the cost of obtaining relevant data, any manual checks and monitoring which might be required.

This fee will need to be paid and the checks completed in advance of the office issuing a memorandum of sale on the property you would like to buy.

Mortgage calculator

Calculate Your Stamp Duty
£
Results
Stamp Duty To Pay:
Effective Rate:
Tax Band % Taxable Sum Tax

Colby Street, Southampton, SO16

Want to explore Colby Street, Southampton, SO16 further? Explore our local area guide

Struggling to find a property? Get in touch and we'll help you find your ideal property.