Standout Features
- NO CHAIN
- FOUR BEDROOM
- SEMI DETACHED
- DRIVEWAY PARKING
- REAR GARDEN
- GREAT SIZED FAMILY HOME
Property Description
GREAT SIZED FAMILY HOME - NEARLY 1,500 SQUARE FEET - MUST BE VIEWED - well presented throughout, ON A CORNER PLOT with DRIVEWAY PARKING.
Positioned in a well-established residential area of Old Whittington, Danby Avenue presents an excellent opportunity for families or buyers seeking space, convenience and access to local amenities. With canal walks just moments away, this property offers a peaceful lifestyle with everything you need close at hand.
The home is ideally located for those with children, with both primary and secondary schools in the vicinity. Shops, services and public transport links are also within easy reach.
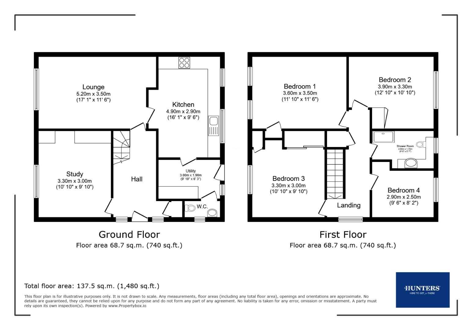
Stepping inside, the entrance hall leads to a spacious lounge. A separate study provides a useful space for home working or as a playroom, depending on your needs. The kitchen and dining area span the rear of the property, offering a sociable layout with plenty of room for family meals or hosting guests. Just off the kitchen is a useful utility room and a ground floor WC, adding to the practicality of the home.
Upstairs, there are four generously sized bedrooms, each offering ample space. The family bathroom is well-appointed and serves the first floor comfortably.
Externally, the property benefits from driveway parking and a fully enclosed garden to the rear, offering privacy and a secure area for children or pets.
Offered with no onward chain, Danby Avenue represents a move-in-ready option with excellent potential to personalise over time.
Early viewing is highly recommended to appreciate all that this home has to offer.
FREEHOLD | COUNCIL TAX BAND B
Positioned in a well-established residential area of Old Whittington, Danby Avenue presents an excellent opportunity for families or buyers seeking space, convenience and access to local amenities. With canal walks just moments away, this property offers a peaceful lifestyle with everything you need close at hand.
The home is ideally located for those with children, with both primary and secondary schools in the vicinity. Shops, services and public transport links are also within easy reach.
Stepping inside, the entrance hall leads to a spacious lounge. A separate study provides a useful space for home working or as a playroom, depending on your needs. The kitchen and dining area span the rear of the property, offering a sociable layout with plenty of room for family meals or hosting guests. Just off the kitchen is a useful utility room and a ground floor WC, adding to the practicality of the home.
Upstairs, there are four generously sized bedrooms, each offering ample space. The family bathroom is well-appointed and serves the first floor comfortably.
Externally, the property benefits from driveway parking and a fully enclosed garden to the rear, offering privacy and a secure area for children or pets.
Offered with no onward chain, Danby Avenue represents a move-in-ready option with excellent potential to personalise over time.
Early viewing is highly recommended to appreciate all that this home has to offer.
FREEHOLD | COUNCIL TAX BAND B
Additional Information
| Tenure: | Freehold |
|---|---|
| Council Tax Band: | B |
Rooms
DISCLOSURE
ADVERT & DESCRIPTION DISCLAIMERThese particulars are intended to give a fair and reliable description of the property but no responsibility for any inaccuracy or error can be accepted and do not constitute an offer or contract.
We have not tested any services or appliances (including central heating if fitted) referred to in these particulars and the purchasers are advised to satisfy themselves as to the working order and condition.
If a property is unoccupied at any time there may be reconnection charges for any switched off/disconnected or drained services or appliances.
All measurements are approximate.
BUYERS AML FEE DISCLOSURE
By law, we are required to conduct anti-money laundering checks on all potential buyers and sellers, and we take this responsibility very seriously. In line with HMRC guidelines, our trusted partner, Coadjute, will securely manage these checks on our behalf. Once an offer is accepted (subject to contract), Coadjute will send a secure link for you to complete the biometric checks electronically. A non-refundable fee of £45 + VAT per person will apply for these checks, and Coadjute will handle the payment for this service. These anti-money laundering checks must be completed before we can send the memorandum of sale to the solicitors to confirm the sale
Mortgage calculator
Calculate Your Stamp Duty
Results
Stamp Duty To Pay:
Effective Rate:
| Tax Band | % | Taxable Sum | Tax |
|---|
Danby Avenue, Old Whittington, Chesterfield, S41 9NJ
Want to explore Danby Avenue, Old Whittington, Chesterfield, S41 9NJ further? Explore our local area guide
Struggling to find a property? Get in touch and we'll help you find your ideal property.