Standout Features
- A well presented, Four bedroom end of terrace family home
- Popular Singleton location, Ideal for families
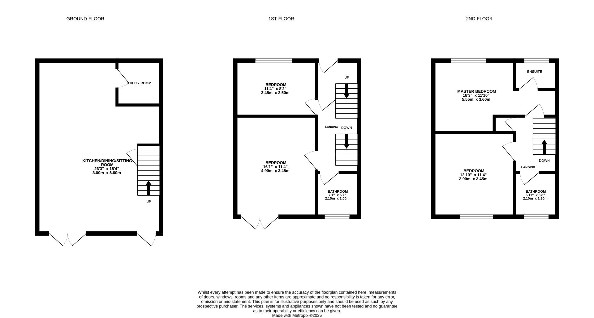
- Accommodation across three generous floors
- Sold with no-onward chain complications
- Two bathrooms and en-suite to master bedroom
- Open plan kitchen/living/dining space
- Rear garden with side access to allocated parking
- Four, Generous & Spacious Bedrooms
- Fantastic views from the top floor
- Council Tax Band: D EPC: C (78) - DMG Estate Fee: £200.00 pa year
Property Description
Nestled in the desirable area of Singleton, lies this charming four-bedroom end-terrace house on Green Fields Lane, brought to the market with no onward chain and allocated parking.
Upon entering through the front door, you are welcomed into the first floor, which two bedrooms and a shower room. Head down to the ground floor first, which boasts a spacious open plan living/dining/kitchen space that flows seamlessly, creating an ideal space for entertaining or enjoying family meals. A utility room is conveniently located at the back, fitted with a sink and space for free-standing washing machine and tumble dryer. The kitchen boasts an array of wall and base units, with ample work top space for food preparation. The living area is a cosy space and provides French doors that lead onto the rear garden. The open plan space is flooded with natural light and creates a warm and invited atmosphere.
The first floor comprises two well-proportioned bedrooms, accompanied by a shower room, ensuring comfort and convenience for family members or guests. The second bedroom is ample in size for a double bed and free-standing furniture, also boasting a Juliette balcony. This room can also be utilised as a separate living area, if an open plan living style was not preferred. Bedroom four is also a good size double and is currently utilised as an office space by the current occupants. Both rooms are serviced by the shower room to the end of the hall, consisting of shower, wash hand basin and W/C. Ascending to the top floor, you will find two additional bedrooms and two bathrooms. The main bedroom is serviced by an en-suite shower room and provides ample floor space for a double bed and free-standing furniture. Bedroom three also provides space for a double bed and free-standing furniture and is serviced by the home’s family bathroom, consisting of bath with shower attachment, wash hand basin and W/C.
Upon entering through the front door, you are welcomed into the first floor, which two bedrooms and a shower room. Head down to the ground floor first, which boasts a spacious open plan living/dining/kitchen space that flows seamlessly, creating an ideal space for entertaining or enjoying family meals. A utility room is conveniently located at the back, fitted with a sink and space for free-standing washing machine and tumble dryer. The kitchen boasts an array of wall and base units, with ample work top space for food preparation. The living area is a cosy space and provides French doors that lead onto the rear garden. The open plan space is flooded with natural light and creates a warm and invited atmosphere.
The first floor comprises two well-proportioned bedrooms, accompanied by a shower room, ensuring comfort and convenience for family members or guests. The second bedroom is ample in size for a double bed and free-standing furniture, also boasting a Juliette balcony. This room can also be utilised as a separate living area, if an open plan living style was not preferred. Bedroom four is also a good size double and is currently utilised as an office space by the current occupants. Both rooms are serviced by the shower room to the end of the hall, consisting of shower, wash hand basin and W/C. Ascending to the top floor, you will find two additional bedrooms and two bathrooms. The main bedroom is serviced by an en-suite shower room and provides ample floor space for a double bed and free-standing furniture. Bedroom three also provides space for a double bed and free-standing furniture and is serviced by the home’s family bathroom, consisting of bath with shower attachment, wash hand basin and W/C.
Additional Information
| Tenure: | Freehold |
|---|---|
| Council Tax Band: | D |
Mortgage calculator
Calculate Your Stamp Duty
Results
Stamp Duty To Pay:
Effective Rate:
| Tax Band | % | Taxable Sum | Tax |
|---|
Green Fields Lane, Ashford
Want to explore Green Fields Lane, Ashford further? Explore our local area guide
Struggling to find a property? Get in touch and we'll help you find your ideal property.