Jack Dunbar Place, TN23

Guide Price £350,000 | Available

4 bedroom House For Sale
or call 01233 613613
Standout Features

Property Description
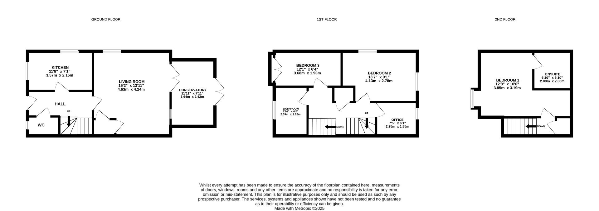
GUIDE PRICE: £350,000 - £375,000. An impressively sized four bedroom, town-house style terrace home located in the heart of the popular area of Repton Park. This beautiful family home’s accommodation is set over three floors, which boasts a stunning top floor master bedroom and also benefits from off street parking & garage to the rear of the home.

From the entrance hall is a light and airy large kitchen offering plenty of space for free standing appliances. At the rear of the home is the lounge/diner, a fantastic space for entertaining friends and family, from relaxing on the sofa, to eating an evening meal - this layout seamlessly blends modern living - this room also offers french doors that open out into the rear conservatory - offering yet further reception space - beyond, is the low maintenance & private rear garden. The ground floor is finished off nicely with a toilet and wash hand basin as well as a handy storage cupboard within the lounge.

The hallway leads upstairs to three of the four bedrooms. The 2nd and 3rd bedroom, offering space for double beds and the 3rd being used as a spacious study with Juliet balcony over-looking the adjacent green, both rooms are serviced by the modern family bathroom with shower over bath.

On the top floor, you will find the master bedroom, which is the real wow factor, with high ceilings, engulfing the entire top floor to yourself with smartly placed windows and a modern en-suite shower room, it's a master most will be envious of.

At the rear of the home you have the garden, although compact, it has been well maintained by the current owner, with a low maintenance artificial lawn area & garden shed. There is also rear access via a gate. The property also benefits from two off street designated private parking spaces outside the property as well as the garage. There is also ample visitor parking nearby too.

Where am I? The home is situated within Repton Park, approx. 2 miles to the north west of Ashford’s Town Centre and affords easy access to junction 9 of the M20. It also benefits from public transport links to the Town Centre and International Train Station, with regular services to London St. Pancras and the Continent. Also, within walking distance are the popular Repton Park and Godinton Primary Schools, as well as the Chimney’s pub and restaurant, Waitrose supermarket and Co-op convenience store, as well as other local services and shops.

All mains services are connected, but none have been tested by the agent.
Flood Risk: Very low Each year, there is a chance of flooding of less than 1 in 1000 (0.1%)
Average Broadband Speed: 68mb Superfast :1000mb Ultrafast :1000mb


Additional Information
Tenure: Freehold
Council Tax Band: D

Mortgage calculator

Calculate Your Stamp Duty
£
Results
Stamp Duty To Pay:
Effective Rate:
Tax Band % Taxable Sum Tax

Jack Dunbar Place, TN23

Want to explore Jack Dunbar Place, TN23 further? Explore our local area guide

Struggling to find a property? Get in touch and we'll help you find your ideal property.