Minnis Lane, Stelling Minnis, Canterbury

Offers in excess of £800,000 | Available

4 bedroom House For Sale
or call 01303 261557
Standout Features

Property Description
This spacious four-bedroom detached family home offers a wonderful blend of character, space and modern comfort, set within generous grounds and approached via a large gravel driveway providing ample off-road parking.

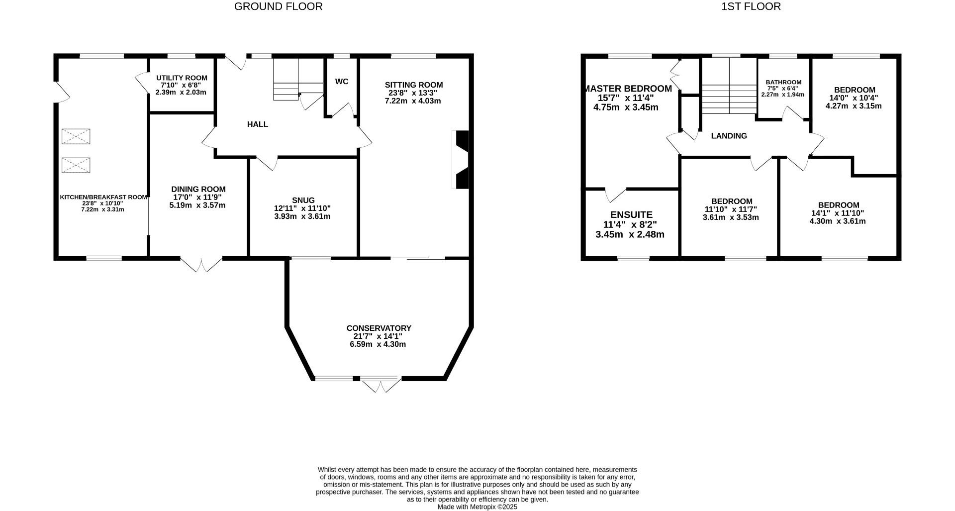
The accommodation is arranged around a series of well-proportioned reception rooms, each offering a distinct atmosphere. A stunning main living room features exposed brickwork and a character fireplace with wood-burning stove, creating a warm and inviting focal point, while a second reception room provides a more contemporary space ideal for relaxing or entertaining.

At the heart of the home lies an exceptional kitchen/dining room, finished in a classic shaker style with extensive cabinetry, a range cooker and various integrated appliances. A striking roof lantern floods the space with natural light, enhancing the sense of openness and making this an ideal room for family life and entertaining. The adjoining dining area is both stylish and practical, with bespoke lighting and garden views.

Upstairs, the property offers four generously sized bedrooms, each thoughtfully decorated and benefitting from excellent natural light. The principal bedroom enjoys a calm and elegant feel, while the remaining bedrooms are versatile and well suited to family living, guest accommodation or home office use. The en suite shower room is finished to a high standard, featuring a generous walk-in shower with glazed screen and modern fittings. The family bathroom offers a stylish and well-proportioned space, fitted with a modern white suite comprising a panelled bath with shower above.

Externally, the property continues to impress. The rear garden is mainly laid to lawn, bordered by mature trees and planting, providing a high degree of privacy and a peaceful outlook. A conservatory offers a seamless connection between indoor and outdoor living, perfect for enjoying the garden throughout.

The property offers further scope to extend with lapsed planning for a music room and double car barn and further lapsed planning to convert the conservatory into a solid brick room with roof lantern.

Stelling Minnis is a picturesque and highly sought-after village set in the heart of the Kent Downs Area of Outstanding Natural Beauty. Known for its rural charm and strong community spirit, the village offers a village store with Post Office, a well-regarded primary school and traditional country pubs.

The surrounding countryside offers outstanding walking, cycling and riding routes, with rolling hills, woodland and open farmland creating a peaceful and scenic setting. Despite its rural feel, Stelling Minnis is well positioned for access to nearby towns including Canterbury and Ashford, both offering a wide range of shopping, dining and leisure facilities.

The village also benefits from good transport connections, with mainline rail services available from nearby stations providing links to London, and easy access to the M20 and A20. Highly regarded by families and those seeking a quieter lifestyle, Stelling Minnis combines unspoilt countryside living with practical connectivity and a welcoming village atmosphere.


Additional Information
Tenure: Freehold
Council Tax Band: G

Utilities
Broadband:
fixedwireless
Electricity:
Mains Supply
Sewerage:
Private Supply
Heating:
Oil

Mortgage calculator

Calculate Your Stamp Duty
£
Results
Stamp Duty To Pay:
Effective Rate:
Tax Band % Taxable Sum Tax

Minnis Lane, Stelling Minnis, Canterbury

Want to explore Minnis Lane, Stelling Minnis, Canterbury further? Explore our local area guide

Struggling to find a property? Get in touch and we'll help you find your ideal property.