Standout Features
- End off terrace property occupying a cul-de-sac loctaion
- Conveniently positioned for major commuting routes
- Versatile accommodation displayed over three floors
- 3/4 generous sized bedrooms, master bedroom with en suite
- Off street parking
- Gas central heating & uPVC double glazed windows
- Low maintenance rear garden
- Solar panels generating additional income
- Viewing recommended
Property Description
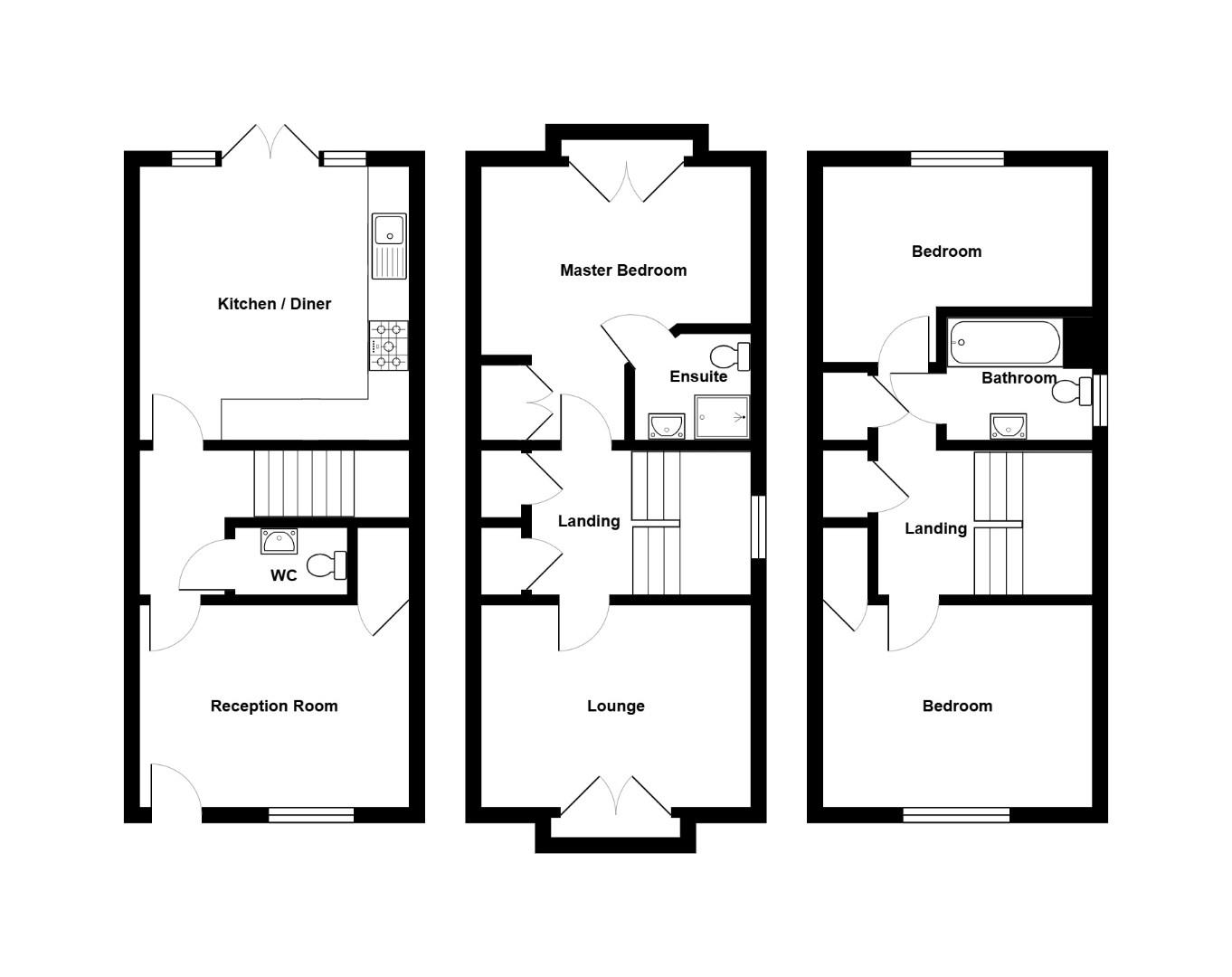
An end of terrace town-house occupying a cul-de-sac position convenient for major commuting routes. The versatile accommodation comprises; living room, inner hall with cloakroom, kitchen/diner with many integral appliances, bathroom with over bath shower & 4 bedrooms. The master bedroom has an en suite. Other benefits include; solar panels generating extra income, gas central heating, uPVC double glazed windows, a low maintenance rear garden and off street parking spaces.
Additional Information
| Tenure: | Freehold |
|---|
Rooms
DESCRIPTION
Hunters Estate Agents, Downend are pleased to offer for sale this end of terrace property, constructed in 2015 and occupying a cul-de-sac position convenient for access onto the Avon ring road, for the Metro bus service and for the Bristol cycle path. The amenities of both Emersons Green and Downend are within easy reach and include a wide variety of independent shops and supermarkets, restaurants, coffee shops, libraries, doctors surgeries and dental practices,The versatile and spacious accommodation is displayed over three levels and to the ground floor comprises; living room, inner hall with cloakroom and a good sized kitchen/diner. The kitchen is fitted with a range of cream coloured high gloss wall and base units which incorporate integral appliances which include a stainless steel Smeg electric double oven, 5 ring gas hob, tall fridge freezer and dishwasher. There are uPVC double glazed French doors which lead into the rear garden.
To the first floor there are two double bedrooms both with uPVC double glazed French doors with Juliet balcony's. The bedroom situated to the front of the property is currently displayed as a lounge, whilst the bedroom situated to the rear has an en suite.
To the second floor there are two additional double bedrooms and a family bathroom with an over bath shower.
Externally to the front of the property is off street parking for three cars and to the rear of the property is a low maintenance garden which is laid to paved patio and artificial lawn.
Additional benefits include solar panels generating additional income, gas central heating, many storage cupboards and uPVC double glazed windows.
An internal viewing appointment is highly recommended.
ENTRANCE
Via a glazed panelled composite door leading into living room.LIVING ROOM
uPVC double glazed window to front, under stairs storage cupboard, TV aerial point, two radiators, laminate floor, door leading into inner hall.3.99m x 3.05m (13'1" x 10'0")
INNER HALL
Radiator, laminate floor, stairs leading to first floor accommodation and doors leading into cloakroom and kitchen/diner.CLOAKROOM
White suite comprising W.C. and wash hand basin with chrome mixer tap with tiled splash backs, radiator.KITCHEN/DINER
uPVC double glazed French doors leading into rear garden, stainless steel one and a half bowl sink drainer with chrome mixer tap, range of fitted cream coloured high gloss wall and base units incorporating an integral stainless steel Smeg electric double oven, five ring Smeg gas hob with stainless steel cooker hood over, tall fridge freezer and a Smeg dishwasher, plumbing for washing machine, roll edged worksurface with upstand, cupboard housing a boiler supplying gas central heating, feature wooden wall panelling, radiator, laminate floor.4.14m x 3.99m (13'7" x 13'1")
FIRST FLOOR ACCOMMODATION
LANDING
Two storage cupboards, stairs leading to second floor accommodation and doors leading into first floor rooms.BEDROOM ONE
uPVC double glazed French doors with Juliet balcony to rear, built in double fronted wardrobe, telephone point, radiator, door leading into en suite.3.99m x 3.25m (13'1" x 10'8)
EN SUITE
White suite comprising; W.C. wash hand basin with chrome mixer tap, shower cubicle with a MIra shower system, tiled splash backs, light activated extractor fan, chrome heated towel rail.BEDROOM TWO
(currently displayed as a lounge) uPVC double glazed French doors with Juliet balcony to front, TV aerial point, radiator.3.99m x 3.25m (13'1" x 10'8")
SECOND FLOOR ACCOMMODATION
LANDING
Two storage cupboards, radiator, doors leading into second floor rooms.BEDROOM THREE
uPVC double glazed window to front, radiator, storage cupboard.3.99m x 3.25m (13'1" x 10'8")
BEDROOM FOUR
uPVC double glazed window to rear, radiator.3.96m x 2.67m widest point (13'0" x 8'9" widest po
BATHROOM
Opaque uPVC double glazed window to side, white suite comprising W.C. wash hand basin with chrome mixer tap and panelled twin gripped bath with chrome mixer tap and chrome over bath shower system, light with shaver point, chrome heated towel rail.1.96m x 1.83m (6'5" x 6'0")
OUTSIDE
FRONT
An area to the front and to the side of the property providing three off street parking spaces, paved path leading to main entrance.REAR GARDEN
Paved patio leading to an area which is laid to artificial lawn, timber framed garden shed, outside tap, outside lighting, garden surrounded by wooden fencing, wooden gate providing side pedestrian access.Mortgage calculator
Calculate Your Stamp Duty
Results
Stamp Duty To Pay:
Effective Rate:
| Tax Band | % | Taxable Sum | Tax |
|---|
Oak Tree Close, Mangotsfield, Bristol, BS16 9AJ
Want to explore Oak Tree Close, Mangotsfield, Bristol, BS16 9AJ further? Explore our local area guide
Struggling to find a property? Get in touch and we'll help you find your ideal property.