Standout Features
- Four Bedrooms
- A Superb Family Home
- Beautifully Appointed
- Well Positioned for Amenities
- Gardens to Front and Rear
- Off Street Parking and Single Garage
- Viewing Essential
- EPC Rating C
- Council Tax Band E
- Accommodation Over Three Floors
Property Description
A superb extended four bedroom home, to which a viewing comes highly recommended. Situated centrally on a highly sought after residential development, the spacious home is likely to appeal to a variety of potential purchasers.
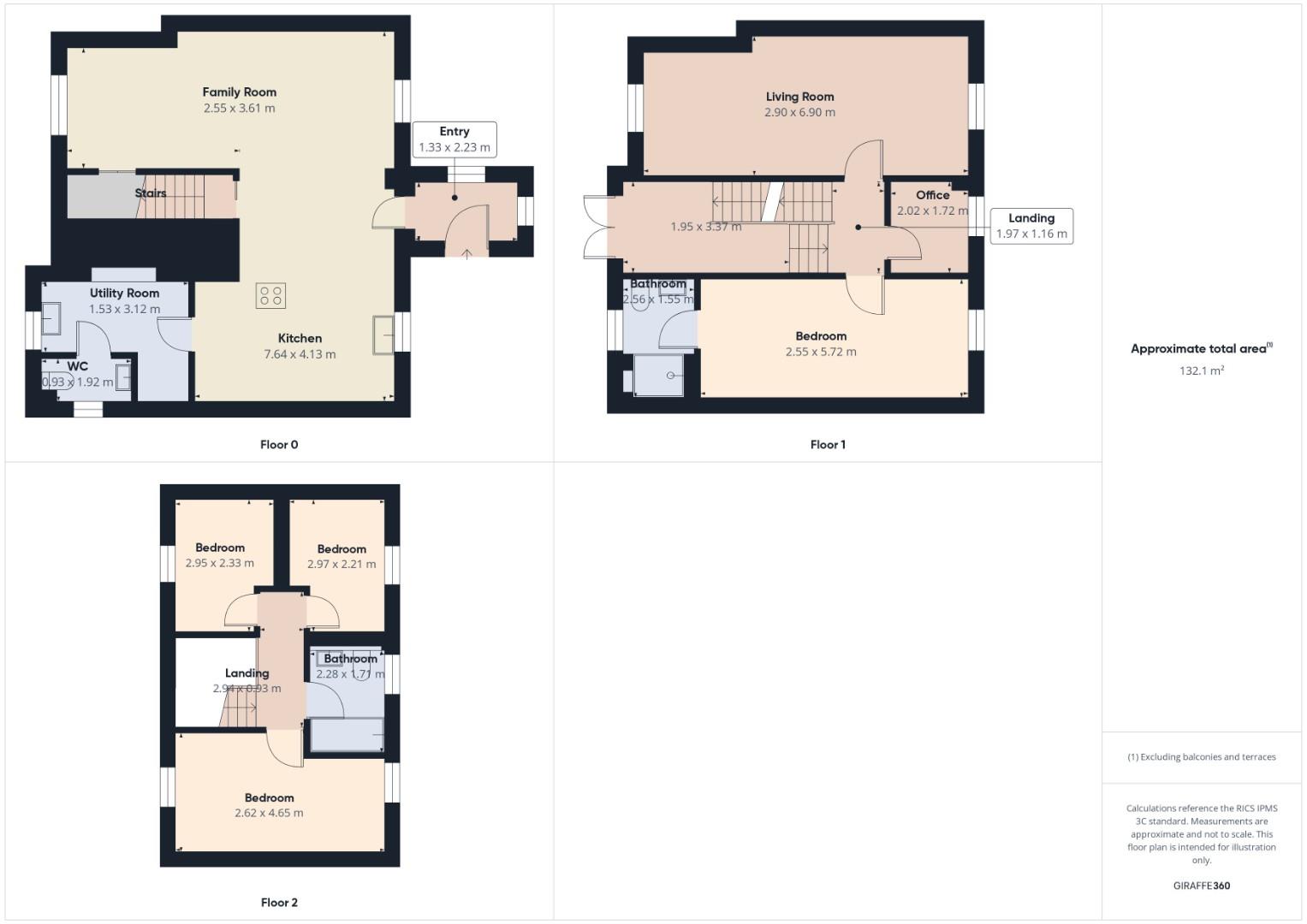
It comprises; an entrance porch into a beautifully appointed open plan living and dining kitchen, with underfloor heating along with utility and WC off. A staircase to a half landing with garden access, to the first floor is the main reception room, office and master bedroom with en suite shower facilities, and to the second floor are three further bedrooms and contemporary house bathroom. Externally are fenced gardens to the rear, off street parking and access to a single garage.
Roedhelm Road is approximately 1 mile from the centre of East Morton, which offers many village amenities, recreational facilities and a well regarded primary school. The tow path for the Leeds/Liverpool canal is within comfortable strolling distance. Bingley and Keighley town centres are a comfortable drive away, and both of which offer many larger amenities, and direct rail links to Leeds, Bradford and Skipton.
It comprises; an entrance porch into a beautifully appointed open plan living and dining kitchen, with underfloor heating along with utility and WC off. A staircase to a half landing with garden access, to the first floor is the main reception room, office and master bedroom with en suite shower facilities, and to the second floor are three further bedrooms and contemporary house bathroom. Externally are fenced gardens to the rear, off street parking and access to a single garage.
Roedhelm Road is approximately 1 mile from the centre of East Morton, which offers many village amenities, recreational facilities and a well regarded primary school. The tow path for the Leeds/Liverpool canal is within comfortable strolling distance. Bingley and Keighley town centres are a comfortable drive away, and both of which offer many larger amenities, and direct rail links to Leeds, Bradford and Skipton.
Additional Information
| Tenure: | Freehold |
|---|---|
| Council Tax Band: | E |
Rooms
N.B.
Note: Successful buyers will be required to complete ID and anti-money laundering checks. All estate agents have to do this by law. We outsource this process to our compliance partners, Coadjute, who charge a fee for this service £48 inc. VAT per buyer. Once this is paid to Coadjute and all checks completed, we will then be able to mark the property Sold Subject to Contract. The cost includes obtaining relevant data and any manual checks and monitoring which might be required. Hunters will receive some of the fee taken by Coadjute to compensate for its role in providing these checks.Utilities
Electricity:
Mains Supply
Sewerage:
Mains Supply
Heating:
Gas Central
Mortgage calculator
Calculate Your Stamp Duty
Results
Stamp Duty To Pay:
Effective Rate:
| Tax Band | % | Taxable Sum | Tax |
|---|
Roedhelm Road, East Morton, West Yorkshire
Want to explore Roedhelm Road, East Morton, West Yorkshire further? Explore our local area guide
Struggling to find a property? Get in touch and we'll help you find your ideal property.