Property Description
The Old School House is a spectacular five bedroomed detached property offered to the market for sale perfectly positioned within the charming village of Lynesack, Butterknowle. First built in the 1850s, the property is bursting with rich history and original features from its time used as Lynesack Village School until its closure in the 1950s. Split over two deeds, this unique property provides a plenitude of options for potential purchasers due to; its separately accessed annexe which allows for multi-generational living, separate outbuildings with potential use as an Air B&B (subject to relevant planning) and commercial areas throughout the property available for business use. Set amidst rolling countryside fields, the two private, lawned paddocks provide fantastic outdoor space boasting an impressive orchard and natural fresh-water spring while offering stunning views over the tranquil village.
Nearby, Butterknowle has a range of local amenities available such as; a doctors surgery, village pubs and primary school. The close towns of Bishop Auckland and Barnard Castle provide access to further amenities such as supermarkets, cafés, restaurants, healthcare services and both primary and secondary schools. The A688 the A68 are approximately a ten minute drive away, leading to the A1(M) both North and South, ideal for commuters, whilst there is also an extensive public transport system through the villages allowing for access to the neighbouring towns.
Nearby, Butterknowle has a range of local amenities available such as; a doctors surgery, village pubs and primary school. The close towns of Bishop Auckland and Barnard Castle provide access to further amenities such as supermarkets, cafés, restaurants, healthcare services and both primary and secondary schools. The A688 the A68 are approximately a ten minute drive away, leading to the A1(M) both North and South, ideal for commuters, whilst there is also an extensive public transport system through the villages allowing for access to the neighbouring towns.
Additional Information
| Tenure: | Freehold |
|---|---|
| Council Tax Band: | E |
Rooms
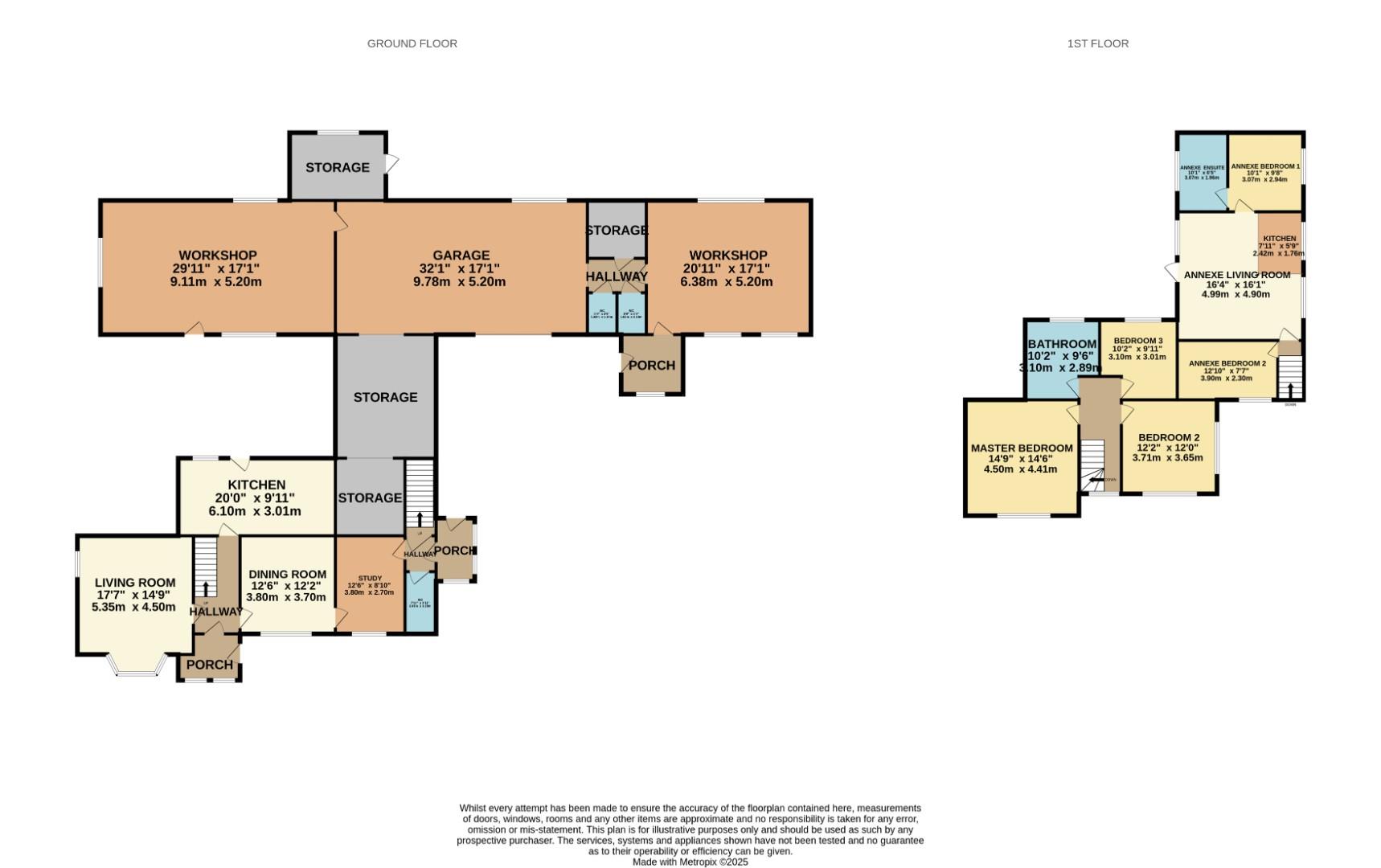
Entrance Hall
The welcoming entrance hall is located to the front elevation with feature stained glass door and ceiling beams leading in from the porch.Living Room
A spacious living area with plenty of space for living furniture and benefits from an open fire with feature surround and large bay window to the front elevation which allows for ample natural light and a scenic open outlook.Kitchen
The kitchen is fitted with a range of wood effect wall, base and drawer units with contrasting works surfaces, sink/drainer unit, integrated electric oven, hob and overhead extractor hood. There is a feature multifuel fireplace and space is available for further free standing appliances along with a dining table and chairs. Kitchen door leads into the rear garden.Dining Room
The dining room is a well proportioned reception room with feature exposed stone wall and ceiling beams, open fire, plenty of space for furniture and large window to the front elevation.Study
Currently utilised as a study, this additional ground floor room could also be used as a playroom.Cloakroom
The ground floor cloakroom is fitted with a WC, wash hand basin and frosted window.Master Bedroom
The master bedroom is a fantastic size with room for a king sized bed, further furniture and benefits from a feature decorative fireplace and large window to the front elevation which provides plenty of natural light.Bedroom Two
Another spacious bedroom with contemporary decor which has space for a king-sized bed and further furniture along with dual aspect windows.Bedroom Three
The third bedroom is a generous single room with plenty of space for furniture and window to the rear elevation.Bathroom
The modern family bathroom is fitted with a panelled bath, corner shower cubicle, wash hand basin and frosted window to the rear elevation.Annexe
The annexe is a separately accessed space accessed via a side elevation entrance porch with dual aspect windows.Living Room/Kitchen
The annexe hosts an open-plan kitchen and reception room. A large, welcoming space with plenty of space for living and dining furniture which benefits from neutral decor and French doors to the side elevation. The kitchen is fitted with a range of wood effect wall, base and drawer units and sink/drainer with space for an undercounter fridge or freezer.Bedroom One
The main annexe bedroom is a large single room with ample space for furniture, neutral decor and window to the rear elevation.Ensuite
The ensuite to the main bedroom is fitted double corner shower cubicle with sliding door, wash hand basin and WC.Bedroom Two
The second bedroom is another well-sized single room with plenty of space for furniture and window to the front elevation.External
Externally, the property has gated access leading to the expansive courtyard allowing for ample parking. There is also roadside access with staircase leading to the front courtyard, a great space for outdoor seating and hosting. The south-facing front elevation garden is set over multiple tiers with a multitude of mature plants and shrubbery with spectacular countryside views. The large garage is fitted with an electric roller door with electric throughout. The property boasts an impressive landscape with an enclosed lawned garden with hedged borders and patio areas ideal for outdoor hosting to the side elevation. Furthermore, the property is equipped with two impressive paddocks with natural fresh-water spring, private orchard and storage shed.COMMERCIAL SPACES
The property benefits from two commercial spaces which can be used to host businesses from within. With storage areas and cloakrooms.OUTBUILDING
The property benefits from an additional stone-built outbuilding currently fitted with a sink/drainer unit with the potential to be changed into a further commercial space and used as an Air B&B (subject to planning).Utilities
Broadband:
Fibre to Premises
Electricity:
Mains Supply
Sewerage:
Private Supply
Heating:
Oil
Mortgage calculator
Calculate Your Stamp Duty
Results
Stamp Duty To Pay:
Effective Rate:
| Tax Band | % | Taxable Sum | Tax |
|---|
Lynesack, Butterknowle
Want to explore Lynesack, Butterknowle further? Explore our local area guide
Struggling to find a property? Get in touch and we'll help you find your ideal property.