Let Available Date
Available: Now
Standout Features
- Spacious One Bedroom Top Floor Apartment
- Newly Decorated Throughout
- Utility & Storage Area
- ROINTE Electric Heating
- Permit Obtainable Parking
- Perfect for a Single Professional Person
- Council Tax Band: A
- EPC Rating: N/A Exempt
Property Description
Hunters Residential Lettings are delighted to offer for rent this spacious one-bedroom top floor apartment in highly sought-after Montpellier. This very well-presented property has been newly decorated throughout, offers comfortable living space and is perfect for a professional person or couple, looking for a premium location at a sensible price. Quick access into Cheltenham Town Centre and the Suffolks shopping district.
*Viewings strictly by appointment only.
*Viewings strictly by appointment only.
ONE BEDROOM APARTMENT | TOP FLOOR | NEWLY DECORATED | MONTPELLIER | AVAILABLE NOW | PERMIT PARKING | ELECTRIC HEATING | EPC RATING: N/A
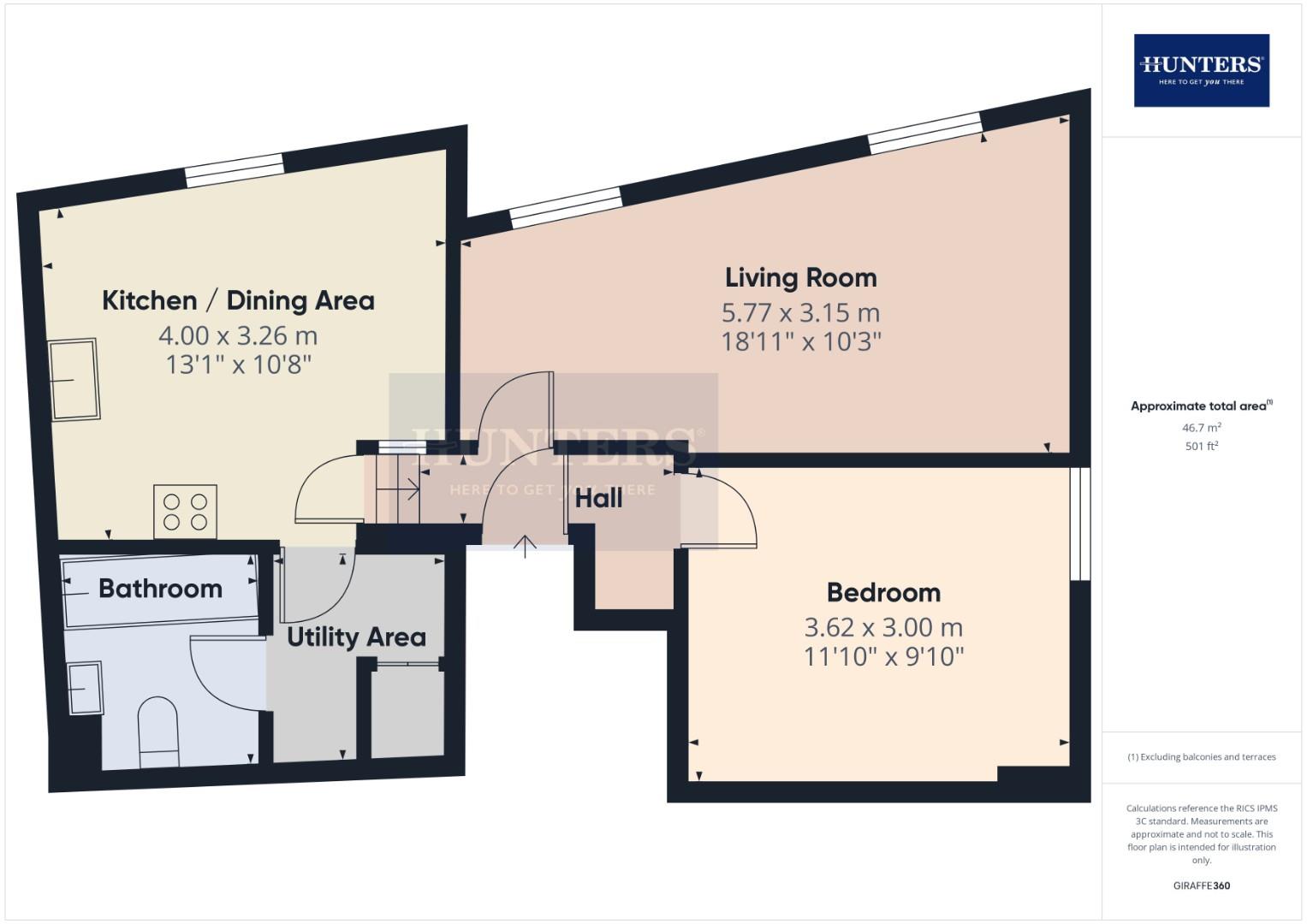
Living Room (5.77 x 3.15)
Kitchen / Dining Area (4.00 x 3.26)
Bedroom (3.62 x 3.00)
Bathroom (1.78 x 1.95)
Utility Area (1.58 x 2.10)
Additional Information
| Council Tax Band: | A |
|---|
Rooms
Living Room
5.77 x 3.15 (18'11" x 10'4")
Kitchen / Dining Area
4.00 x 3.26 (13'1" x 10'8")
Bedroom
3.62 x 3.00 (11'10" x 9'10")
Bathroom
1.78 x 1.95 (5'10" x 6'4")
Utility Area
1.58 x 2.10 (5'2" x 6'10")
Suffolk Road, Montpellier, Cheltenham
Want to explore Suffolk Road, Montpellier, Cheltenham further? Explore our local area guide
Struggling to find a property? Get in touch and we'll help you find your ideal property.