Let Available Date
Available: Now
Standout Features
- Available Now
- Unfurnished
- Conservatory
- Rural Location
- Driveway Parking
- Enclosed Rear Garden
- Countryside Views
- Council Tax Band F
- Flexibile Accommodation
- Electric Heating
Property Description
We are delighted to present Meadow View, a beautifully renovated and refurbished detached property situated in the highly sought-after semi-rural location of North Baddesley.
Finished to a modern standard throughout, this substantial and highly versatile home offers spacious and flexible accommodation, making it ideally suited to a large family or for use where additional ground floor bedroom or workspace provision may be required.
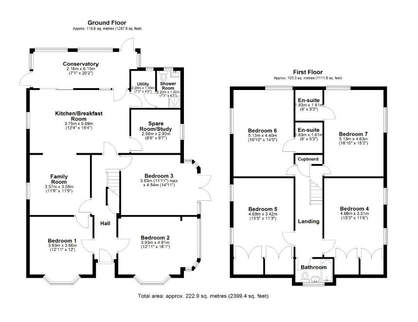
The ground floor is centred around an impressive L-shaped kitchen-dining area, providing an excellent open-plan environment for day-to-day living, dining, and entertaining. This space is complemented by a separate utility area, a contemporary shower room, and an additional multi-functional room suitable for use as a study, reception room, or ground floor bedroom. To the rear of the property, a bright and airy conservatory offers further living space with views over the enclosed garden.
To the first floor, the property comprises four well-proportioned double bedrooms, two of which benefit from modern en-suite shower facilities. A stylish family bathroom serves the remaining bedrooms and is finished to a high specification.
Externally, Meadow View offers ample off-road parking for several vehicles to the front, along with an enclosed rear garden enjoying open views across the surrounding countryside, enhancing both privacy and the overall appeal of this exceptional home.
We have proactively taken steps to enhance its suitability and regulatory compliance, including:
•Securing Change of Use to Sui Generis to permit Supported Living use
•Progressing the HMO licence application to draft approval stage, now subject only to minor works
Offered on an unfurnished basis and available NOW
Council Tax Band: F
Finished to a modern standard throughout, this substantial and highly versatile home offers spacious and flexible accommodation, making it ideally suited to a large family or for use where additional ground floor bedroom or workspace provision may be required.
The ground floor is centred around an impressive L-shaped kitchen-dining area, providing an excellent open-plan environment for day-to-day living, dining, and entertaining. This space is complemented by a separate utility area, a contemporary shower room, and an additional multi-functional room suitable for use as a study, reception room, or ground floor bedroom. To the rear of the property, a bright and airy conservatory offers further living space with views over the enclosed garden.
To the first floor, the property comprises four well-proportioned double bedrooms, two of which benefit from modern en-suite shower facilities. A stylish family bathroom serves the remaining bedrooms and is finished to a high specification.
Externally, Meadow View offers ample off-road parking for several vehicles to the front, along with an enclosed rear garden enjoying open views across the surrounding countryside, enhancing both privacy and the overall appeal of this exceptional home.
We have proactively taken steps to enhance its suitability and regulatory compliance, including:
•Securing Change of Use to Sui Generis to permit Supported Living use
•Progressing the HMO licence application to draft approval stage, now subject only to minor works
Offered on an unfurnished basis and available NOW
Council Tax Band: F
Additional Information
| Council Tax Band: | F |
|---|
Utilities
Electricity:
Mains Supply
Water:
Castle Lane, North Baddesley
Want to explore Castle Lane, North Baddesley further? Explore our local area guide
Struggling to find a property? Get in touch and we'll help you find your ideal property.