Let Available Date
Available: 05/05/2026
Property Description
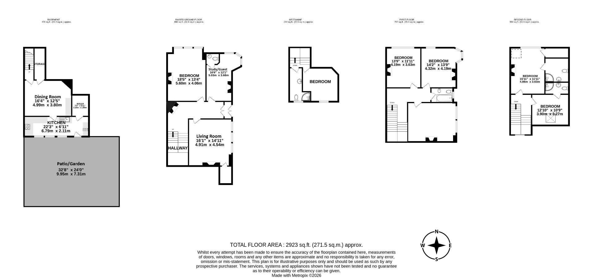
This outstanding brand-new six-bedroom maisonette with a separate study/guest bedroom available on Upper Clapton Road offers substantial and beautifully designed living space arranged over four impressive levels. Finished to an exceptional specification throughout, the property combines contemporary luxury with generous proportions.
The basement level features a spacious and modern fully fitted kitchen and dining area, perfect for entertaining and everyday living. This level also includes a dedicated boiler/utility room and provides direct access to a private patio garden.
On the ground floor, the property boasts a bright and expansive living room, a versatile guest room or study with a convenient guest WC, and a well-proportioned double bedroom.
The first floor comprises a bright double bedroom and a stylish family bathroom finished to a high standard.
The second floor offers two further generous double bedrooms alongside another contemporary bathroom.
Occupying the third floor are two impressive double bedrooms, both benefiting from their own private en-suite bathrooms, providing additional comfort and privacy.
Every aspect of this home has been completed to a very high specification, featuring premium fixtures and fittings, state of the art fire places and tiles, modern design, and quality finishes throughout.
Located on Upper Clapton Road (E5), the property is well positioned for local amenities, transport links, and green spaces, making it an exceptional rental opportunity in a highly desirable area.
The basement level features a spacious and modern fully fitted kitchen and dining area, perfect for entertaining and everyday living. This level also includes a dedicated boiler/utility room and provides direct access to a private patio garden.
On the ground floor, the property boasts a bright and expansive living room, a versatile guest room or study with a convenient guest WC, and a well-proportioned double bedroom.
The first floor comprises a bright double bedroom and a stylish family bathroom finished to a high standard.
The second floor offers two further generous double bedrooms alongside another contemporary bathroom.
Occupying the third floor are two impressive double bedrooms, both benefiting from their own private en-suite bathrooms, providing additional comfort and privacy.
Every aspect of this home has been completed to a very high specification, featuring premium fixtures and fittings, state of the art fire places and tiles, modern design, and quality finishes throughout.
Located on Upper Clapton Road (E5), the property is well positioned for local amenities, transport links, and green spaces, making it an exceptional rental opportunity in a highly desirable area.
Basement flat but also a 6 bedroom house above! Needs updating.
Upper Clapton Road, London, E5
Want to explore Upper Clapton Road, London, E5 further? Explore our local area guide
Struggling to find a property? Get in touch and we'll help you find your ideal property.