Standout Features
- Large One Bedroom Duplex Apartment
- Close proximity to Willesden Green
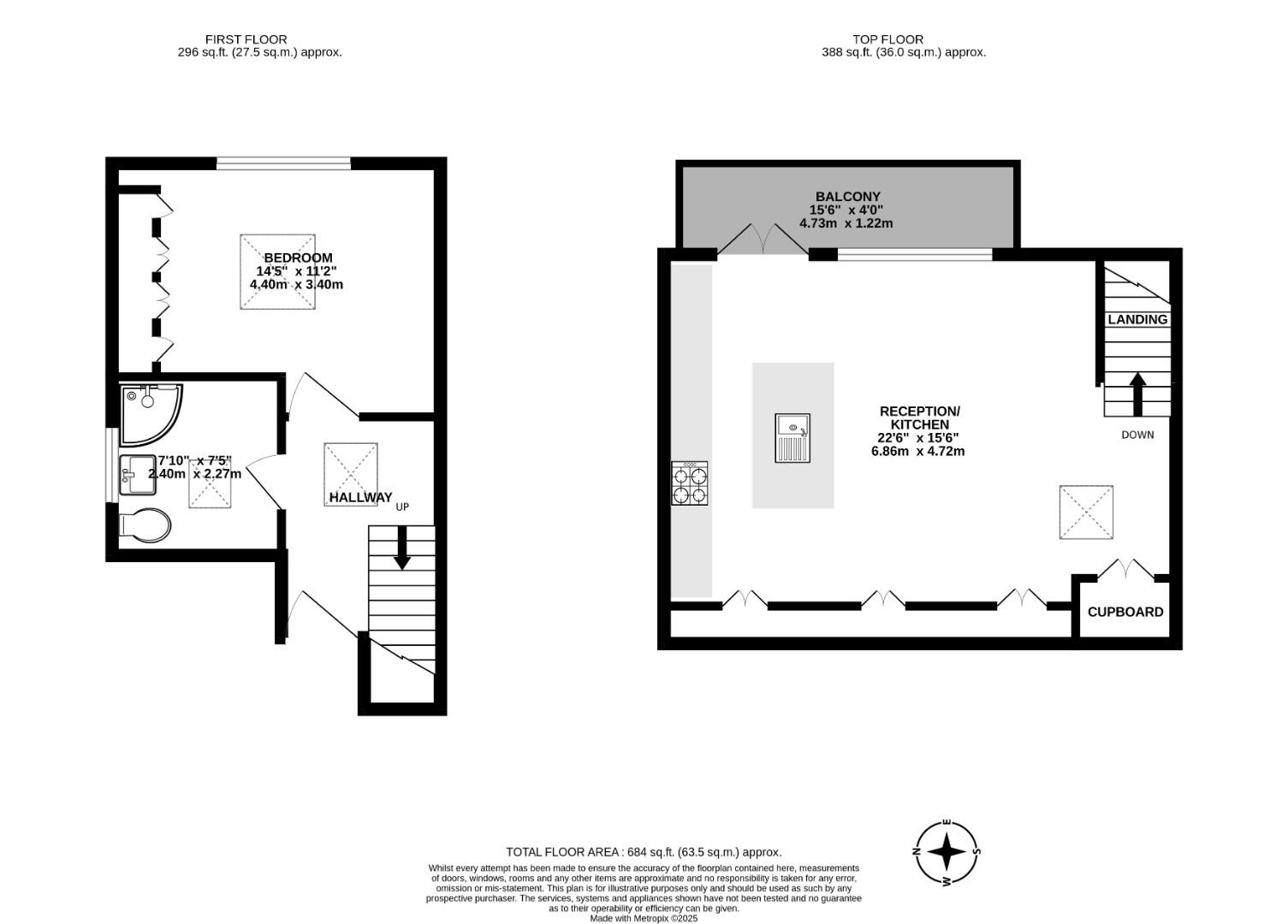
- Over 682 sq.ft. of internal living space
- Beautifully appointed South-facing private balcony
- Access to Gladstone Park and local amenities
- Recently renovated with high spec
- Ample built-in storage and eaves
- Sold with a share of the freehold
Property Description
Presenting this stunning one-bedroom apartment on quiet residential street in Willesden Green, offering 684 sq ft of living space & situated close to Gladstone Park.
Featuring ample storage throughout, high ceilings and beaming natural light. Accommodation comprises a spacious double bedroom with a bespoke fitted wardrobe, a full bathroom, a South-facing private balcony, and a modern reception room with space for dining leading to the open-plan kitchen.
The property is sold chain free with a share of the freehold.
Situated in a suburban setting with a 10-minutes walk to Gladstone Park (hosting a charming cafe, tennis courts, and over 86 acres of park), and a 25-minute walk to Queens Park where you can be greeted by the Sunday farmers market. Both perfect for dog walkers!
Ideally positioned for transport links into Central London including Willesden Green Jubilee Line (0.2 miles), Cricklewood Broadway Thames Link (0.7 miles), and Dollis Hill Jubilee Line (0.7 miles).
Featuring ample storage throughout, high ceilings and beaming natural light. Accommodation comprises a spacious double bedroom with a bespoke fitted wardrobe, a full bathroom, a South-facing private balcony, and a modern reception room with space for dining leading to the open-plan kitchen.
The property is sold chain free with a share of the freehold.
Situated in a suburban setting with a 10-minutes walk to Gladstone Park (hosting a charming cafe, tennis courts, and over 86 acres of park), and a 25-minute walk to Queens Park where you can be greeted by the Sunday farmers market. Both perfect for dog walkers!
Ideally positioned for transport links into Central London including Willesden Green Jubilee Line (0.2 miles), Cricklewood Broadway Thames Link (0.7 miles), and Dollis Hill Jubilee Line (0.7 miles).
An incredible one bed apartment moments from Willesden Green Station.
Photos to follow - Must see!
Additional Information
| Tenure: | Leasehold |
|---|---|
| Lease Years Remaining: | 89 |
Mortgage calculator
Calculate Your Stamp Duty
Results
Stamp Duty To Pay:
Effective Rate:
| Tax Band | % | Taxable Sum | Tax |
|---|
Cranhurst Road, Willesden Green, NW2
Want to explore Cranhurst Road, Willesden Green, NW2 further? Explore our local area guide
Struggling to find a property? Get in touch and we'll help you find your ideal property.