1 bedroom Flat For Sale

£189,750 | Available

1 bedroom Flat For Sale
or call 01943 660002
Standout Features

Property Description
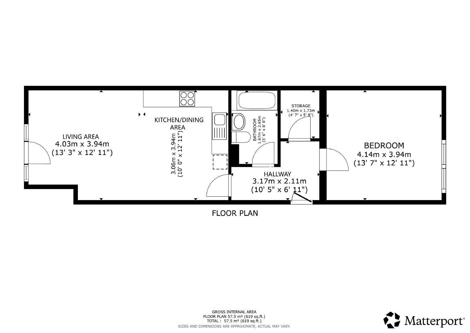
A great opportunity to purchase this charming first floor apartment in the heart of the much sought after village of Burley in Wharfedale. The apartment boasts generous proportions throughout including a entrance hallway, a light & airy open plan kitchen/dining/living room with a well appointed kitchen, a Juliet balcony and generous double bedroom and bathroom.

Burley in Wharfedale is a much sought after village which benefits from a selection of shops, pubs, restaurants, a post office, primary schools, doctors surgery and a variety of sporting and recreational facilities. Regular rail links to Leeds/Bradford city centres and Ilkley make the village popular with commuters, and there are bus services to Otley and also Harrogate. Ilkley is located less than 5 miles away and has a wide range of first class amenities including supermarkets, shops, restaurants and bars.

DIRECTIONS

From our Hunters Otley offices in Kirkgate, proceed towards Burley in Wharfedale along the bypass. At the roundabout, turn left, then at the next roundabout take the third exit onto Main Street. Turn left onto Norwood Avenue which becomes Back Lane as you follow it around to the right. After roughly quarter of a mile The Lawn could be found on the right hand side and the entrance is at the front of the building.

AGENTS NOTES

Tenure: Leasehold
Council Tax Band A, Bradford City Council
We have been informed by our client the flat is held on a 125 year lease with 108 years remaining. The current service charge is £110.00 per calendar month which includes buildings insurance, gardening, cleaning the communal areas, lighting and buildings maintenance.

The property comes with one allocated parking space.

ANTI MONEY LAUNDERING CHECKS AND OFFER ACCEPTANCE

By law, we are required to conduct anti-money laundering checks on all potential buyers and sellers, and we take this responsibility very seriously. In line with HMRC guidelines, our trusted partner, Coadjute, will securely manage these checks on our behalf. Once an offer is accepted (subject to contract), Coadjute will send a secure link for you to complete the biometric checks electronically. A non-refundable fee of £45 + VAT per person will apply for these checks, and Coadjute will handle the payment for this service. These anti-money laundering checks must be completed before we can send the memorandum of sale to the solicitors to confirm the sale. Please contact the office if you have any questions in relation to this.

ADDITIONAL SERVICES

If you are thinking of selling or letting your home, please contact our office for more information. Hunters is the fastest growing independent estate agency in the country, with more than 200 branches nationwide. We can put you in touch with a local independent financial advisor, who can offer the latest mortgage products, tailored to your individual requirements.

DISCLAIMER

These particulars are intended to give a fair and reliable description of the property but no responsibility for any inaccuracy or error can be accepted and do not constitute an offer or contract. We have not tested any services or appliances (including central heating if fitted) referred to in these particulars and the purchasers are advised to satisfy themselves as to the working order and condition. If a property is unoccupied at any time there may be reconnection charges for any switched off/disconnected or drained services or appliances - All measurements are approximate.


Additional Information
Tenure: Leasehold
Lease Years Remaining: 108
Service Charge: £61 per year
Council Tax Band: A

Rooms
DIRECTIONS
From our Hunters Otley offices in Kirkgate, proceed towards Burley in Wharfedale along the bypass. At the roundabout, turn left, then at the next roundabout take the third exit onto Main Street. Turn left onto Norwood Avenue which becomes Back Lane as you follow it around to the right. After roughly quarter of a mile The Lawn could be found on the right hand side and the entrance is at the front of the building.
AGENTS NOTES
Tenure: Leasehold
Council Tax Band A, Bradford City Council
We have been informed by our client the flat is held on a 125 year lease with 108 years remaining. The current service charge is £110.00 per calendar month which includes buildings insurance, gardening, cleaning the communal areas, lighting and buildings maintenance.

The property comes with one allocated parking space.
ANTI MONEY LAUNDERING CHECKS AND OFFER ACCEPTANCE
By law, we are required to conduct anti-money laundering checks on all potential buyers and sellers, and we take this responsibility very seriously. In line with HMRC guidelines, our trusted partner, Coadjute, will securely manage these checks on our behalf. Once an offer is accepted (subject to contract), Coadjute will send a secure link for you to complete the biometric checks electronically. A non-refundable fee of £45 + VAT per person will apply for these checks, and Coadjute will handle the payment for this service. These anti-money laundering checks must be completed before we can send the memorandum of sale to the solicitors to confirm the sale. Please contact the office if you have any questions in relation to this.
ADDITIONAL SERVICES
If you are thinking of selling or letting your home, please contact our office for more information. Hunters is the fastest growing independent estate agency in the country, with more than 200 branches nationwide. We can put you in touch with a local independent financial advisor, who can offer the latest mortgage products, tailored to your individual requirements.
DISCLAIMER
These particulars are intended to give a fair and reliable description of the property but no responsibility for any inaccuracy or error can be accepted and do not constitute an offer or contract. We have not tested any services or appliances (including central heating if fitted) referred to in these particulars and the purchasers are advised to satisfy themselves as to the working order and condition. If a property is unoccupied at any time there may be reconnection charges for any switched off/disconnected or drained services or appliances - All measurements are approximate.

Mortgage calculator

Calculate Your Stamp Duty
£
Results
Stamp Duty To Pay:
Effective Rate:
Tax Band % Taxable Sum Tax

The Lawn, Burley in Wharfedale, LS29

Want to explore The Lawn, Burley in Wharfedale, LS29 further? Explore our local area guide

Struggling to find a property? Get in touch and we'll help you find your ideal property.