Standout Features
- Deceptively spacious Two-Bedroom Detached Bungalow - No Chain!
- Occupying a substantial and generous plot, with large rear garden
- Rare opportunity â€" never previously offered to the market
- Two well-proportioned double bedrooms
- Spacious open-plan lounge/diner ideal for entertaining
- Requires modernisation â€" fantastic scope to add your own stamp
- Detached garage and private driveway providing off-road parking
- Large rear garden with excellent outdoor potential
- Short distance to Ashford town centre, International station & excellent M20 transport links
- EPC Rating: D - Council Tax Band: D
Property Description
Situated on the ever-popular Kingsnorth Road in Ashford, this deceptively spacious two-bedroom detached bungalow offers a rare and exciting opportunity for its next owner. Having never previously been offered to the market during its current ownership, this is a truly unique chance to secure a well-positioned home with enormous potential.
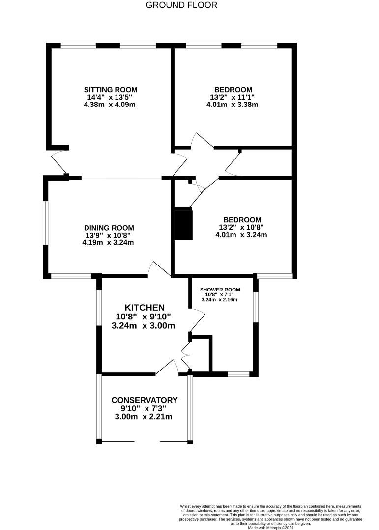
Occupying a substantial plot, the property boasts generous internal accommodation including two spacious double bedrooms and a bright open-plan lounge/diner, creating a wonderful space for both relaxing and entertaining. While the bungalow would benefit from modernisation throughout, it provides the perfect blank canvas for those looking to update and personalise a home to their own taste and style. A kitchen/dining room is found to the rear alongside a shower room & further conservatory which provides access into the garden.
Externally, the property continues to impress with a sizeable rear garden (approx 100ft) ideal for keen gardeners or those seeking outdoor space to enjoy. There is also a detached garage and private driveway, offering ample off-road parking. Full of potential and ready for its next chapter, this charming bungalow is longing for a new owner to make it their own.
Perfectly positioned, the property is within easy reach of local amenities and just a short stroll to Ashford town centre and the International train station, providing excellent high-speed links to London. The M20 motorway is also conveniently accessible, making this an ideal location for commuters.
Occupying a substantial plot, the property boasts generous internal accommodation including two spacious double bedrooms and a bright open-plan lounge/diner, creating a wonderful space for both relaxing and entertaining. While the bungalow would benefit from modernisation throughout, it provides the perfect blank canvas for those looking to update and personalise a home to their own taste and style. A kitchen/dining room is found to the rear alongside a shower room & further conservatory which provides access into the garden.
Externally, the property continues to impress with a sizeable rear garden (approx 100ft) ideal for keen gardeners or those seeking outdoor space to enjoy. There is also a detached garage and private driveway, offering ample off-road parking. Full of potential and ready for its next chapter, this charming bungalow is longing for a new owner to make it their own.
Perfectly positioned, the property is within easy reach of local amenities and just a short stroll to Ashford town centre and the International train station, providing excellent high-speed links to London. The M20 motorway is also conveniently accessible, making this an ideal location for commuters.
The property is situated along the Kingsnorth road close to local amenities including Tesco's Supermarket, Furley Park & Kingsnorth Primary Schools and is within a short drive to the Ashford Town Centre, International Station and M20 Motorway.
Additional Information
| Tenure: | Freehold |
|---|---|
| Council Tax Band: | D |
Utilities
Broadband:
Cable
Sewerage:
Mains Supply
Heating:
Gas Central
Mortgage calculator
Calculate Your Stamp Duty
Results
Stamp Duty To Pay:
Effective Rate:
| Tax Band | % | Taxable Sum | Tax |
|---|
Kingsnorth Road, Ashford
Want to explore Kingsnorth Road, Ashford further? Explore our local area guide
Struggling to find a property? Get in touch and we'll help you find your ideal property.