Standout Features
- Two Bedroom Two Bathroom Tenth Floor Apartment
- Panoramic views of London's skyline
- Underground Parking included
- Lift accessibility & Concierge service
- Underfloor heating
- Ample storage throughout
- Floor to ceiling windows, with dual aspect in the reception room
- Numerous transport links including Thameslink, Overground, Jubilee, Bakerloo
Property Description
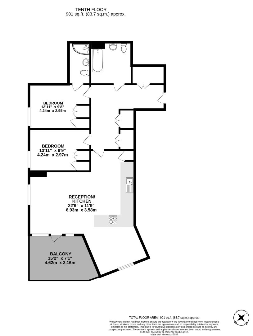
Bringing to the market this stunning tenth-floor, two-bedroom apartment set within a newly built residential accommodation. The property benefits from a private balcony, offering far-reaching views across the London skyline, and underground secure parking included.
The apartment features a spacious open-plan living and dining area, flooded with natural light from dual-aspect floor-to-ceiling windows. There are two well-proportioned bedrooms with built-in storage, including a principal bedroom with an en-suite.
Finished to a high specification throughout, the apartment includes integrated appliances, hard-wood flooring, underfloor heating, and a video intercom system. The expansive balcony provides an excellent outdoor space with panoramic views over both the city and surrounding suburbs.
Ideally positioned on Belsize Road, the development is moments from exceptional transport links, including South Hampstead Overground (Mildmay Line), Kilburn Park Bakerloo Line, and the West Hampstead links including: Thameslink, Jubilee underground, and Mildmay Overground.
The apartment features a spacious open-plan living and dining area, flooded with natural light from dual-aspect floor-to-ceiling windows. There are two well-proportioned bedrooms with built-in storage, including a principal bedroom with an en-suite.
Finished to a high specification throughout, the apartment includes integrated appliances, hard-wood flooring, underfloor heating, and a video intercom system. The expansive balcony provides an excellent outdoor space with panoramic views over both the city and surrounding suburbs.
Ideally positioned on Belsize Road, the development is moments from exceptional transport links, including South Hampstead Overground (Mildmay Line), Kilburn Park Bakerloo Line, and the West Hampstead links including: Thameslink, Jubilee underground, and Mildmay Overground.
Additional Information
| Tenure: | Leasehold |
|---|---|
| Lease Years Remaining: | 996 |
| Ground Rent: | £10 per year |
| Service Charge: | £3,500 per year |
| Council Tax Band: | E |
Mortgage calculator
Calculate Your Stamp Duty
Results
Stamp Duty To Pay:
Effective Rate:
| Tax Band | % | Taxable Sum | Tax |
|---|
131-143 Belsize Road, South Hampstead, London, NW6
Want to explore 131-143 Belsize Road, South Hampstead, London, NW6 further? Explore our local area guide
Struggling to find a property? Get in touch and we'll help you find your ideal property.