Standout Features
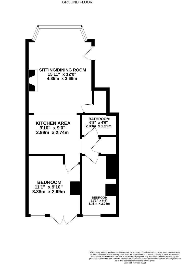
- ONE/TWO BEDROOM GROUND FLOOR APARTMENT
- OPEN PLAN LOUNGE/KITCHEN - FEATURE PERIOD FIREPLACE
- DOUBLE GLAZING - GAS CENTRAL HEATING- MODERN BATHROOM
- CLOSE TO FOLKESTONE CENTRAL RAILWAY STATION
- NEW 999 YEAR LEASE
- CUL-DE-SAC- LOCATION
- PRIVATE REAR GARDEN
- REDECORATED ACCOMMODATION
- NO ONWARD CHAIN
- SHARE OF FREEHOLD
Property Description
Conveniently located in Cambridge Gardens, near to Folkestone main line railway station Folkestone, This one/two bedroom ground floor apartment has a spacious lounge with laminate flooring, feature period style fireplace and bay window to front, opening into a fitted kitchen along with a modern bathroom with white suite. The flat has recently been re-decorated.
There are 1/2 bedrooms, (the second bedroom is a single room ideal for a child or a useful office/study). The apartment has direct access to its own mainly paved and enclosed rear garden.
This property is currently undergoing arrangements for a new lease and benefits from a share of the freehold, offering peace of mind for future ownership.
Additionally, this property comes with the advantage of no onward chain. The property has previously been let with no vacant periods with a rental of £900 per month.
There are 1/2 bedrooms, (the second bedroom is a single room ideal for a child or a useful office/study). The apartment has direct access to its own mainly paved and enclosed rear garden.
This property is currently undergoing arrangements for a new lease and benefits from a share of the freehold, offering peace of mind for future ownership.
Additionally, this property comes with the advantage of no onward chain. The property has previously been let with no vacant periods with a rental of £900 per month.
Additional Information
| Tenure: | Leasehold |
|---|---|
| Lease Years Remaining: | 999 |
| Council Tax Band: | B |
Mortgage calculator
Calculate Your Stamp Duty
Results
Stamp Duty To Pay:
Effective Rate:
| Tax Band | % | Taxable Sum | Tax |
|---|
Cambridge Gardens, Folkestone
Want to explore Cambridge Gardens, Folkestone further? Explore our local area guide
Struggling to find a property? Get in touch and we'll help you find your ideal property.