Standout Features
- Wonderful Opportunity to Acquire this Two Bedroomed Apartment
- FIRST YEAR OF SERVICE CHARGE PAID
- Two Bathrooms
- Immaculate Throughout
- Balcony with Views Over Sutton Park
- Long Lease
- Energy Efficient Heating System Throughout
- Sleek and Modern Feel
- NO CHAIN
Property Description
**FIRST YEAR OF SERVICE CHARGE PAID**
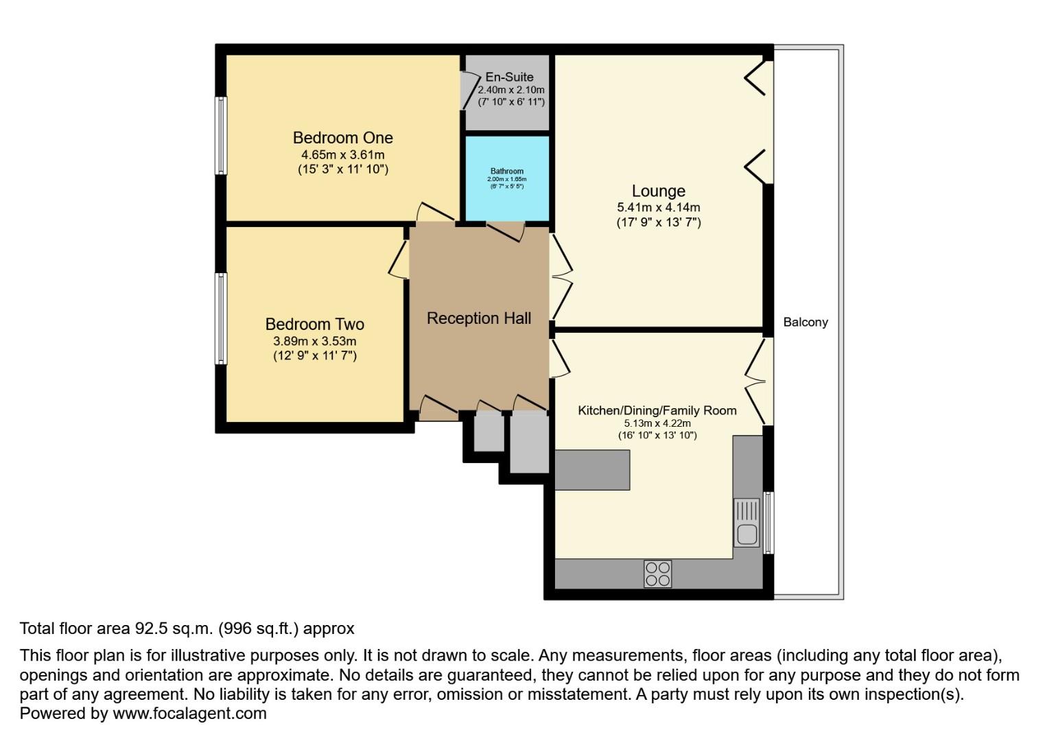
A well-presented two-bedroom penthouse apartment situated at Caversham Place, Sutton Coldfield, enjoying an elevated position with attractive views across Sutton Park.
The property offers well-proportioned accommodation throughout, including a spacious lounge with bi-fold doors opening onto a full-length balcony, providing plenty of natural light and outdoor space. The separate modern kitchen is fitted with a range of integrated appliances, while the principal bedroom benefits from a contemporary en-suite. A second bedroom and main bathroom complete the accommodation. Dual access to the balcony enhances the overall sense of light and space.
The apartment has been designed with energy efficiency in mind, featuring app-controlled infrared heating and hot water systems, along with recently upgraded high-performance windows and doors. Further benefits include two undercover parking spaces and lift access to the top floor.
Ideally located within walking distance of Sutton Coldfield town centre, the train station, and well-regarded local schools, the property is offered with no upward chain and is ready for immediate occupation.
We have been advised that there is an unexpired lease of 999 years from 2001 with a service charge of circa £5,000pa and a ground rent of £65pa. We advise anybody wishing to proceed to confirm these details with a solicitor.
A well-presented two-bedroom penthouse apartment situated at Caversham Place, Sutton Coldfield, enjoying an elevated position with attractive views across Sutton Park.
The property offers well-proportioned accommodation throughout, including a spacious lounge with bi-fold doors opening onto a full-length balcony, providing plenty of natural light and outdoor space. The separate modern kitchen is fitted with a range of integrated appliances, while the principal bedroom benefits from a contemporary en-suite. A second bedroom and main bathroom complete the accommodation. Dual access to the balcony enhances the overall sense of light and space.
The apartment has been designed with energy efficiency in mind, featuring app-controlled infrared heating and hot water systems, along with recently upgraded high-performance windows and doors. Further benefits include two undercover parking spaces and lift access to the top floor.
Ideally located within walking distance of Sutton Coldfield town centre, the train station, and well-regarded local schools, the property is offered with no upward chain and is ready for immediate occupation.
We have been advised that there is an unexpired lease of 999 years from 2001 with a service charge of circa £5,000pa and a ground rent of £65pa. We advise anybody wishing to proceed to confirm these details with a solicitor.
AGENTS NOTE
**Should you proceed with an offer on this property we have a legal obligation to perform Anti Money Laundering checks on behalf of HMRC. We use our compliance partner, Coadjute, to perform these checks, for which they charge a fee.**
Additional Information
| Tenure: | Leasehold |
|---|---|
| Lease Years Remaining: | 974 |
| Council Tax Band: | E |
Rooms
AGENTS NOTE
**Should you proceed with an offer on this property we have a legal obligation to perform Anti Money Laundering checks on behalf of HMRC. We use our compliance partner, Coadjute, to perform these checks, for which they charge a fee.**Mortgage calculator
Calculate Your Stamp Duty
Results
Stamp Duty To Pay:
Effective Rate:
| Tax Band | % | Taxable Sum | Tax |
|---|
Caversham Place, Sutton Coldfield
Want to explore Caversham Place, Sutton Coldfield further? Explore our local area guide
Struggling to find a property? Get in touch and we'll help you find your ideal property.