Standout Features
- Two Bedroom Garden Flat
- Close proximity to Cricklewood Broadway station
- Requires modernisation throughout
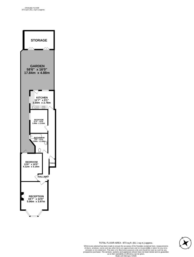
- Over 873 sq.ft. of internal living space
- Private large rear garden
Property Description
Public Notice - Flat A, 8 Claremont Road, NW2 We are acting in the sale of the above property and have received an offer of £370,000. Any interested parties must submit any higher offers in writing to the selling agent before an exchange of contracts takes place.
EPC RATING: D
A very well located two bedroom garden flat benefiting from private garden to rear.
The property is priced to reflect internal modernisation required and consists of a private entrance, reception room with double doors leading to it's own large garden, a separate kitchen, two bedrooms and a shower room. There is potential to extend to the rear, subject to the necessary consents. There is also an allocated off street parking space to the front. Sold chain free.
Well situated for access to Overground trains at Cricklewood (Thameslink with direct access to Kings Cross St Pancras). West Hampstead and West End Lane are also accessible. Further, Brent Cross shopping centre is one mile away and there is a David Lloyd Health club within 200ft of the property.
Early viewings are highly recommended.
EPC RATING: D
A very well located two bedroom garden flat benefiting from private garden to rear.
The property is priced to reflect internal modernisation required and consists of a private entrance, reception room with double doors leading to it's own large garden, a separate kitchen, two bedrooms and a shower room. There is potential to extend to the rear, subject to the necessary consents. There is also an allocated off street parking space to the front. Sold chain free.
Well situated for access to Overground trains at Cricklewood (Thameslink with direct access to Kings Cross St Pancras). West Hampstead and West End Lane are also accessible. Further, Brent Cross shopping centre is one mile away and there is a David Lloyd Health club within 200ft of the property.
Early viewings are highly recommended.
Additional Information
| Tenure: | Leasehold |
|---|---|
| Lease Years Remaining: | 127 |
Mortgage calculator
Calculate Your Stamp Duty
Results
Stamp Duty To Pay:
Effective Rate:
| Tax Band | % | Taxable Sum | Tax |
|---|
Claremont Road, Cricklewood, London, NW2
Want to explore Claremont Road, Cricklewood, London, NW2 further? Explore our local area guide
Struggling to find a property? Get in touch and we'll help you find your ideal property.