Property Description
**IMMACULATE TOP FLOOR APARTMENT WITH TWO DOUBLE BEDROOMS BOTH WITH EN-SUITES & FANTASTIC SEA VIEWS FROM THE ROOF TERRACE** Immaculate Two Bed Apartment comprising Communal Entrance with Intercom system, Hallway, Open Plan Living Dining Kitchen Space, Two Double Bedrooms both with En-suites, Stunning Communal Roof Top Terrace, Residents Parking Spaces, Free Onsite Gym, Council Tax Band B
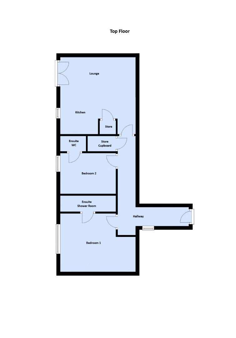
Communal Entrance
Intercom system, stairs and lift to the Fourth Floor
Hallway
Tiled entrance area, airing cupboard
Open Plan Living/Dining Kitchen Space (3.99m x 6.32m)
Fantastic open plan Living/Dining Kitchen Space with double glazed doors to side with Juliette balcony, Fitted kitchen with a matching range of base and wall units with round edge worktops & matching splashbacks, electric double oven, ceramic hob with extractor hood over, 1 & 1/2 bowl sink with mixer taps, integrated washing machine, integrated fridge freezer, tiled floor in Kitchen
Bedroom 1 (4.09m x 3.28m)
Double glazed window to rear, radiator, fitted wardrobes
En-Suite Shower Room (1.14m x 2.64m)
Fitted with a stylish 3 piece suite comprising low level wc, tiled shower enclosure, vanity wash hand basin with storage under
Bedroom 2 (3.00m x 3.00m)
Double glazed window to rear, radiator
En-Suite WC (1.40m x 1.45m)
Low level wc, wash hand basin with storage under
Outside
Communal Roof Terrace, Permit Parking
Communal Areas
Access to Stunning communal roof top gardens and a Free onsite Gym
Additional Information
| Tenure: |
Leasehold |
| Lease Years Remaining: |
995 |
| Ground Rent: |
£135 per year |
| Service Charge: |
£2,200 per year |
| Council Tax Band: |
B |
Rooms
Communal Entrance
Intercom system, stairs and lift to the Fourth Floor
Hallway
Tiled entrance area, airing cupboard
Open Plan Living/Dining Kitchen Space
Fantastic open plan Living/Dining Kitchen Space with double glazed doors to side with Juliette balcony, Fitted kitchen with a matching range of base and wall units with round edge worktops & matching splashbacks, electric double oven, ceramic hob with extractor hood over, 1 & 1/2 bowl sink with mixer taps, integrated washing machine, integrated fridge freezer, tiled floor in Kitchen
3.99m x 6.32m (13'1 x 20'9)
Bedroom 1
Double glazed window to rear, radiator, fitted wardrobes
4.09m x 3.28m (13'5 x 10'9)
En-Suite Shower Room
Fitted with a stylish 3 piece suite comprising low level wc, tiled shower enclosure, vanity wash hand basin with storage under
1.14m x 2.64m (3'9 x 8'8)
Bedroom 2
Double glazed window to rear, radiator
3.00m x 3.00m (9'10 x 9'10)
En-Suite WC
Low level wc, wash hand basin with storage under
1.40m x 1.45m (4'7 x 4'9)
Outside
Communal Roof Terrace, Permit Parking
Communal Areas
Access to Stunning communal roof top gardens and a Free onsite Gym
Utilities
Mortgage calculator
Monthly Repayments:
£
Are you ready to take the next step?
Speak with one of our team and we can help you find out your affordability.
All fields must be numbers
Calculate Your Stamp Duty
Results
Stamp Duty To Pay:
Effective Rate:
| Tax Band |
% |
Taxable Sum |
Tax |
Coastal Point, New South Promenade, Blackpool
Want to explore Coastal Point, New South Promenade, Blackpool further? Explore our local area guide
Struggling to find a property? Get in touch and we'll help you find your ideal property.