Property Description
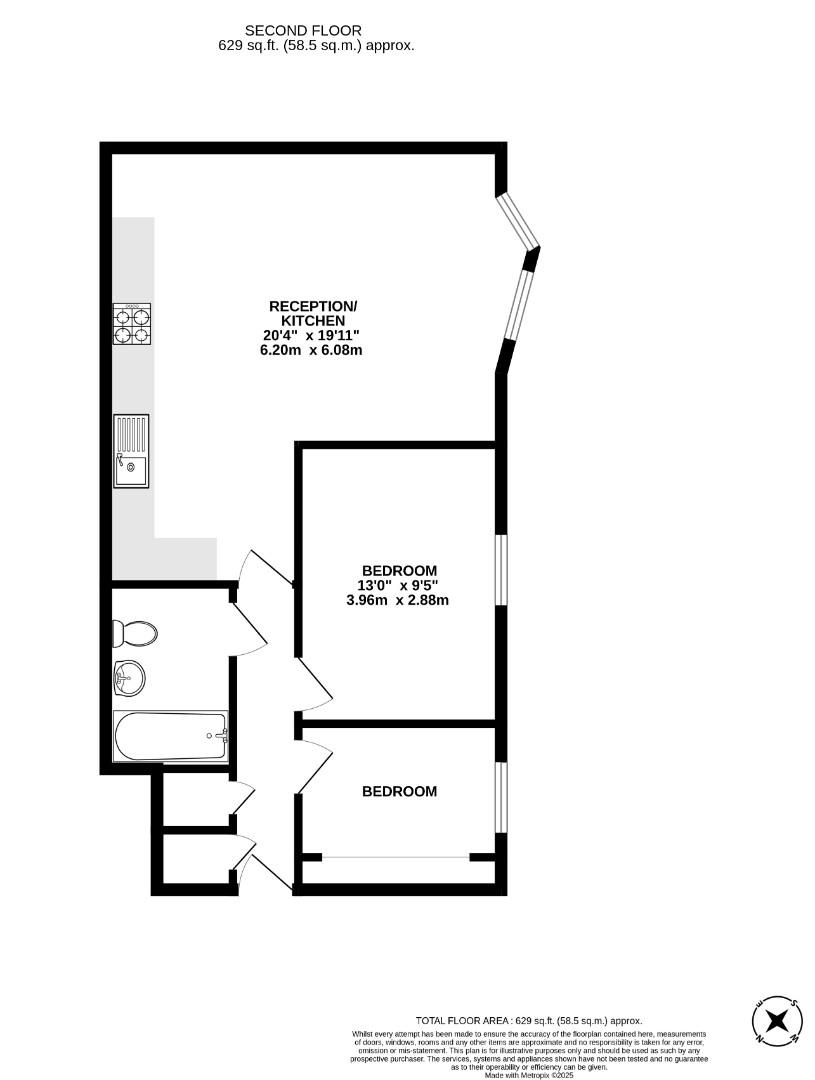
Offered to the market chain-free, this fantastic two-bedroom apartment is set on the second floor (with lift) of a well-maintained purpose-built development, with access to communal gardens. Measuring approximately 629 sq. ft. (58.5 sq. m), the property offers well-balanced living space in a peaceful residential setting.
Available to view by appointment only, the apartment comprises a spacious 20ft open-plan kitchen/reception room with a bay window, a well-proportioned principal bedroom, a second bedroom, a modern tiled bathroom, and ample built-in storage throughout.
Lewis Gardens is a quiet cul-de-sac just off Stamford Hill, ideally located moments from the many bars, restaurants, and coffee houses of Stoke Newington, and a short walk from the open green spaces of Springfield Park.
Transport links include Stamford Hill Station (Overground), Manor House Underground Station (Piccadilly Line), Seven Sisters Station (Overground & Victoria Line), and a wide range of bus routes into the City and West End.
Available to view by appointment only, the apartment comprises a spacious 20ft open-plan kitchen/reception room with a bay window, a well-proportioned principal bedroom, a second bedroom, a modern tiled bathroom, and ample built-in storage throughout.
Lewis Gardens is a quiet cul-de-sac just off Stamford Hill, ideally located moments from the many bars, restaurants, and coffee houses of Stoke Newington, and a short walk from the open green spaces of Springfield Park.
Transport links include Stamford Hill Station (Overground), Manor House Underground Station (Piccadilly Line), Seven Sisters Station (Overground & Victoria Line), and a wide range of bus routes into the City and West End.
Additional Information
| Tenure: | Leasehold |
|---|---|
| Lease Years Remaining: | 107 |
| Service Charge: | £2,176 per year |
| Council Tax Band: | C |
Mortgage calculator
Calculate Your Stamp Duty
Results
Stamp Duty To Pay:
Effective Rate:
| Tax Band | % | Taxable Sum | Tax |
|---|
Lewis Gardens, London, N16
Want to explore Lewis Gardens, London, N16 further? Explore our local area guide
Struggling to find a property? Get in touch and we'll help you find your ideal property.