Standout Features

Property Description
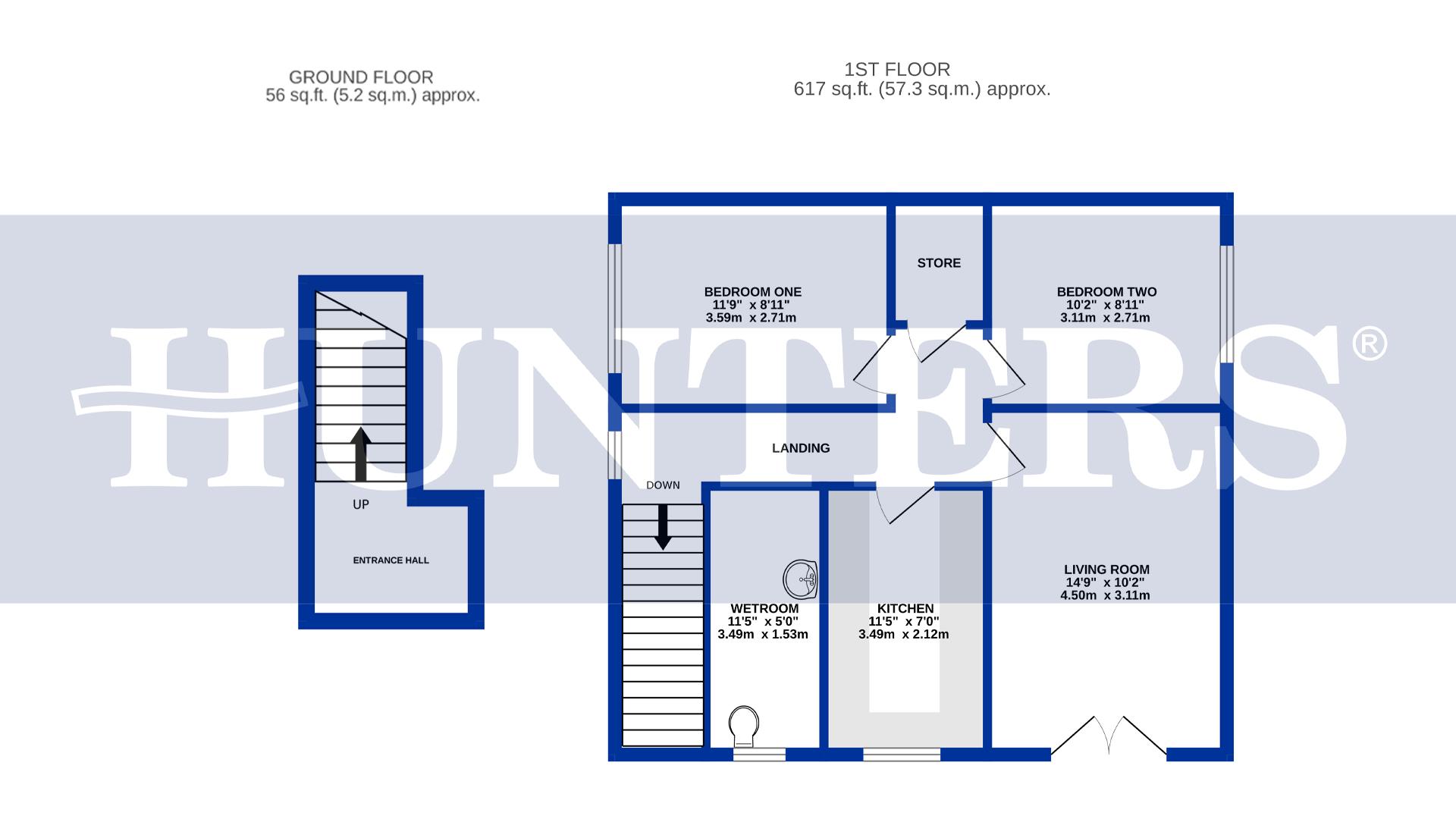
A well-presented two-bedroom first floor apartment in Pudsey offering a bright reception room with Juliet balcony, modern kitchen with breakfast bar, tiled wet room, gas central heating, double glazing, communal gardens and parking, all within easy reach of local amenities, green spaces and excellent transport links to Leeds and Bradford.

This two-bedroom first floor APARTMENT has a private ground floor entrance and staircase, situated in a sought-after small development of properties just off cemetery road is now for sale in Pudsey, offering practical accommodation in good condition, close to a range of local amenities and green spaces.

The property comprises a LIVING room with space for a table and chairs, featuring a Juliet balcony that provides additional light and outlook. The fitted modern KITCHEN includes units with worktop and sink, built-in oven and hob, space for a washer and fridge, and a breakfast bar with stools. There are two generous sized bedrooms, both with side windows, and a tiled WET ROOM with shower, matching toilet and sink. The property benefits from gas central heating and PVC double glazing, as well as a useful built-in large storage cupboard from the landing.

Externally, residents have use of well-maintained communal gardens and a parking space.

Located close to the centre of Pudsey, the apartment is well placed for local shops, cafés and amenities in Pudsey town centre, including Pudsey Market and nearby supermarkets. Green spaces and nearby parks provide walking and cycling routes in the surrounding area.

Public transport links are accessible via Pudsey railway station (New Pudsey), which offers services to Leeds and Bradford Interchange, with typical journey times of around 10–15 minutes to Leeds and similar to Bradford. Bus routes from Pudsey provide further connections across West Leeds and into the city centre.

The property is offered with NO CHAIN INVOLVED and will suit couples or single occupants seeking an apartment in a sought-after Pudsey location with access to local amenities, green spaces and transport links.

KITCHEN (3.49m x 2.12m)

LIVING ROOM (4.50m x 3.11m)

BEDROOM ONE (3.59m x 2.71m)

BEDROOM TWO (3.11m x 2.71m)

WETROOM (3.49m x 1.53m)


Additional Information
Tenure: Leasehold
Lease Years Remaining: 969
Service Charge: £700 per year
Council Tax Band: B

Rooms
KITCHEN

3.49m x 2.12m (11'5" x 6'11")
LIVING ROOM

4.50m x 3.11m (14'9" x 10'2")
BEDROOM ONE

3.59m x 2.71m (11'9" x 8'10")
BEDROOM TWO

3.11m x 2.71m (10'2" x 8'10")
WETROOM

3.49m x 1.53m (11'5" x 5'0")

Mortgage calculator

Calculate Your Stamp Duty
£
Results
Stamp Duty To Pay:
Effective Rate:
Tax Band % Taxable Sum Tax

Queens Drive, Off Cemetery Road, Pudsey, LS28 7HL

Want to explore Queens Drive, Off Cemetery Road, Pudsey, LS28 7HL further? Explore our local area guide

Struggling to find a property? Get in touch and we'll help you find your ideal property.