2 bedroom Flat For Sale

Guide Price £475,000 | Available

2 bedroom Flat For Sale
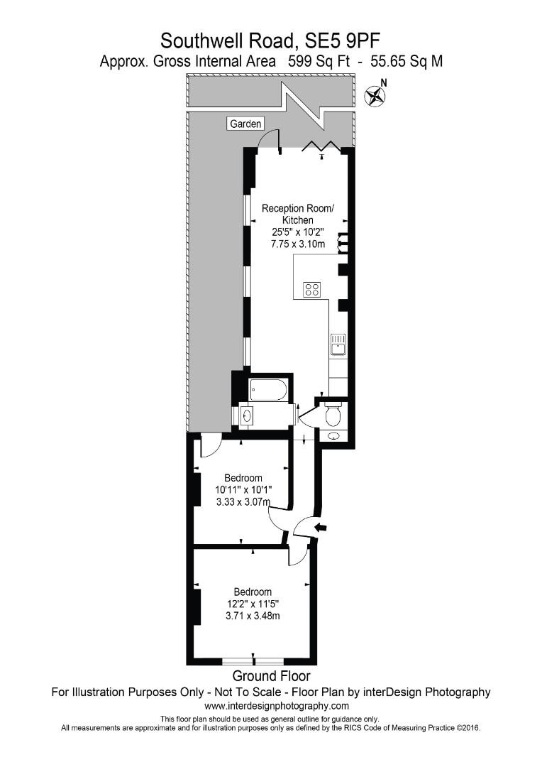
Total Size: 599 SQ FT
or call 020 7708 2002
Standout Features

Property Description
Guide Price £475,000 to £500,000.

A well-presented two bedroom ground floor flat with a wraparound garden! Chain free!

Internally you are presented with a generously sized open plan, kitchen and reception area. The reception offers enough space to relax and entertain, with wood flooring with underfloor heating. The kitchen was refurbed in 2021 including the boiler and is well presented with plenty of white wall and base units, light green tiled splashbacks and high-end appliances such as an integrated hob, dishwasher, wine fridge and two ovens. The garden which can be found through the full width bi-fold doors in the reception has a shingled area and wraps around the property, with further access via one of the bedrooms. There is ample space for a table and chairs to entertain guests, with well stocked planting in borders. There are two bedrooms in the property, both offering enough space for a double bed and furniture, finished with cream carpeting. Heading through the hallway you will find the bathroom and separate WC, also refurbed in 2021, fitted with a heated towel rail, a mirrored vanity unit and a bath with an overhead shower.

Southwell Road is in a sought-after area with a great sense of community, much of which centers around The Cambria local pub and the nearby Carnegie Library. Ruskin Park is a short 0.2mile stroll down the road with its state of the art play areas, paddling pool, café, tennis courts, community gardens, lake and wild nature planting. Loughborough Junction station is only a 0.2 mile walk away, offering Thameslink and Southern Eastern services into and around the city. There are bus stops located on all along Coldharbour lane with buses ready to whisk you around south London or into the city.

Tenure: Leasehold
Council Tax band: C
Authority: London Borough of Lambeth
Lease length: 174 years remaining
Ground rent: £10 per annum
Review period: Not subject to increase
Service charge: £1,085.59 per annum
Construction: Standard construction
Property type: Flat
Number of floors in building: 3
Entrance on floor: 1
Has lift: No
Over commercial premises: No
Parking: On street, permit required
Electricity: Mains electricity
Water and drainage: Connected to mains water supply
Mains surface water drainage: Yes
Sewerage: Connected to mains sewerage
Heating: Electric – underfloor and radiators
Building safety issues: None
Lease restrictions: None
Public right of way through and/or across your house, buildings or land: No
Flood risk: No
History of flooding: No
Planning and development: None
Listing and conservation: None
Accessibility: None
Mining: No coal mining risk identified

Should you wish to proceed with an offer on this property, we are obligated by HMRC to conduct mandatory Anti-Money Laundering (AML) checks. We outsource these checks to our compliance partners at Coadjute, who charge a fee of £30 + VAT per person for this service. This cost is payable by the buyer and applies to each individual buyer, as well as to any person gifting funds towards the purchase.


Additional Information
Tenure: Leasehold
Lease Years Remaining: 174
Ground Rent: £10 per year
Service Charge: £1,089 per year
Council Tax Band: C

Utilities
Broadband:
Fibre to Premises
Electricity:
Mains Supply
Sewerage:
Mains Supply
Water:

Mortgage calculator

Calculate Your Stamp Duty
£
Results
Stamp Duty To Pay:
Effective Rate:
Tax Band % Taxable Sum Tax

Southwell Road, London, SE5

Want to explore Southwell Road, London, SE5 further? Explore our local area guide

Struggling to find a property? Get in touch and we'll help you find your ideal property.