2 bedroom Flat For Sale

OIRO £134,000 | Available

2 bedroom Flat For Sale
or call 01246 540540
Standout Features

Property Description
AVAILABLE TO LANDLORDS ONLY - with tenants in situ & paying £700pm.

GREAT FOR COMMUTERS - a two DOUBLE bedroomed DUPLEX apartment. Some furnishings are available FREE - with a bed & a settee.

Within WALKING DISTANCE of the town centre and train station. M1 access easy too...

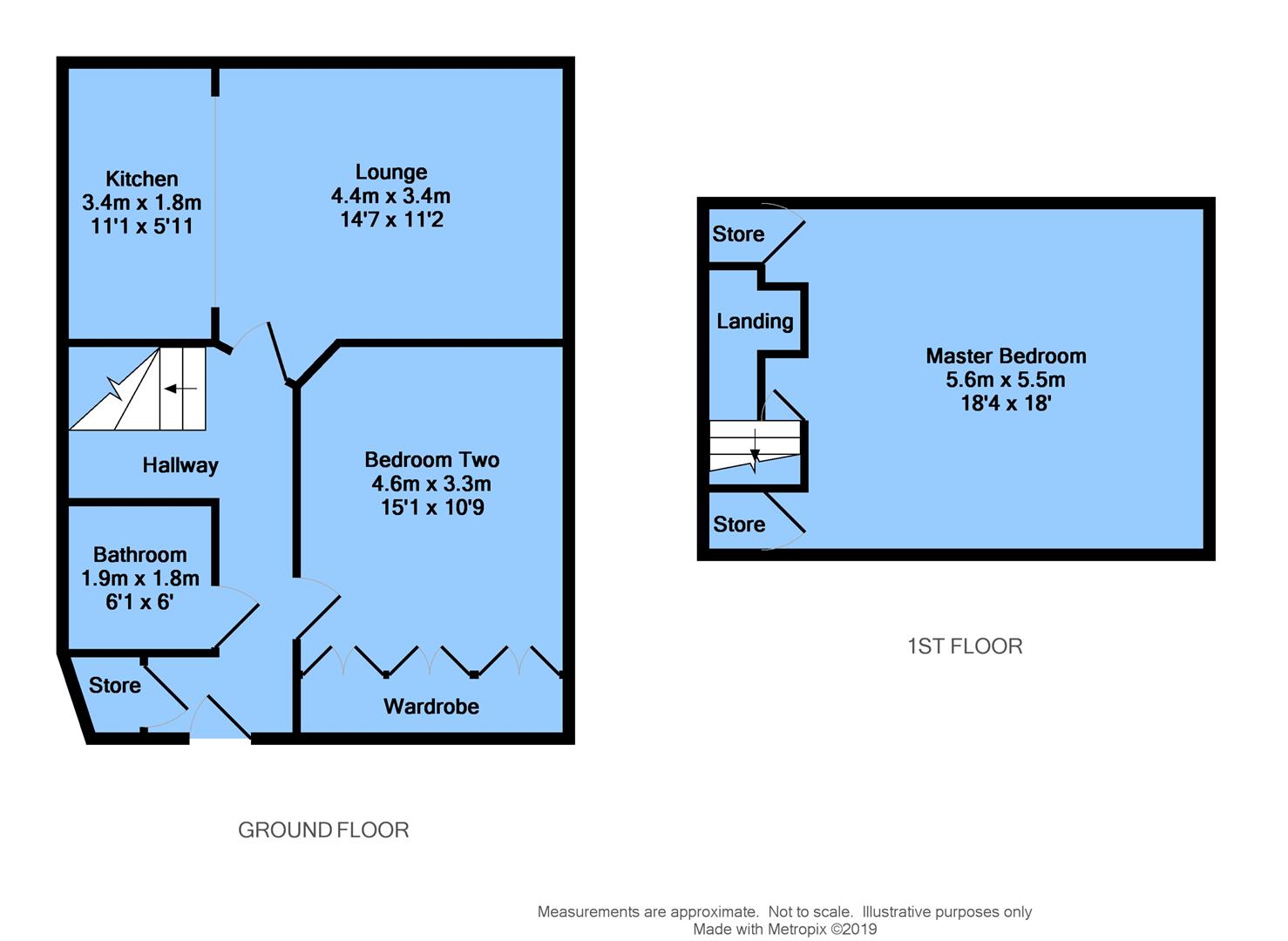
Fantastic opportunity to acquire a stunning duplex apartment situated in the ever popular Riverside village. Offering great commuter links, within walking distance of the town centre and the train station.

This is one of the largest apartments within the block and is split over two levels. Perfect for the professional couple seeking stylish and modern apartment living.

The first floor offers a large open plan living diner and kitchen with built in appliances. Large double bedroom with fitted wardrobes, bathroom with shower over bath.

The second floor sees a larger than expected double bedroom again with fitted storage.

Outside is an allocated parking space and visitors parking spots are also available. The property has electric heating.

FULL EICR & ALL CERTIFICATES IN PLACE - an investment ready to go!
Please note the apartment block did suffer with flooding with the October storm of 2023. The apartment itself DID NOT FLOOD.

Leasehold - Annual service charge for 2025 £1638.76
976 years remain on the lease.

Tax Band C, EPC Rating D.

DISCLOSURE

ADVERT & DESCRIPTION DISCLAIMER;
These particulars are intended to give a fair and reliable description of the property but no responsibility for any inaccuracy or error can be accepted and do not constitute an offer or contract.
We have not tested any services or appliances (including central heating if fitted) referred to in these particulars and the purchasers are advised to satisfy themselves as to the working order and condition.
If a property is unoccupied at any time there may be reconnection charges for any switched off/disconnected or drained services or appliances.
All measurements are approximate.

BUYERS AML FEE DISCLOSURE;
By law, we are required to conduct anti-money laundering checks on all potential buyers and sellers, and we take this responsibility very seriously. In line with HMRC guidelines, we will securely manage these checks. Once an offer is accepted (subject to contract), a secure link for you to complete the biometric checks electronically. A non-refundable fee of £62.50 + VAT (£75.00 inc VAT) per person will apply for these checks. These anti-money laundering checks must be completed before we can send the memorandum of sale to the solicitors to confirm the sale.


Additional Information
Tenure: Leasehold
Lease Years Remaining: 976
Service Charge: £1,638 per year
Council Tax Band: C

Rooms
DISCLOSURE
ADVERT & DESCRIPTION DISCLAIMER;
These particulars are intended to give a fair and reliable description of the property but no responsibility for any inaccuracy or error can be accepted and do not constitute an offer or contract.
We have not tested any services or appliances (including central heating if fitted) referred to in these particulars and the purchasers are advised to satisfy themselves as to the working order and condition.
If a property is unoccupied at any time there may be reconnection charges for any switched off/disconnected or drained services or appliances.
All measurements are approximate.

BUYERS AML FEE DISCLOSURE;
By law, we are required to conduct anti-money laundering checks on all potential buyers and sellers, and we take this responsibility very seriously. In line with HMRC guidelines, we will securely manage these checks. Once an offer is accepted (subject to contract), a secure link for you to complete the biometric checks electronically. A non-refundable fee of £62.50 + VAT (£75.00 inc VAT) per person will apply for these checks. These anti-money laundering checks must be completed before we can send the memorandum of sale to the solicitors to confirm the sale.

Utilities
Electricity:
Mains Supply
Sewerage:
Mains Supply

Mortgage calculator

Calculate Your Stamp Duty
£
Results
Stamp Duty To Pay:
Effective Rate:
Tax Band % Taxable Sum Tax

The Foundry, Camlough Walk, Chesterfield, S41 0FS

Want to explore The Foundry, Camlough Walk, Chesterfield, S41 0FS further? Explore our local area guide

Struggling to find a property? Get in touch and we'll help you find your ideal property.