2 bedroom Flat For Sale

OIRO £150,000 | Available

2 bedroom Flat For Sale
Total Size: 679 SQ FT
or call 01233 613613
Standout Features

Property Description
Nestled in the heart of Ashford, Wellesley Villas presents a charming two-bedroom basement flat that is perfect for those seeking convenience. Presented to the market with no onward chain, this apartment provides a fantastic investment opportunity, as well as an ideal first time buy!

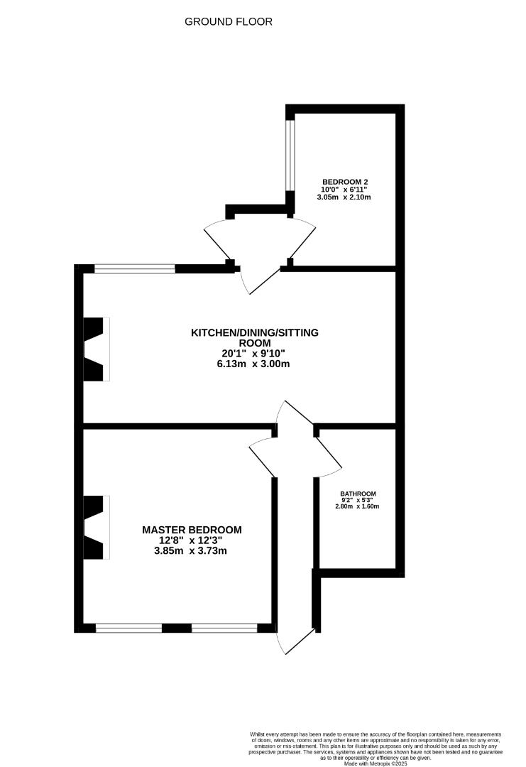
Upon entering, you will find a good size hallway, providing access into the main bedroom and bathroom. Bedroom one is ample in space, boasting a double bed and space for free standing furniture. Across you will find the bathroom, consisting of bath with overhead shower, wash hand basin and W/C. Head into the open plan living space, where you will find kitchen, breakfast bar area and living space, flooded with natural light. To the rear, you will find the second bedroom, also boasting a double room. The property comes with a parking permit, providing parking to the front.

One of the standout features of this property is its prime location. Situated near the town centre, residents will enjoy easy access to a variety of shops, cafes, and amenities. Additionally, the proximity to Ashford International train station makes this flat an excellent choice for commuters, offering swift connections to London and beyond.

This property is not only a wonderful home but also an excellent investment opportunity, given its desirable location and the growing demand for housing in Ashford. Whether you are a first-time buyer, a young professional, or looking to downsize, this flat offers a perfect blend of comfort and convenience.

Ashford Town Centre is located approximately 0.4 miles and benefits from public transport links to many other areas in and around Ashford, as well as being a 38-minute train from London St Pancras. Close by are many local shops and amenities, that are within walking distance to the property. If you are a shopping lover, Ashford Designer Outlet and Ashford Town Centre are within walking distance to the property, where you will find a whole range of shops to fulfil your shopping needs.

All mains services are connected, but none have been tested by the agent.
Flood Risk: Very low Each year, there is a chance of flooding of less than 1 in 1000 (0.1%)
Average Broadband Speed: 68mb Superfast :1000mb Ultrafast :1000mb
Information sourced from Street Insights.


Additional Information
Tenure: Leasehold
Lease Years Remaining: 104
Council Tax Band: A

Mortgage calculator

Calculate Your Stamp Duty
£
Results
Stamp Duty To Pay:
Effective Rate:
Tax Band % Taxable Sum Tax

Wellesley Villas, Wellesley Road, Ashford

Want to explore Wellesley Villas, Wellesley Road, Ashford further? Explore our local area guide

Struggling to find a property? Get in touch and we'll help you find your ideal property.