Standout Features
- Freehold house
- Chain free
- Two bedrooms
- Private garden
- Close to tranport links
- Close to River Lea
Property Description
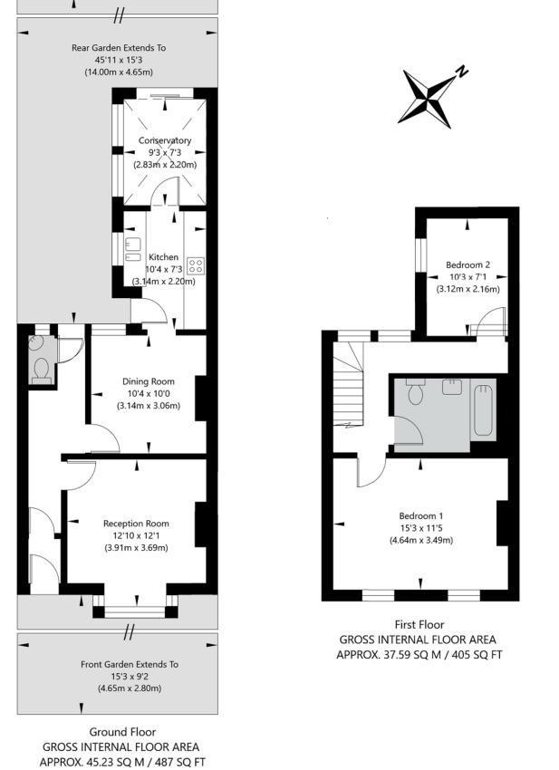
Available chain free is this freehold terraced house extending to approximately 892 sq ft (82.82 sq m), offering well-balanced accommodation and a private rear garden.
The ground floor comprises a bright front reception room, separate dining room and a fitted kitchen to the rear, leading through to a conservatory and onto the garden.
Upstairs, the property offers two bedrooms and a family bathroom, with the principal bedroom being particularly well proportioned. The layout offers scope for further improvement or reconfiguration, subject to the necessary consents.
Externally, the property benefits from a private rear garden, providing a good amount of outdoor space.
The property is conveniently positioned close to the River Lea and surrounding green spaces, with a range of local amenities, cafés and shops nearby. Transport links include Clapton Overground Station, offering access into The City and beyond.
The ground floor comprises a bright front reception room, separate dining room and a fitted kitchen to the rear, leading through to a conservatory and onto the garden.
Upstairs, the property offers two bedrooms and a family bathroom, with the principal bedroom being particularly well proportioned. The layout offers scope for further improvement or reconfiguration, subject to the necessary consents.
Externally, the property benefits from a private rear garden, providing a good amount of outdoor space.
The property is conveniently positioned close to the River Lea and surrounding green spaces, with a range of local amenities, cafés and shops nearby. Transport links include Clapton Overground Station, offering access into The City and beyond.
Additional Information
| Tenure: | Freehold |
|---|---|
| Council Tax Band: | C |
Mortgage calculator
Calculate Your Stamp Duty
Results
Stamp Duty To Pay:
Effective Rate:
| Tax Band | % | Taxable Sum | Tax |
|---|
Bakers Hill, London, E5
Want to explore Bakers Hill, London, E5 further? Explore our local area guide
Struggling to find a property? Get in touch and we'll help you find your ideal property.