2 bedroom House For Sale

Offers over £100,000 | Available

2 bedroom House For Sale
or call 0151 339 2465
Property Description
Here we have a traditional, mid-terrace property being offered to the market with No Ongoing Chain. This property would suit cash investors looking to expand their rental portfolio.

The property is situated close to Birkenhead Park and the regular public transport opens up both Birkenhead and Liverpool.

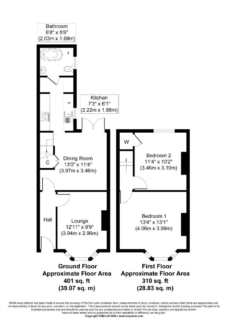
Entrance Hall

Lounge (3.94m x 2.97m)

Laminate flooring, double glazed window to front elevation, central heating radiator. Door through to:-

Dining Room (3.96m x 3.45m)

Double glazed window to rear elevation, central heating radiator. Staircase to first floor. Door through to:-

Kitchen (2.21m x 1.85m)

Fitted with a range of units, integrated oven, sink unit, double glazed window to side elevation, central heating radiator. Part glazed door to outside. Door into:-

Bathroom (2.03m x 1.68m)

Three piece suite including panelled bath, pedestal wash basin, low level WC.

First Floor

Staircase leads to first floor.

Bedroom One (4.06m x 3.99m)

Double glazed window to front elevation, central heating radiator.

Bedroom Two (3.45m x 3.10m)

Double glazed window to rear elevation, central heating radiator, store cupboard.

Outside

There is a yard area to the rear.


Additional Information
Tenure: Freehold
Council Tax Band: A

Rooms
Entrance Hall

Lounge
Laminate flooring, double glazed window to front elevation, central heating radiator. Door through to:-
3.94m x 2.97m (12'11" x 9'9")
Dining Room
Double glazed window to rear elevation, central heating radiator. Staircase to first floor. Door through to:-
3.96m x 3.45m (13'0" x 11'4")
Kitchen
Fitted with a range of units, integrated oven, sink unit, double glazed window to side elevation, central heating radiator. Part glazed door to outside. Door into:-
2.21m x 1.85m (7'3" x 6'1")
Bathroom
Three piece suite including panelled bath, pedestal wash basin, low level WC.
2.03m x 1.68m (6'8" x 5'6")
First Floor
Staircase leads to first floor.
Bedroom One
Double glazed window to front elevation, central heating radiator.
4.06m x 3.99m (13'4" x 13'1" )
Bedroom Two
Double glazed window to rear elevation, central heating radiator, store cupboard.
3.45m x 3.10m (11'4" x 10'2")
Outside
There is a yard area to the rear.

Mortgage calculator

Calculate Your Stamp Duty
£
Results
Stamp Duty To Pay:
Effective Rate:
Tax Band % Taxable Sum Tax

Churchill Avenue, Birkenhead

Want to explore Churchill Avenue, Birkenhead further? Explore our local area guide

Struggling to find a property? Get in touch and we'll help you find your ideal property.