Standout Features
- Two bedrooms
- Terraced House
- Modern Kitchen
- Modern Shower Room
- Generous Rear Garden
- Potential To Extend (STPP)
- Paved Front Garden
- Double Glazed & Gas Central Heating
- Utility Room
- EPC Rating - C
Property Description
Situated on Coronation Road in South Hayes is this well presented, two bedroom terraced home offered for sale with NO ONWARD CHAIN! The property is situated in a popular location being within close proximity to schools, amenities and transport links.
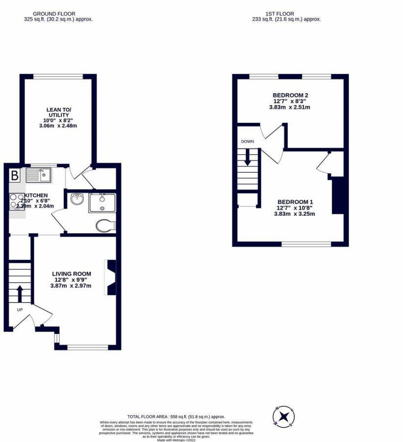
The property comprises entrance hall, reception room, fitted kitchen, ground floor shower room, utility room and two first floor bedrooms with potential to create a first floor bathroom. Outside the property has a very generous rear garden with the added benefit of rear access from Roseville Road. To the front a paved front garden with the easy possibility of creating a driveway.
Coronation Road is situated off Roseville Road and is within close proximity to Heathrow Airport, A312/A40/M4 motorway links, amenities, large shopping centres and schools! The Elizabeth Line is within easy reach now servicing faster travel into London. Get in touch with us today to find out more.
The property comprises entrance hall, reception room, fitted kitchen, ground floor shower room, utility room and two first floor bedrooms with potential to create a first floor bathroom. Outside the property has a very generous rear garden with the added benefit of rear access from Roseville Road. To the front a paved front garden with the easy possibility of creating a driveway.
Coronation Road is situated off Roseville Road and is within close proximity to Heathrow Airport, A312/A40/M4 motorway links, amenities, large shopping centres and schools! The Elizabeth Line is within easy reach now servicing faster travel into London. Get in touch with us today to find out more.
Additional Information
| Tenure: | Freehold |
|---|
Mortgage calculator
Calculate Your Stamp Duty
Results
Stamp Duty To Pay:
Effective Rate:
| Tax Band | % | Taxable Sum | Tax |
|---|
Coronation Road, Hayes, UB3 4JU
Want to explore Coronation Road, Hayes, UB3 4JU further? Explore our local area guide
Struggling to find a property? Get in touch and we'll help you find your ideal property.